Elérhető Otthon Start hitellel
Eladó újépítésű családi ház,
U0049078
Inárcs
84 900 000 Ft
224 000 €
- 98m²
- 4 szoba
Eladó új építésű, modern családi ház Inárcson!
Központi elhelyezkedéssel, kiváló műszaki tartalommal és igényes kialakítással kínáljuk megvételre ezt az új építésű családi ikerházat Inárcson.
FÖLDSZINTES! - legkeresettebb kialakítás!
Akár Otthon Start 3%-os hitellel!
Csendes, barátságos utcájában, a természet közelségével és a béke nyugalmával ölelve várja új tulajdonosát ez az új építésű családi ház.
Egy ház, amely nemcsak falakból és tetőből áll – hanem a leendő családi történetek, közös reggelek és napsütötte délutánok ígéretéből.
A két ingatlan csupán a fedett kocsibeállónál érintkezik, nincs közös falszakasz és nincs átjárás, így a saját tér, a saját nyugalmas otthon teljesen adott.
Főbb jellemzők:
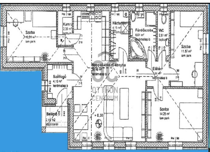
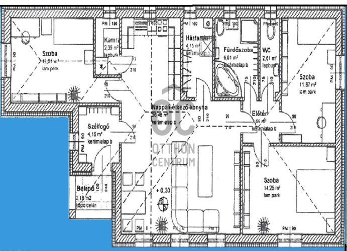
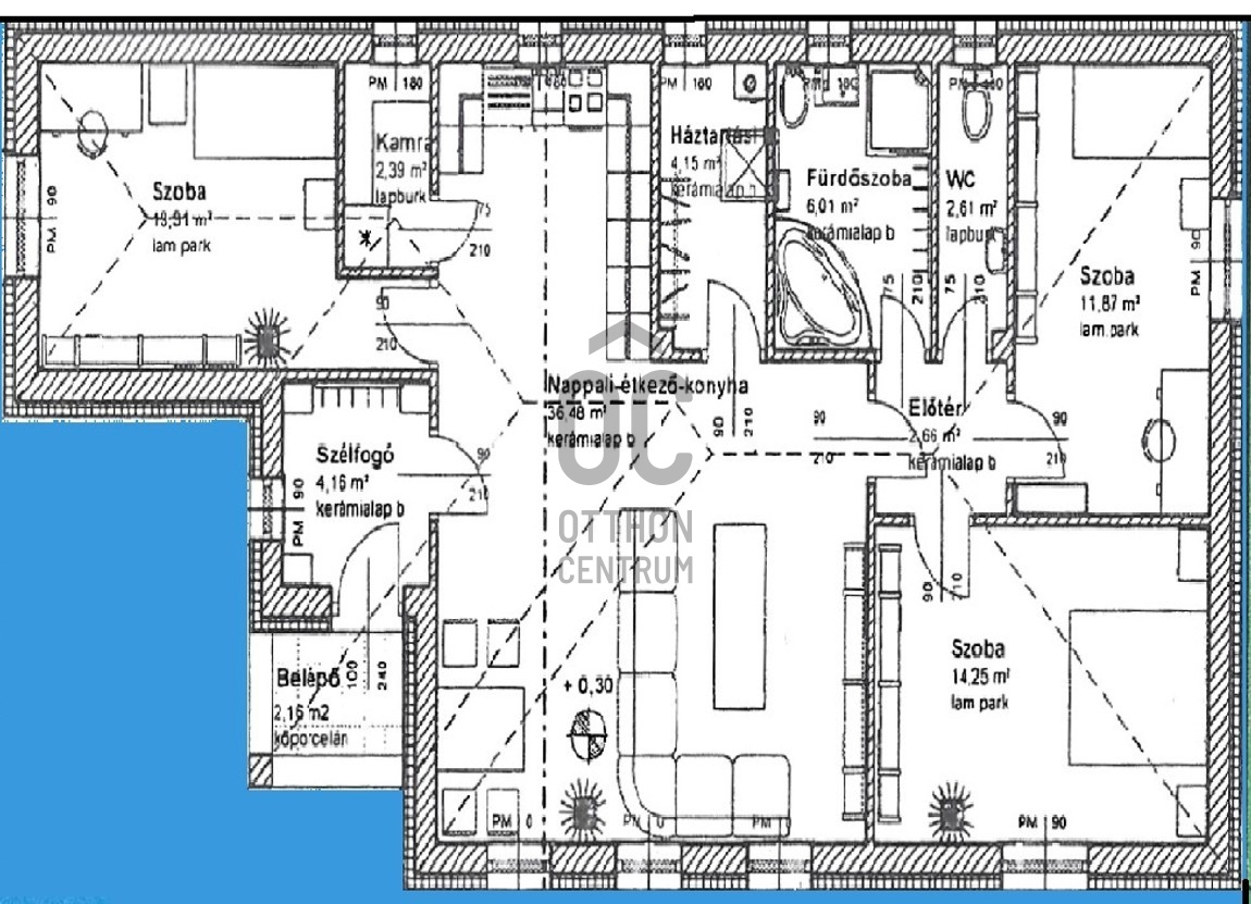
Hasznos alapterület: 98 m²
A házhoz tartozó telekrész: 725 m²
Terasz: 20,57 m²
Műszaki tartalom:
- Falazat: 30 cm Porotherm
- Válaszfalak: 10 cm Ytong
- Homlokzati szigetelés: 15 cm
- Födémszigetelés: 25 cm
- Tető: antracit színű betoncserép
- Homlokzat: modern, fehér kialakítás
- Nyílászárók: háromrétegű műanyag ablakok
- Bejárati ajtó: minőségi, biztonságos kivitel
- Hőszivattyús padlófűtés a teljes házban
- 3,5 kW-os hűtő-fűtő klíma beépítve
Biztonság és közművek
- Riasztókiállás előkészítve
- Teljes közművesítés
- Gáz a telken belül
- Elektromos kapu
- Térkövezett udvar
Választható burkolatok és felszerelések (az alábbi értékhatárokig választhatók egyedi igények szerint):
- Hidegburkolatok: 7 000 Ft/m²
- Melegburkolatok: 7 000 Ft/m²
- Beltéri ajtók: 45 000 Ft/db
- Szaniterek: 50 000 Ft/db
- Kád: 85 000 Ft
- Zuhanytelep: 60 000 Ft
- 2 db Geberit WC összesen: 140 000 Ft
- 50 db kapcsoló / ingatlan
- Kültéri fali karos lámpák: 8 000 Ft/db
Kivitelezés
A munkálatokat megbízható, referenciákkal rendelkező kivitelező végzi, garantálva a magas minőséget és a precíz megvalósítást.
Az ár a befejezett állapotra vonatkozik.
Tervezett átadás: 2026.03
Megtekintés céljából keressen bizalommal!
FÖLDSZINTES! - legkeresettebb kialakítás!
Akár Otthon Start 3%-os hitellel!
Csendes, barátságos utcájában, a természet közelségével és a béke nyugalmával ölelve várja új tulajdonosát ez az új építésű családi ház.
Egy ház, amely nemcsak falakból és tetőből áll – hanem a leendő családi történetek, közös reggelek és napsütötte délutánok ígéretéből.
A két ingatlan csupán a fedett kocsibeállónál érintkezik, nincs közös falszakasz és nincs átjárás, így a saját tér, a saját nyugalmas otthon teljesen adott.
Főbb jellemzők:
Hasznos alapterület: 98 m²
A házhoz tartozó telekrész: 725 m²
Terasz: 20,57 m²
Műszaki tartalom:
- Falazat: 30 cm Porotherm
- Válaszfalak: 10 cm Ytong
- Homlokzati szigetelés: 15 cm
- Födémszigetelés: 25 cm
- Tető: antracit színű betoncserép
- Homlokzat: modern, fehér kialakítás
- Nyílászárók: háromrétegű műanyag ablakok
- Bejárati ajtó: minőségi, biztonságos kivitel
- Hőszivattyús padlófűtés a teljes házban
- 3,5 kW-os hűtő-fűtő klíma beépítve
Biztonság és közművek
- Riasztókiállás előkészítve
- Teljes közművesítés
- Gáz a telken belül
- Elektromos kapu
- Térkövezett udvar
Választható burkolatok és felszerelések (az alábbi értékhatárokig választhatók egyedi igények szerint):
- Hidegburkolatok: 7 000 Ft/m²
- Melegburkolatok: 7 000 Ft/m²
- Beltéri ajtók: 45 000 Ft/db
- Szaniterek: 50 000 Ft/db
- Kád: 85 000 Ft
- Zuhanytelep: 60 000 Ft
- 2 db Geberit WC összesen: 140 000 Ft
- 50 db kapcsoló / ingatlan
- Kültéri fali karos lámpák: 8 000 Ft/db
Kivitelezés
A munkálatokat megbízható, referenciákkal rendelkező kivitelező végzi, garantálva a magas minőséget és a precíz megvalósítást.
Az ár a befejezett állapotra vonatkozik.
Tervezett átadás: 2026.03
Megtekintés céljából keressen bizalommal!
Regisztrációs szám
U0049078
Az ingatlan adatai
Értékesités
eladó
Jogi státusz
új
Jelleg
ház
Építési mód
tégla
Méret
98 m²
Bruttó méret
125 m²
Telek méret
725 m²
Terasz / erkély mérete
21 m²
Kert méret
725 m²
Fűtés
hőszivattyú
Belmagasság
270 cm
Tájolás
Kelet
Panoráma
Zöldre néző panoráma
Állapot
Kiváló
Homlokzat állapota
Kiváló
Környék
csendes, jó közlekedés, zöld
Építés éve
2026
Fürdőszobák száma
1
Társaház kert
igen
Garázs
Benne van az árban
Víz
Van
Villany
Van
Csatorna
Van
Helyiségek
nappali-konyha
36.48 m²
szoba
14.25 m²
szoba
13.31 m²
szoba
11.87 m²
fürdőszoba-wc
6.01 m²
wc-kézmosó
2.61 m²
közlekedő
2.66 m²
közlekedő
4.15 m²
háztartási helyiség
2.39 m²
kamra
2.39 m²
előszoba
4.16 m²
terasz
20.57 m²
garázs
16.42 m²
Horváth Eleonóra
Hitelszakértő