Elérhető Otthon Start hitellel
Eladó újépítésű családi ház,
DHZ048884
Ráckeve,
63 000 000 Ft
167 000 €
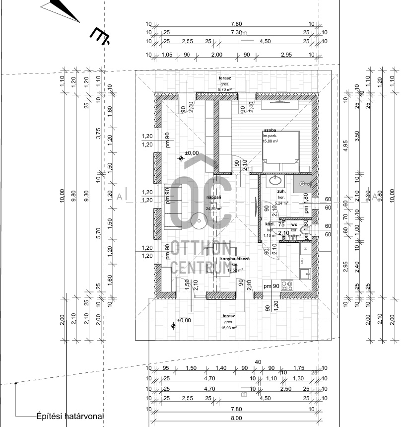
- 90m²
- 2 szoba
Ne hagyja ki ezt a páratlan lehetőséget, ha egy modern, energiatakarékos otthonra vágyik csodálatos környezetben. Vegye át az új építésű ház kulcsait 2026-ban, és élvezze az első pillanattól kezdve az itt töltött idő minden percét!
Ez az otthon Ráckeve egyik legkedveltebb, autóval könnyen megközelíthető részén helyezkedik el, karnyújtásnyira a vízparttól, amely ideális helyszín pihentető sétákhoz, kikapcsolódáshoz.
A házban padlófűtés gondoskodik a kellemes hőérzetről a hideg hónapokban, amely egyenletes hőeloszlást biztosít, valamint energiatakarékos és Esztétikailag is előnyös, hiszen nincsenek látható radiátorok. A jó fényviszonyokkal rendelkező ingatlan tágas és világos terekkel várja új tulajdonosát, így a mindennapok során is élvezheti a nap minden adta energiáját.
Az ingatlan szerkezete Ytong. Az ingatlan 10 centiméteres szigetelést kap körben mindenhol így növelve a hűtés és fűtés hatásfokát. Itt fontos megjegyezni hogy a tetőn kialakításra kerülnek a napelemek csatlakozó pontjai ezzel lehetőség nyílik napelemek felszerelésére is ezzel is tovább csökkentve a rezsiköltségeket.
Minden igényt kielégítő, új építésű családi ház mely kiváló lehetőséget biztosít azok számára, akik nyugalmat és természetközelséget keresnek.
Az ingatlan különböző fázisai is megvásárolhatók így igazán rugalmas lehetőséget kínál akár vállalkozó, vagy befektetői ambíciókkal rendelkező vásárlók számára is.
1.Fázis
A tervezet beton alap tükör elkészítve, készen a szerkezet építésére. Ebben az esetben az ár: 24.9M Ft
2.Fázis
A tervezett szerkezet kész állapot mely tartalmazza a falak és a tetők magas minőségű elkészítését is. Ebben az esetben az ár: 42,9M Ft
3.Fázis
Kulcsrakész állapot mely magában foglalja a vevő igénye szerinti burkolást is magas színvonalon 4000Ft/m2 -es árig bezárólag. Ebben az esetben az ár: 63M Ft.
A házhoz tartozik egy utca fronti 338 m2-es telek rész, terület, mely szintén részét képezi az eladási árnak! Ez a javasolt tervek szerint kocsibeállónak vagy előkertnek is kialakítható!
Keressen bizalommal a hét bármely napján, elérhetőségeim egyikén!
Hitelkonstrukciók, pénzügyi kérdések? Ebben is állunk rendelkezésére!
Ez az otthon Ráckeve egyik legkedveltebb, autóval könnyen megközelíthető részén helyezkedik el, karnyújtásnyira a vízparttól, amely ideális helyszín pihentető sétákhoz, kikapcsolódáshoz.
A házban padlófűtés gondoskodik a kellemes hőérzetről a hideg hónapokban, amely egyenletes hőeloszlást biztosít, valamint energiatakarékos és Esztétikailag is előnyös, hiszen nincsenek látható radiátorok. A jó fényviszonyokkal rendelkező ingatlan tágas és világos terekkel várja új tulajdonosát, így a mindennapok során is élvezheti a nap minden adta energiáját.
Az ingatlan szerkezete Ytong. Az ingatlan 10 centiméteres szigetelést kap körben mindenhol így növelve a hűtés és fűtés hatásfokát. Itt fontos megjegyezni hogy a tetőn kialakításra kerülnek a napelemek csatlakozó pontjai ezzel lehetőség nyílik napelemek felszerelésére is ezzel is tovább csökkentve a rezsiköltségeket.
Minden igényt kielégítő, új építésű családi ház mely kiváló lehetőséget biztosít azok számára, akik nyugalmat és természetközelséget keresnek.
Az ingatlan különböző fázisai is megvásárolhatók így igazán rugalmas lehetőséget kínál akár vállalkozó, vagy befektetői ambíciókkal rendelkező vásárlók számára is.
1.Fázis
A tervezet beton alap tükör elkészítve, készen a szerkezet építésére. Ebben az esetben az ár: 24.9M Ft
2.Fázis
A tervezett szerkezet kész állapot mely tartalmazza a falak és a tetők magas minőségű elkészítését is. Ebben az esetben az ár: 42,9M Ft
3.Fázis
Kulcsrakész állapot mely magában foglalja a vevő igénye szerinti burkolást is magas színvonalon 4000Ft/m2 -es árig bezárólag. Ebben az esetben az ár: 63M Ft.
A házhoz tartozik egy utca fronti 338 m2-es telek rész, terület, mely szintén részét képezi az eladási árnak! Ez a javasolt tervek szerint kocsibeállónak vagy előkertnek is kialakítható!
Keressen bizalommal a hét bármely napján, elérhetőségeim egyikén!
Hitelkonstrukciók, pénzügyi kérdések? Ebben is állunk rendelkezésére!
Regisztrációs szám
DHZ048884
Az ingatlan adatai
Értékesités
eladó
Jogi státusz
új
Jelleg
ház
Építési mód
egyéb
Méret
90 m²
Bruttó méret
90 m²
Telek méret
404 m²
Terasz / erkély mérete
24,6 m²
Fűtés
egyéb
Belmagasság
240 cm
Lakáson belüli szintszám
1
Tájolás
Észak-kelet
Állapot
Jó
Homlokzat állapota
Jó
Építés éve
2026
Fürdőszobák száma
1
Fekvés
utcai
Víz
Van
Villany
Van
Csatorna
Van
Helyiségek
nappali
24.83 m²
konyha-étkező
17.52 m²
közlekedő
1.1 m²
wc
1.4 m²
szoba
15.88 m²
veranda
15.93 m²
veranda
8.7 m²
Balázs Réka
Hitelszakértő