49 900 000 Ft
129 000 €
- 105,5m²
- tetőtér












If you're tired of cookie-cutter apartments and want to create an exclusive property (or even more than one) tailored to your own taste, this is your opportunity!
ABOUT THE LOCATION
➡️ Budapest, District XI, Lágymányos
➡️ Móricz Zsigmond körtér is just 10 minutes away
➡️ Excellent public transport and infrastructure
➡️ Allee Shopping Center is a 5-minute walk
➡️ Everything you need for daily life is within easy reach
➡️ Street parking available in a paid zone
ABOUT THE BUILDING
✅ Built in 1942, 7-story brick building with 28 apartments
✅ The exterior façade and stairwell are in good condition
✅ Common area windows were recently replaced with modern, insulated plastic-frame windows
✅ In 2023, internal insulation of the courtyard-facing façade was completed
✅ The residential community is particularly friendly, quiet, and welcoming
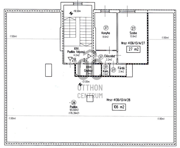
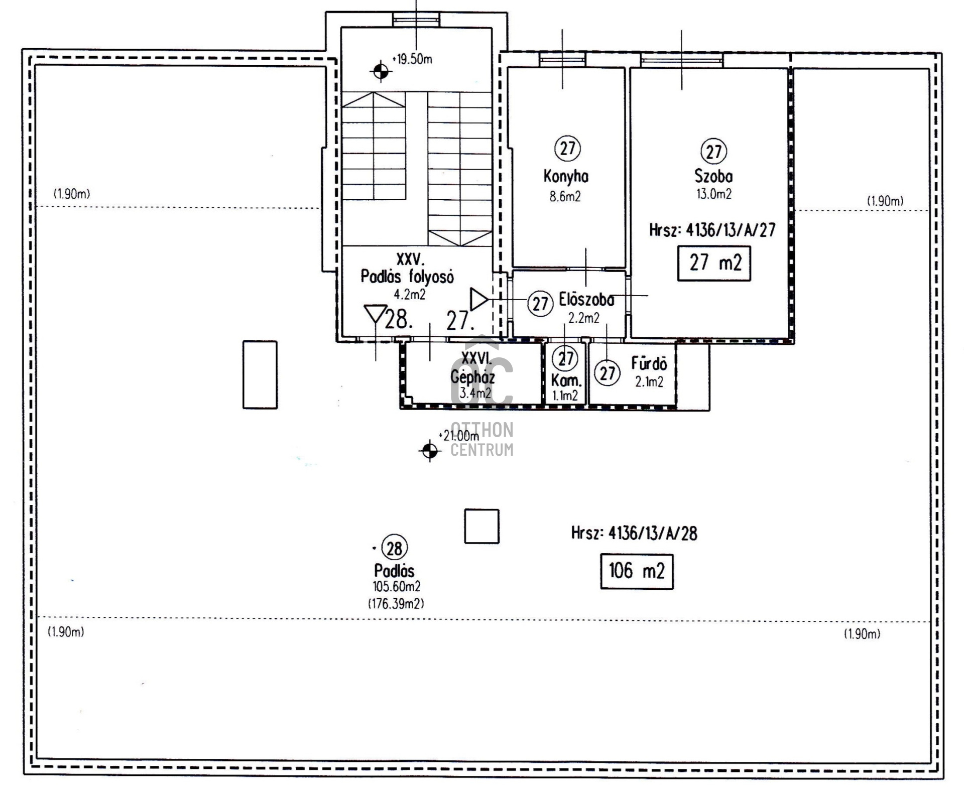
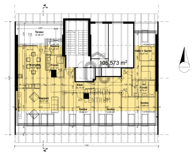
ABOUT THE ATTIC SPACE
➡️ The attic is privately owned
➡️ Professional architectural plans are available and included in the sale price
➡️ Usable floor area to be developed: 105.57 m²
➡️ Option to build a 13.3 m² terrace
➡️ Maximum ceiling height: 400 cm
➡️ Plans include installation of water, sewage, and electricity networks
➡️ Elevator goes up to the 5th floor; the attic is accessible via one more flight of stairs
➡️ All necessary permits are already in the current owner’s possession
➡️ The attic construction does not require separate planning permission, but the roof slope cannot be altered
➡️ Officially, one apartment may be built; however, with a usage separation agreement, two separate living units are possible
➡️ Construction can begin immediately after purchase
THE PROPERTY CAN BE SAFELY VIEWED
✅ In person
✅ Via VIDEO with visual plans
✅ Via live online appointment
FINANCING SUPPORT AVAILABLE ONLINE
➡️ Our independent mortgage center compares offers from all banks and financial institutions free of charge
➡️ All you need to do is speak with our advisor and select the most suitable long-term offer from the options provided
➡️ Our experts bring 20 years of experience and provide tailored, consumer-friendly mortgage solutions, baby-expectant loans, and full CSOK PLUS support
➡️ Appointments available even outside regular working hours by prior arrangement
If you're looking for a unique opportunity for yourself or as an investment, this property is well worth a visit.
For more information or to schedule a viewing, feel free to call!
➡️ Budapest, District XI, Lágymányos
➡️ Móricz Zsigmond körtér is just 10 minutes away
➡️ Excellent public transport and infrastructure
➡️ Allee Shopping Center is a 5-minute walk
➡️ Everything you need for daily life is within easy reach
➡️ Street parking available in a paid zone
ABOUT THE BUILDING
✅ Built in 1942, 7-story brick building with 28 apartments
✅ The exterior façade and stairwell are in good condition
✅ Common area windows were recently replaced with modern, insulated plastic-frame windows
✅ In 2023, internal insulation of the courtyard-facing façade was completed
✅ The residential community is particularly friendly, quiet, and welcoming
ABOUT THE ATTIC SPACE
➡️ The attic is privately owned
➡️ Professional architectural plans are available and included in the sale price
➡️ Usable floor area to be developed: 105.57 m²
➡️ Option to build a 13.3 m² terrace
➡️ Maximum ceiling height: 400 cm
➡️ Plans include installation of water, sewage, and electricity networks
➡️ Elevator goes up to the 5th floor; the attic is accessible via one more flight of stairs
➡️ All necessary permits are already in the current owner’s possession
➡️ The attic construction does not require separate planning permission, but the roof slope cannot be altered
➡️ Officially, one apartment may be built; however, with a usage separation agreement, two separate living units are possible
➡️ Construction can begin immediately after purchase
THE PROPERTY CAN BE SAFELY VIEWED
✅ In person
✅ Via VIDEO with visual plans
✅ Via live online appointment
FINANCING SUPPORT AVAILABLE ONLINE
➡️ Our independent mortgage center compares offers from all banks and financial institutions free of charge
➡️ All you need to do is speak with our advisor and select the most suitable long-term offer from the options provided
➡️ Our experts bring 20 years of experience and provide tailored, consumer-friendly mortgage solutions, baby-expectant loans, and full CSOK PLUS support
➡️ Appointments available even outside regular working hours by prior arrangement
If you're looking for a unique opportunity for yourself or as an investment, this property is well worth a visit.
For more information or to schedule a viewing, feel free to call!
Regisztrációs szám
BI000535
Az ingatlan adatai
Értékesités
eladó
Jelleg
fejlesztési célú
Típus
Épületrész
Altípus
Tetőtér
Méret
105,5 m²
Föld feletti nettó méret
105 m²
Kialakítható nettó méret
105 m²
Kielakítható föld feletti nettó méret
105 m²
Fűtés
hőszivattyú
Belmagasság
265 cm
Lakáson belüli szintszám
1
Állapot
Felújítandó
Homlokzat állapota
Jó
Lépcsőház állapota
Jó
Építés éve
1942
Víz
Van
Villany
Van
Csatorna
Van
Kialakítható ingatlan
Lakás 1-20 db

Medovarszki Andrea
Hitelszakértő