data_sheet.details.realestate.section.main.otthonstart_flag.label
For sale family house, H515484
Halmajugra

34,900,000 Ft

98,000 €

  • 183.1m²
  • 4 Rooms
Exclusive Contract

Bővíthető családi ház nagy telekkel a Mátránál

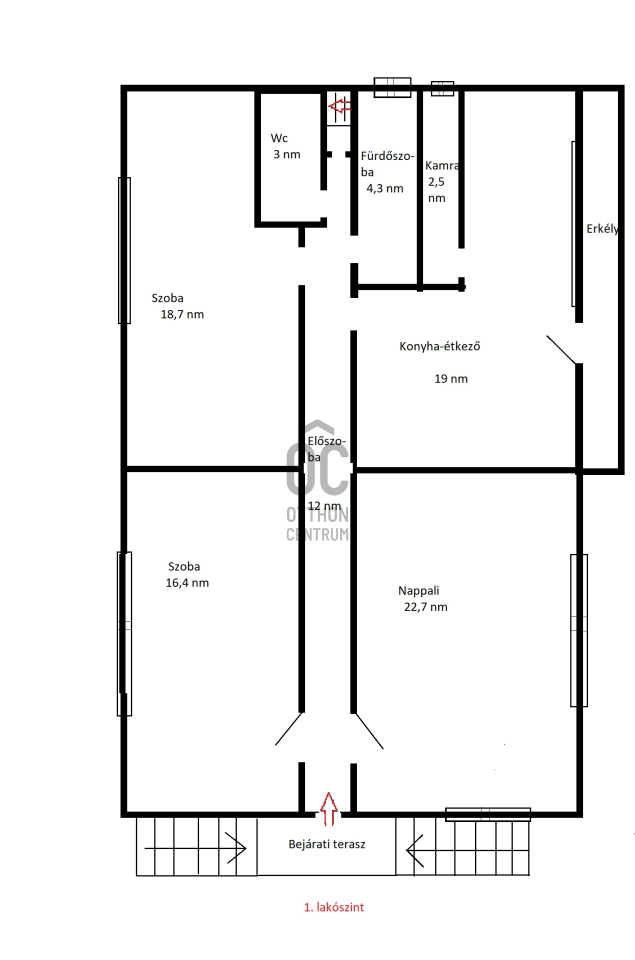
Gyöngyös mellett, Halmajugrán, csendes, jól ellátott településen kínálunk megvásárlásra egy 1324 nm-es telken álló garázsos, betonfödémes, beépíthető tetőterű önálló családi házat. A legalsó szinten a hatalmas garázs (kondiszoba), kamra, egy szoba-tároló, és a kazánház került kialakításra. Itt található a gázkazán és egy vegyestüzelésű kazán. A következő szinten kapott helyet a nappali, két nagy szoba, konyha-étkező, a kamra, a fürdőszoba és egy külön mellékhelyiség. Innen közvetlenül lejuthatunk a garázs szintre egy belső lépcsőn keresztül. A lakóépület betönfödémes, a tetőtér 102 nm, mely beépíthető, itt akár egy külön lakás is kialakítható, így két generációnak is kiválóan alkalmas. Az 5 nm-es erkélyről mátrai örök panorámánk van. A tetőt cserép fedi, 3 fázis van, és éjszakai áram is. A kertben sokféle termő gyümölcsfa van (körte, dió, naspolya, szőlő), a szomszédság rendezett. A település 6 percre van Gyöngyöstől, itt is, továbbá a közelben lévő mátrai ipari parkban is sok a munkalehetőség. Óvoda, iskola, orvosi rendelő, zenei játszótér van, jó a tömegközlekedés, tiszta, jól ellátott település. Az ingatlan üres, rövid időn belül birtokba vehető.
#eladóház #nagytelek #bővíthető #garázs #azonnalköltözhető #jóállapotú

Registration Number

H515484

Property Details

Sales
for sale
Legal Status
used
Character
house
Construction Method
brick
Net Size
183.1 m²
Gross Size
200 m²
Plot Size
1,324 m²
Size of Terrace / Balcony
9 m²
Heating
Gas circulator
Ceiling Height
270 cm
Number of Levels Within the Property
2
Orientation
South-East
Condition
Good
Condition of Facade
Good
Year of Construction
1987
Number of Bathrooms
1
Garage
Included in the price
Garage Spaces
1
Water
Available
Gas
Available
Electricity
Available
Sewer
Available

Rooms

living room
22.7 m²
open-plan kitchen and dining room
19 m²
balcony
5 m²
bedroom
16.4 m²
bedroom
18.7 m²
bathroom
4.3 m²
toilet
3 m²
entryway
12 m²
pantry
2.5 m²
garage
43 m²
boiler room
21.7 m²
storage
11.3 m²
storage
16.2 m²
Czene Enikő Éva
Czene Enikő Éva

Credit Expert

From Our Office Listings - XVII. kerület - Cinkotai út

for sale family house

Index image
data_sheet.details.realestate.section.main.otthonstart_flag.label
16

for sale apartment

Index image
14

for sale apartment

Index image
14

for sale apartment

Index image
data_sheet.details.realestate.section.main.otthonstart_flag.label
18

for sale new construction semi-detached house

Index image
data_sheet.details.realestate.section.main.otthonstart_flag.label
9

for sale apartment

Index image
21

for sale family house

Index image
data_sheet.details.realestate.section.main.otthonstart_flag.label
36

for sale family house

Index image
data_sheet.details.realestate.section.main.otthonstart_flag.label
24