249,990,000 Ft
661,000 €
- 170m²
- 6 Rooms
CSALÁDBARÁT KÖRNYEZETBEN, MINDEN IGÉNYT KIELÉGÍTŐ CSALÁDI HÁZ
Fedezd fel álmaid otthonát Budapest XIV. kerületének csendes, de mégis pezsgő részén Zuglóban!
Ez a felújított, kiváló állapotú, sorház jellegű, két szintes családi ház nem csupán egy ingatlan, hanem egy életstílus, amely ideális azok részére, akik értékelik a kényelmet és a természet közelségét.
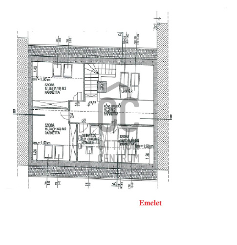
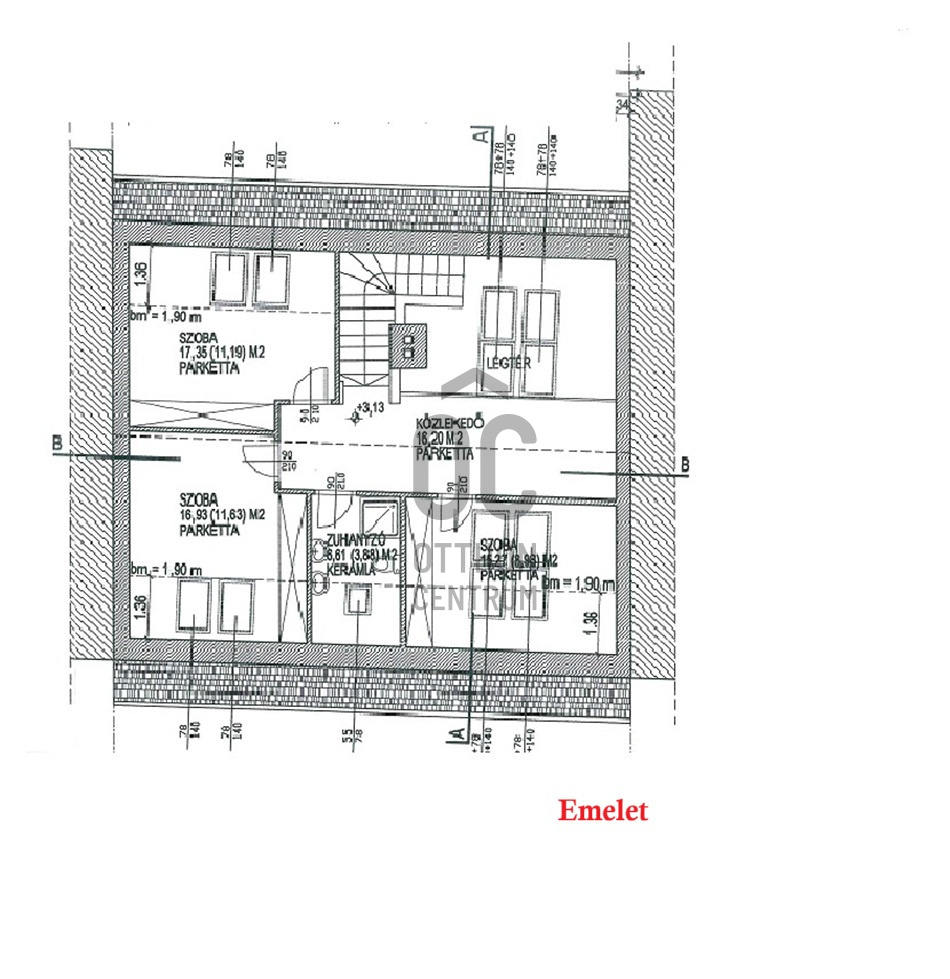
Nappali+ 5 tágas hálószobával rendelkezik, így bőséges teret biztosít a család számára, vagy akár baráti összejövetelekhez is. Két fürdőszobája garantálja, hogy reggelente senkinek sem kell várakoznia és emellett még vendég mosdó is megtalálható.
A házhoz tartozik egy 403 négyzetméteres telek, amely rendezett kerttel rendelkezik. A füvesített kertben kiépített öntözőrendszer, 3x5 méteres hőszivattyúval fűthető medence, fedett sütögető rész és egy kis faház tárolónak is megtalálható.
A 35 nm-es terasz tökéletes helyszín családi grillezésekhez vagy csak a napozáshoz.
A prémium kivitelezés és a modern dizájn megjelenik a ház minden részletében. A kandallós nappali a téli estéken biztosítja a meghitt hangulatot. Az ingatlan fűtése gázkazán (viessmann) történik, radiátoros hőleadókkal, valamint padlófűtés is ki lett építve.
Hűtése klímával, így a legforróbb nyári napokon is kellemes hőmérsékletet biztosít.
A riasztó és kamera rendszer és a biztonságos környék nyugalmat ad a mindennapokhoz.
Két autó számára udvari beálló áll rendelkezésre elektromos kapuval, biciklitárolóval.
Fenntartása nagyon kedvező, köszönhető ez az 50 cm-es téglafalazatnak és a modern nyílászáróknak is.
Az ingatlan tehermentes, így gyorsan birtokba vehető kifizetést követően.
A környék kiemelkedő közlekedési lehetőségekkel rendelkezik: a kitűnő közlekedésnek köszönhetően gyorsan elérheted a belvárost. A csendes utcák és a barátságos szomszédság ideális környezetet biztosítanak az ideköltözők számára, akik szeretnék élvezni a városi élet előnyeit, miközben a természet lágy ölén pihenhetnek. Ne habozz, ha egy exkluzív, modern és családbarát otthont keresel, ami minden igényt kielégít!
Várom megkeresésedet hétköznap és hétvégén is!
Ez a felújított, kiváló állapotú, sorház jellegű, két szintes családi ház nem csupán egy ingatlan, hanem egy életstílus, amely ideális azok részére, akik értékelik a kényelmet és a természet közelségét.
Nappali+ 5 tágas hálószobával rendelkezik, így bőséges teret biztosít a család számára, vagy akár baráti összejövetelekhez is. Két fürdőszobája garantálja, hogy reggelente senkinek sem kell várakoznia és emellett még vendég mosdó is megtalálható.
A házhoz tartozik egy 403 négyzetméteres telek, amely rendezett kerttel rendelkezik. A füvesített kertben kiépített öntözőrendszer, 3x5 méteres hőszivattyúval fűthető medence, fedett sütögető rész és egy kis faház tárolónak is megtalálható.
A 35 nm-es terasz tökéletes helyszín családi grillezésekhez vagy csak a napozáshoz.
A prémium kivitelezés és a modern dizájn megjelenik a ház minden részletében. A kandallós nappali a téli estéken biztosítja a meghitt hangulatot. Az ingatlan fűtése gázkazán (viessmann) történik, radiátoros hőleadókkal, valamint padlófűtés is ki lett építve.
Hűtése klímával, így a legforróbb nyári napokon is kellemes hőmérsékletet biztosít.
A riasztó és kamera rendszer és a biztonságos környék nyugalmat ad a mindennapokhoz.
Két autó számára udvari beálló áll rendelkezésre elektromos kapuval, biciklitárolóval.
Fenntartása nagyon kedvező, köszönhető ez az 50 cm-es téglafalazatnak és a modern nyílászáróknak is.
Az ingatlan tehermentes, így gyorsan birtokba vehető kifizetést követően.
A környék kiemelkedő közlekedési lehetőségekkel rendelkezik: a kitűnő közlekedésnek köszönhetően gyorsan elérheted a belvárost. A csendes utcák és a barátságos szomszédság ideális környezetet biztosítanak az ideköltözők számára, akik szeretnék élvezni a városi élet előnyeit, miközben a természet lágy ölén pihenhetnek. Ne habozz, ha egy exkluzív, modern és családbarát otthont keresel, ami minden igényt kielégít!
Várom megkeresésedet hétköznap és hétvégén is!
Registration Number
H513671
Property Details
Sales
for sale
Legal Status
used
Character
house
Construction Method
brick
Net Size
170 m²
Gross Size
200 m²
Plot Size
403 m²
Size of Terrace / Balcony
35 m²
Heating
Gas circulator
Ceiling Height
285 cm
Number of Levels Within the Property
2
Orientation
South-West
Condition
Excellent
Condition of Facade
Excellent
Basement
Independent
Neighborhood
quiet, good transport, green, central
Year of Construction
2005
Number of Bathrooms
2
Condominium Garden
yes
Water
Available
Gas
Available
Electricity
Available
Sewer
Available
Storage
Independent
Rooms
open-plan kitchen and living room
34.7 m²
bedroom
13.16 m²
bedroom
13.82 m²
bedroom
11.2 m²
bedroom
11.63 m²
bedroom
9 m²
bathroom-toilet
6.44 m²
bathroom-toilet
4 m²
toilet-washbasin
2.28 m²
corridor
16.2 m²
corridor
7.18 m²
utility room
13.43 m²
storage
13 m²
staircase
3.4 m²
terrace
35 m²
entryway
3 m²
Ruczek János
Credit Expert