Elérhető Otthon Start hitellel
Eladó újépítésű családi ház,
U0049457
Sóskút
149 000 000 Ft
387 000 €
- 143m²
- 4 szoba
PREMIUM NEW-BUILD FAMILY HOME FOR SALE WITH SWIMMING POOL – IN THE MOST BEAUTIFUL STREET OF Sóskút!
At the end of a quiet cul-de-sac, on an edge-of-forest, partially panoramic plot, we offer for sale a modern, single-storey, minimalist-style family home with a separate double garage and an optional swimming pool.
Key Features:
✅ Net living area: 128 m²
✅ Covered terrace: 42 m²
✅ Separate brick-built double garage: 30 m²
(can be converted into an independent living unit or guest house upon request)
✅ Plot size: 738 m²
✅ Swimming pool: 8 × 3.5 m, with direct terrace access
Layout:
✅ Spacious, bright open-plan living room with kitchen and direct terrace & pool connection
✅ 3 well-sized bedrooms
✅ Master bedroom (16.8 m²) with private 10 m² bathroom and walk-in wardrobe
✅ Additional bathroom
✅ Pantry
✅ Walk-in wardrobe
✅ Utility / mechanical room
Outdoor Living:
✅ Covered terrace with built-in barbecue / outdoor cooking area
✅ Planned summer kitchen unit and outdoor shower
✅ Harmonized paving around the house and terrace
Technical Specifications – Premium Quality Throughout:
✅ 30 cm Porotherm brick structure + 15 cm external insulation
✅ Reinforced concrete slab with 30 cm insulation
✅ 8 kW heat pump heating system, H-tariff compatible
✅ Underfloor heating in all rooms
✅ Standing seam metal roof
✅ Triple-glazed, 5-chamber premium windows and doors
✅ Electric shutters on all windows
✅ Pre-installed alarm system
✅ 1 air-conditioning unit
✅ Premium flooring and wall coverings (up to €20/m² equivalent)
✅ High-quality interior doors
✅ 5-point security entrance door
The construction is currently at structural-ready stage, the property is already accessible for viewing, and all documentation is available.
Price: HUF 149,000,000
Swimming pool + separate: + HUF 15,000,000 (mandatory to buy)
✅ Eligible for CSOK Plus & 3% subsidized loan programs
✅ Schools, kindergarten and shopping facilities nearby
✅ M7 motorway reachable within minutes
Expected handover: Summer–Autumn 2026
???? For further information or to arrange a viewing, please contact us with confidence.
Key Features:
✅ Net living area: 128 m²
✅ Covered terrace: 42 m²
✅ Separate brick-built double garage: 30 m²
(can be converted into an independent living unit or guest house upon request)
✅ Plot size: 738 m²
✅ Swimming pool: 8 × 3.5 m, with direct terrace access
Layout:
✅ Spacious, bright open-plan living room with kitchen and direct terrace & pool connection
✅ 3 well-sized bedrooms
✅ Master bedroom (16.8 m²) with private 10 m² bathroom and walk-in wardrobe
✅ Additional bathroom
✅ Pantry
✅ Walk-in wardrobe
✅ Utility / mechanical room
Outdoor Living:
✅ Covered terrace with built-in barbecue / outdoor cooking area
✅ Planned summer kitchen unit and outdoor shower
✅ Harmonized paving around the house and terrace
Technical Specifications – Premium Quality Throughout:
✅ 30 cm Porotherm brick structure + 15 cm external insulation
✅ Reinforced concrete slab with 30 cm insulation
✅ 8 kW heat pump heating system, H-tariff compatible
✅ Underfloor heating in all rooms
✅ Standing seam metal roof
✅ Triple-glazed, 5-chamber premium windows and doors
✅ Electric shutters on all windows
✅ Pre-installed alarm system
✅ 1 air-conditioning unit
✅ Premium flooring and wall coverings (up to €20/m² equivalent)
✅ High-quality interior doors
✅ 5-point security entrance door
The construction is currently at structural-ready stage, the property is already accessible for viewing, and all documentation is available.
Price: HUF 149,000,000
Swimming pool + separate: + HUF 15,000,000 (mandatory to buy)
✅ Eligible for CSOK Plus & 3% subsidized loan programs
✅ Schools, kindergarten and shopping facilities nearby
✅ M7 motorway reachable within minutes
Expected handover: Summer–Autumn 2026
???? For further information or to arrange a viewing, please contact us with confidence.
Regisztrációs szám
U0049457
Az ingatlan adatai
Értékesités
eladó
Jogi státusz
új
Jelleg
ház
Építési mód
tégla
Méret
143 m²
Bruttó méret
170,1 m²
Telek méret
738 m²
Terasz / erkély mérete
42 m²
Kert méret
537 m²
Fűtés
hőszivattyú
Belmagasság
280 cm
Tájolás
Dél-nyugat
Panoráma
Egyéb
Állapot
Kiváló
Homlokzat állapota
Kiváló
Környék
csendes, zöld
Építés éve
2025
Fürdőszobák száma
2
Társaház kert
igen
Garázs
Kötelezően vásárolandó
Garázs férőhely
2
Víz
Van
Gáz
Utcán
Villany
Van
Csatorna
Van
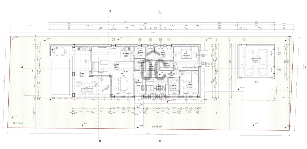
Helyiségek
gardrób
3.36 m²
nappali-étkező
37.9 m²
gardrób
3.52 m²
hálószoba
16.8 m²
fürdőszoba-wc
10.12 m²
hálószoba
12.64 m²
fürdőszoba-wc
5.04 m²
hálószoba
10.08 m²
kamra
3.52 m²
gardrób
3.36 m²
egyéb
3.7 m²
gardrób
3.52 m²
előszoba
7.6 m²
fürdőszoba-wc
10.12 m²
közlekedő
6.87 m²
fürdőszoba-wc
5.04 m²
terasz
42.82 m²
kamra
3.52 m²
konyha
7 m²
egyéb
3.7 m²
előszoba
7.6 m²
közlekedő
6.87 m²
terasz
42.82 m²
konyha
7 m²
Ruczek János
Hitelszakértő