For sale panel apartment, H510059
Budapest XI. kerület, Kelenföld, Allende park

89,900,000 Ft

234,000 €

  • 48m²
  • 2 Rooms
  • 2nd floor
Splitting Contract

Eladó 2 szobás lakás Allende parkban.

Fedezze fel az új otthonát az Allende parknál, a XI. kerületben! Ez a modern, felújítás alatt álló lakás már felújítás után azonnal költözhető.
Egyedülálló, újragondolt alaprajzának köszönhetően praktikus terek és jól átgondolt elosztás várja az új lakót. A jó hír: ide csak bőröndöt kell hoznia, minden más már megoldott!

Ideális választás azok számára, akik modern, kényelmes és azonnali költözést kívánnak. Tegye meg az első lépést új otthona felé még ma!

Registration Number

H510059

Property Details

Sales
for sale
Legal Status
used
Character
apartment
Construction Method
panel
Net Size
48 m²
Gross Size
50 m²
Size of Terrace / Balcony
4 m²
Heating
district heating
Ceiling Height
270 cm
Number of Levels Within the Property
1
Orientation
West
Staircase Type
enclosed staircase
Condition
Excellent
Condition of Facade
Excellent
Condition of Staircase
Excellent
Basement
Shared
Neighborhood
quiet, good transport
Year of Construction
1970
Number of Bathrooms
1
Position
courtyard-facing
Water
Available
Gas
Available
Electricity
Available
Sewer
Available
Storage
Independent

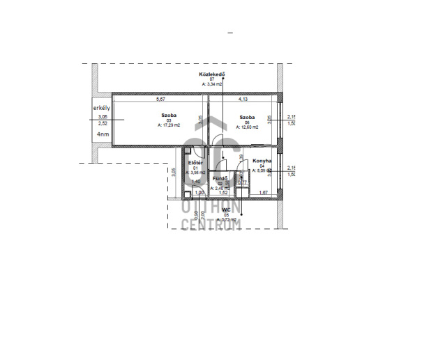
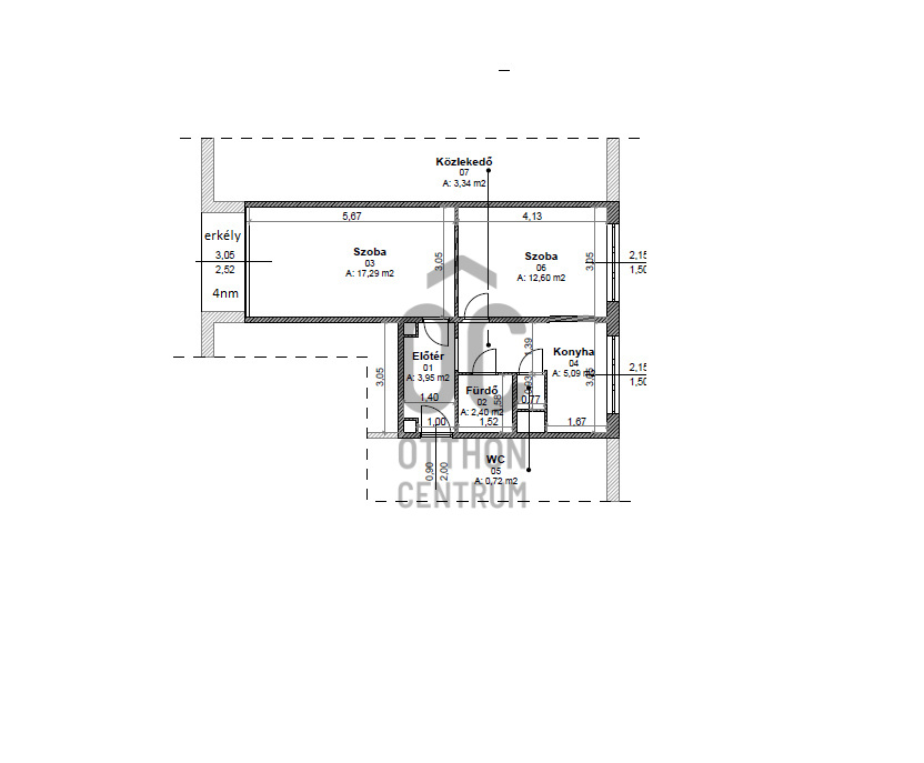
Rooms

living room
17.2 m²
kitchen
5.09 m²
balcony
4 m²
bathroom
2.4 m²
entryway
3.95 m²
Ruczek János
Ruczek János

Credit Expert

From Our Office Listings - XI. kerület - Gellért tér

for sale apartment

Index image
22

for sale semi-detached house

Index image
26

for sale apartment

Index image
15

for rent apartment

Index image
20

for sale apartment

Index image
23

for sale apartment

Index image
13

for sale new construction semi-detached house

Index image
37

for sale panel apartment

Index image
data_sheet.details.realestate.section.main.otthonstart_flag.label
14