data_sheet.details.realestate.section.main.otthonstart_flag.label
For sale family house,
H509150
Ráckeresztúr
94,900,000 Ft
251,000 €
- 190m²
- 5 Rooms
ÓRIÁSI FEDETT TERASZ - EXKLUZÍV KIVILÁGÍTOTT SZALETLI - SÜTÖGETŐ - WELLNESS - TÖBBGENERÁCIÓS LEHETŐSÉG - BEFEKTETŐK FIGYELEM: KETTÉOSZTHATÓ TELEK!!!
Ráckeresztúr egyik CSENDES utcájában található ez a 3 SZINTES, 5 tágas szobával rendelkező családi ház. GYÖNYÖRŰEN FELÚJÍTOTT!!!
BEFEKTETŐKNEK IS AJÁNLJUK: ha szolgalmi utat létesít, a telek hátsó része megközelíthető. A telek ketté osztható és így még egy ház felépítése is lehetséges.
- KANDALLÓ!
- 4db. KLÍMA!!!
- áram: 1 x 20Amper, 2 x 16Amper, 3 fázis bent van
- cseréptető, B30-as téglából épült, 1994-ben épült, 5cm szigetelés
- betonfödémes, erős szerkezetű
- tető: 15cm szigetelés
- vadonat új kondenzációs gázkazán
Földszint:
- a földszinten össze lehet vonni az étkezőt és a nappalit és egy AMERIKAI-KONYHÁS-ÉTKEZŐS-NAPPALIT lehetne ott létesíteni
- így felszabadulna a jelenlegi konyha helyiség és abból egy lakószobát lehetne kialakítani
- mivel van a felszínen egy 2 beállásos garázs, így a ház alatti garázst SZUTERÉN-LAKÁSKÉNT lehetne használni
- pl. a garázsból egy szobát alakítani és egy fürdőszobát és egy konyhát kialakítani
- ez akár egy NAGYSZÜLŐNEK vagy egy SZÁRNYAT BONTÓ FIATALNAK is egy kiváló lehetőség
- aki nem alakítja át, az MŰHELYKÉNT is használhatja és mellette élvezheti a WHIRLPOOL-os MOZI-ÉRZÉST és a SZAUNÁT, mellette jelenleg zeneszoba van
- továbbá van egy ÓRIÁSI FEDETT TERASZ, egy KIVILÁGÍTOTT SZALETLI PÁLMÁKKAL, egy FEDETT SÜTÖGETŐ-BOGRÁCSOZÓ, egy KERTI SZERSZÁM-TÁROLÓ és egy 2 BEÁLLÁSOS GARÁZS SZERELŐAKNÁVAL
- továbbá egy kis dolgozó szoba és egy tusolós fürdőszoba-WC is található ezen a szinten
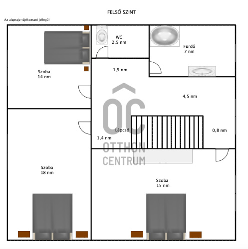
Felső emelet:
- 3 tágas szoba, egy nagy és kényelmes WC-helyiség, egy kádas-fürdőszoba
Alsó szint:
- Garázs/Műhely, Wellness-Mozi-Szauna szoba, Zeneszoba
Kert:
- tároló, 2 beállásos garázs szerelőaknával, fedett terasz, fedett sütögető-bográcsozó és egy óriás telek lehetőségekkel
Autópálya a közelben. Buszmegálló 6-7 perc gyalog az utca végén (Martonvásár, Ercsi, Százhalombatta és Ráckeresztúr járattal). Martonvásárból vonatok is indulnak, akár Budapestre. Ajánlom nagycsaládosoknak, összeköltözőknek, többgenerációs megoldásnak és befektetőknek (telekmegosztás stb.).
Várom megkeresését!
BEFEKTETŐKNEK IS AJÁNLJUK: ha szolgalmi utat létesít, a telek hátsó része megközelíthető. A telek ketté osztható és így még egy ház felépítése is lehetséges.
- KANDALLÓ!
- 4db. KLÍMA!!!
- áram: 1 x 20Amper, 2 x 16Amper, 3 fázis bent van
- cseréptető, B30-as téglából épült, 1994-ben épült, 5cm szigetelés
- betonfödémes, erős szerkezetű
- tető: 15cm szigetelés
- vadonat új kondenzációs gázkazán
Földszint:
- a földszinten össze lehet vonni az étkezőt és a nappalit és egy AMERIKAI-KONYHÁS-ÉTKEZŐS-NAPPALIT lehetne ott létesíteni
- így felszabadulna a jelenlegi konyha helyiség és abból egy lakószobát lehetne kialakítani
- mivel van a felszínen egy 2 beállásos garázs, így a ház alatti garázst SZUTERÉN-LAKÁSKÉNT lehetne használni
- pl. a garázsból egy szobát alakítani és egy fürdőszobát és egy konyhát kialakítani
- ez akár egy NAGYSZÜLŐNEK vagy egy SZÁRNYAT BONTÓ FIATALNAK is egy kiváló lehetőség
- aki nem alakítja át, az MŰHELYKÉNT is használhatja és mellette élvezheti a WHIRLPOOL-os MOZI-ÉRZÉST és a SZAUNÁT, mellette jelenleg zeneszoba van
- továbbá van egy ÓRIÁSI FEDETT TERASZ, egy KIVILÁGÍTOTT SZALETLI PÁLMÁKKAL, egy FEDETT SÜTÖGETŐ-BOGRÁCSOZÓ, egy KERTI SZERSZÁM-TÁROLÓ és egy 2 BEÁLLÁSOS GARÁZS SZERELŐAKNÁVAL
- továbbá egy kis dolgozó szoba és egy tusolós fürdőszoba-WC is található ezen a szinten
Felső emelet:
- 3 tágas szoba, egy nagy és kényelmes WC-helyiség, egy kádas-fürdőszoba
Alsó szint:
- Garázs/Műhely, Wellness-Mozi-Szauna szoba, Zeneszoba
Kert:
- tároló, 2 beállásos garázs szerelőaknával, fedett terasz, fedett sütögető-bográcsozó és egy óriás telek lehetőségekkel
Autópálya a közelben. Buszmegálló 6-7 perc gyalog az utca végén (Martonvásár, Ercsi, Százhalombatta és Ráckeresztúr járattal). Martonvásárból vonatok is indulnak, akár Budapestre. Ajánlom nagycsaládosoknak, összeköltözőknek, többgenerációs megoldásnak és befektetőknek (telekmegosztás stb.).
Várom megkeresését!
Registration Number
H509150
Property Details
Sales
for sale
Legal Status
used
Character
house
Construction Method
brick
Net Size
190 m²
Gross Size
211 m²
Plot Size
2,042 m²
Size of Terrace / Balcony
21 m²
Garden Size
2,042 m²
Heating
Gas circulator
Ceiling Height
260 cm
Number of Levels Within the Property
2
Orientation
South-East
Condition
Excellent
Condition of Facade
Excellent
Basement
Independent
Neighborhood
quiet, good transport, green
Year of Construction
1994
Number of Bathrooms
2
Condominium Garden
yes
Garage
Included in the price
Garage Spaces
4
Water
Available
Gas
Available
Electricity
Available
Sewer
Available
Multi-Generational
yes
Storage
Independent
Rooms
terrace
21 m²
living room
20 m²
dining room
13 m²
kitchen
9 m²
bathroom-toilet
6 m²
study
2.5 m²
entryway
14 m²
bedroom
14 m²
bedroom
18 m²
bedroom
15 m²
bathroom
7 m²
toilet
2.5 m²
corridor
8.2 m²
garage
31 m²
sauna
20 m²
gym
10 m²
Horváth Eleonóra
Credit Expert