185,900,000 Ft
493,000 €
- 125m²
- 3 Rooms
Fedezze fel álmai otthonát Diósdon – 2 szoba+nappali kialakítású családi ház várja Önt - Saját magánúttal
Egy kivételes lehetőséget kínálunk Önnek Diósdligeten , fiatalok, családosok számára ideális otthonra lelhetnek.
Ez a modern, használt ház brutto 145 négyzetméteres alapterületével és 1032 négyzetméteres telkével tökéletes választás mindazok számára, akik a város zajától távol, de mégis központi elhelyezkedésben szeretnének élni.
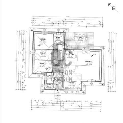
Az ingatlanban 2 szoba található plusz nappali+étkező+konyha, a nappali különösen világos és barátságos, köszönhetően a nagy ablakoknak és a minimalista kialakításnak.
A nappali élettere így több mint 60 nm, ez 1 esetleg 2 kisebb szoba leválasztását is lehetővé teszi még.
A központi tér nagyon jó lehetőséget kínál a minden napi élethez és a családi összejövetelek és baráti találkozók felejthetetlen élményeket nyújtanak.
A házhoz tartozó 24,5 négyzetméteres terasz ideális helyszín a pihenésre és a szabadban eltöltött időre.
Az ingatlan állapota kiváló, 2025-ben készült el, a fűtés gáz cirkóval megoldott, míg a hűtésről klíma gondoskodik, így a nyári melegben is kellemes hőmérséklet várja a lakókat.
Az ingatlanban gardrób szoba és mosókonyha is található, amelyek praktikus tárolási megoldásokat kínálnak.
A modern LED hangulatvilágítás és a redőnyök pedig a kényelmet és az exkluzív megjelenést szolgálják.
A környék ellátottsága kiváló, a közlekedési csomópont közelsége miatt a közlekedés kitűnő, így a főváros könnyedén elérhető.
Diósd csendes, kertvárosi lakásai között található ez a gyöngyszem, a, ideális kertet biztosítva a gyermekek számára a szabadban való játékhoz.
Az ingatlanban található egy 2 állásos garázs 36 nm és egy 15 nm nyári konyha is.
A környék nyugodt, de a ház nem az utcafronton helyezkedik el, magánút vezet hozzá, ez is garantálja, hogy Ön nyugodtan élvezheti otthona kényelmét.
Ez a felkapott környék nemcsak a családok, hanem a befektetők számára is vonzó lehetőségeket kínál.
Az ingatlan elhelyezkedése miatt a jövőbeli értéknövekedés garantált, így érdemes mihamarabb lépni.
Kérjük, ne habozzon, keressen bizalommal bármilyen kérdésével vagy időpont egyeztetéssel kapcsolatban.
Az Ön álmai otthona már csak egy telefonhívásnyira van!
Ez a modern, használt ház brutto 145 négyzetméteres alapterületével és 1032 négyzetméteres telkével tökéletes választás mindazok számára, akik a város zajától távol, de mégis központi elhelyezkedésben szeretnének élni.
Az ingatlanban 2 szoba található plusz nappali+étkező+konyha, a nappali különösen világos és barátságos, köszönhetően a nagy ablakoknak és a minimalista kialakításnak.
A nappali élettere így több mint 60 nm, ez 1 esetleg 2 kisebb szoba leválasztását is lehetővé teszi még.
A központi tér nagyon jó lehetőséget kínál a minden napi élethez és a családi összejövetelek és baráti találkozók felejthetetlen élményeket nyújtanak.
A házhoz tartozó 24,5 négyzetméteres terasz ideális helyszín a pihenésre és a szabadban eltöltött időre.
Az ingatlan állapota kiváló, 2025-ben készült el, a fűtés gáz cirkóval megoldott, míg a hűtésről klíma gondoskodik, így a nyári melegben is kellemes hőmérséklet várja a lakókat.
Az ingatlanban gardrób szoba és mosókonyha is található, amelyek praktikus tárolási megoldásokat kínálnak.
A modern LED hangulatvilágítás és a redőnyök pedig a kényelmet és az exkluzív megjelenést szolgálják.
A környék ellátottsága kiváló, a közlekedési csomópont közelsége miatt a közlekedés kitűnő, így a főváros könnyedén elérhető.
Diósd csendes, kertvárosi lakásai között található ez a gyöngyszem, a, ideális kertet biztosítva a gyermekek számára a szabadban való játékhoz.
Az ingatlanban található egy 2 állásos garázs 36 nm és egy 15 nm nyári konyha is.
A környék nyugodt, de a ház nem az utcafronton helyezkedik el, magánút vezet hozzá, ez is garantálja, hogy Ön nyugodtan élvezheti otthona kényelmét.
Ez a felkapott környék nemcsak a családok, hanem a befektetők számára is vonzó lehetőségeket kínál.
Az ingatlan elhelyezkedése miatt a jövőbeli értéknövekedés garantált, így érdemes mihamarabb lépni.
Kérjük, ne habozzon, keressen bizalommal bármilyen kérdésével vagy időpont egyeztetéssel kapcsolatban.
Az Ön álmai otthona már csak egy telefonhívásnyira van!
Registration Number
H512868
Property Details
Sales
for sale
Legal Status
used
Character
house
Construction Method
brick
Net Size
125 m²
Gross Size
145 m²
Plot Size
1,032 m²
Size of Terrace / Balcony
24.5 m²
Heating
Gas circulator
Ceiling Height
272 cm
Orientation
South-West
Condition
Excellent
Condition of Facade
Excellent
Neighborhood
quiet, good transport, green
Year of Construction
2025
Number of Bathrooms
1
Condominium Garden
yes
Garage
Included in the price
Garage Spaces
2
Water
Available
Gas
Available
Electricity
Available
Sewer
Available
Storage
Independent
Rooms
room
14.4 m²
room
11.1 m²
bathroom
9.4 m²
laundry room
5.3 m²
pantry
3.7 m²
kitchen
6.6 m²
living room
52 m²
wardrobe
3.5 m²
toilet-washbasin
1.5 m²
terrace
24.5 m²
corridor
9.3 m²
garage
36 m²
storage
15 m²
Horváth Eleonóra
Credit Expert