330 505 500 Ft
850 000 €
- 2 644m²
- 1. emelet












Szombathely forgalmas ipari-kereskedelmi részén eladásra kínálunk egy jövedelemtermelő ipari telephelyet. Az ingatlan Szombathely nyugati részén található ipari parkban helyezkedik. Környékén számos neves cég telephelyei, és üzletei találhatóak: Schaeffler Savaria, Qtruck, Domino Trans, Tesco, Praktiker, stb.
Az ingatlantól autóval 4 percre található az M86-os autóút, a Szombathelyi vasútállomás pedig 6 percre.
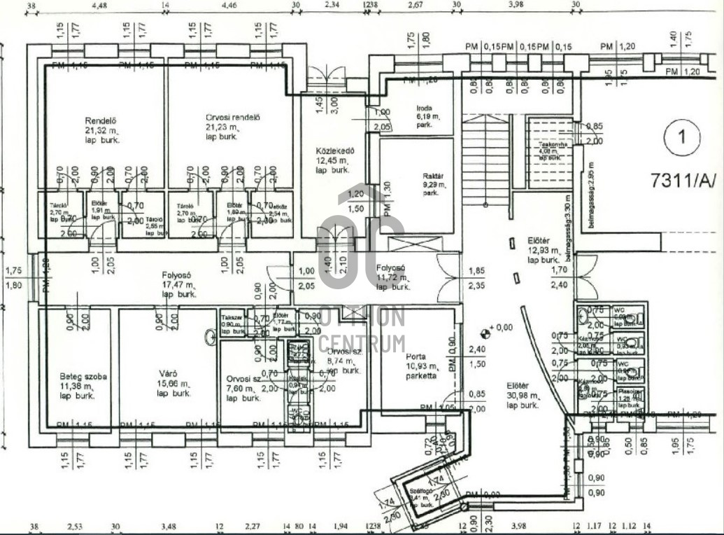
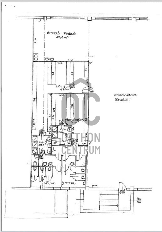
Földszint + emelet felosztással rendelkezik. Nettó 2644 m2 területű. Jelenleg bérbe van adva 2026 februárjáig.
Kiválóan alkalmas kereskedelmi, logisztikai vagy raktár funkció betöltésére.
Az eladási 1.100.000 euró amit további ÁFA terhel.
Az ingatlantól autóval 4 percre található az M86-os autóút, a Szombathelyi vasútállomás pedig 6 percre.
Földszint + emelet felosztással rendelkezik. Nettó 2644 m2 területű. Jelenleg bérbe van adva 2026 februárjáig.
Kiválóan alkalmas kereskedelmi, logisztikai vagy raktár funkció betöltésére.
Az eladási 1.100.000 euró amit további ÁFA terhel.
Regisztrációs szám
UZ010369
Az ingatlan adatai
Értékesités
eladó
Jogi státusz
használt
Jelleg
üzleti célú
Típus
teljes épület
Építési mód
tégla
Méret
2 644 m²
Bruttó méret
2 644 m²
Telek méret
2 644 m²
Föld feletti nettó méret
2 644 m²
Belmagasság
100 cm
Állapot
Jó
Homlokzat állapota
Jó
Fürdőszobák száma
1
Víz
Van
Gáz
Van
Villany
Van
Csatorna
Van
Lehetséges funkciók
iroda és raktár
Hasznosítás
üres