585 585 000 Ft
1 500 000 €
- 1 700m²




Logisztikai befektetés Alsónémediben!
Alsónémedi Budapest déli agglomerációjában található. Pest vármegye egyik jelentős logisztikai és ipari központjaként van számontartva. Magyarország legnagyobb és legfejlettebb logisztikai területe az M0-ás autópálya déli szakaszának a vonzáskörzete, hiszen az M0-ás segítségével az ország összes autópályája elérhető Budapest kikerülésével. Az elmúlt években nagy fejlesztések történtek ebben a régióban. Budapest térségében a kisebb gyártóipari-termelő beruházást folytató cégek ezt a térséget preferálják most is. Az itt található Gksz vagy Gip besorolású telkek jellemző ára eléri a 80-100 EUR+ÁFA/m2-t is, tehát az ingatlant alig magasabb áron kínáljuk, mint a telekár.
Az ingatlan egy három helyrajzi számból álló telekegyüttes összességének része. A másik két hrsz-en található ingatlan is eladó.
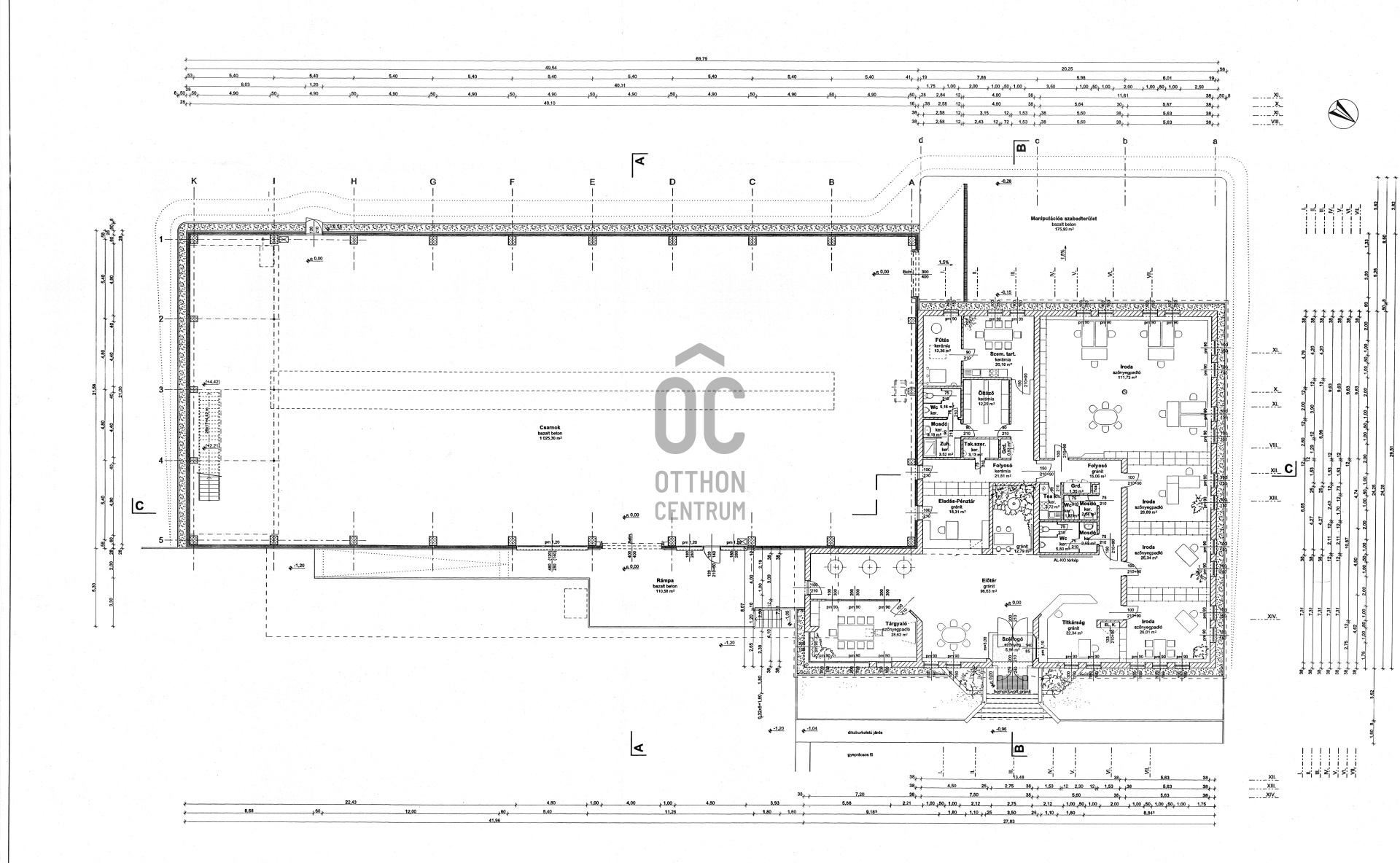
A telken egy nagyjából 5 éve épült modern cégközpont épülete áll. Ez az épület körülbelül 700 m2 irodát és bemutatótermet, valamint egy 1000 m2-es, 8 m belmagasságú modern raktárat foglal magába, amelyek egy szinten helyezkednek el. Az épület esztétikailag és energetikailag korszerű, "A" kategóriás.
Bérleti konstrukció:
Az ingatlan bérbe van adva, de ha a vevő saját használatra vásárolná az ingatlant, akkor megoldható a bérleti szerződés megszüntetése.
Övezeti paraméterek
• Övezeti kód: GKSZ-2-es övezet
• Min teleknagyság 2000 m2
• Beépíthetőség: 45%
• Kötelező előkert: 7 méter
• Legnagyobb épületmagasság: 7,5 méter
• Szintterület-mutató: 1,0 m2/m2
Az ingatlan irányára: 1.500.000 EUR
Bármilyen az ingatlannal kapcsolatos kérdéssel keressen bizalommal!
Az ingatlan egy három helyrajzi számból álló telekegyüttes összességének része. A másik két hrsz-en található ingatlan is eladó.
A telken egy nagyjából 5 éve épült modern cégközpont épülete áll. Ez az épület körülbelül 700 m2 irodát és bemutatótermet, valamint egy 1000 m2-es, 8 m belmagasságú modern raktárat foglal magába, amelyek egy szinten helyezkednek el. Az épület esztétikailag és energetikailag korszerű, "A" kategóriás.
Bérleti konstrukció:
Az ingatlan bérbe van adva, de ha a vevő saját használatra vásárolná az ingatlant, akkor megoldható a bérleti szerződés megszüntetése.
Övezeti paraméterek
• Övezeti kód: GKSZ-2-es övezet
• Min teleknagyság 2000 m2
• Beépíthetőség: 45%
• Kötelező előkert: 7 méter
• Legnagyobb épületmagasság: 7,5 méter
• Szintterület-mutató: 1,0 m2/m2
Az ingatlan irányára: 1.500.000 EUR
Bármilyen az ingatlannal kapcsolatos kérdéssel keressen bizalommal!
Regisztrációs szám
UZ018788
Az ingatlan adatai
Értékesités
eladó
Jogi státusz
használt
Jelleg
üzleti célú
Típus
teljes épület
Építési mód
tégla
Méret
1 700 m²
Telek méret
7 572 m²
Föld feletti nettó méret
1 700 m²
Belmagasság
800 cm
Állapot
Jó
Homlokzat állapota
Jó
Víz
Van
Gáz
Van
Villany
Van
Csatorna
Van
Lehetséges funkciók
iroda és raktár
Hasznosítás
üres
Havi bérleti díj
145230