Elérhető Otthon Start hitellel
Eladó házrész, H515341
Budapest XXII. kerület, Budafok, Liszt Ferenc út

80 000 000 Ft

205 000 €

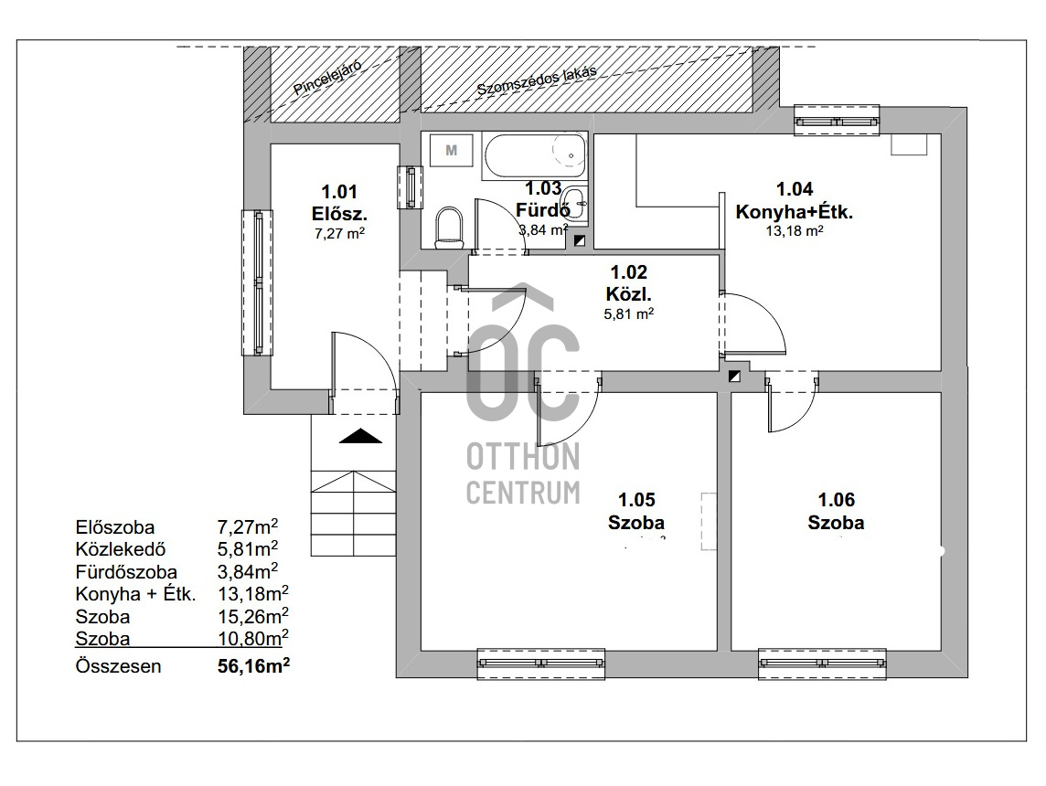
  • 56m²
  • 2 szoba
  • földszint
Kiemelt megbízás

Kertes- családias lakás minden korosztálynak!

22.kerületben, Budafok kertvárosi részén, közkedvelt utcában megvételre kínálok egy földszintes házrészt (lakást).
Három lakásos társasházon belül az eladó ingatlan a földszinten helyezkedik el.
Részlegesen már felújították, a nyílászárókat, parkettát és a kazánt kicserélték, jelenleg a fürdőszoba és az előszoba még felújítást igényel.
Saját, lekerített kertrész és pince tartozik a lakáshoz.
Kellemes, családias hangulatú házrész, kedves szomszédokkal. A kertet és a kertészkedést kedvelőknek kifejezetten a figyelmébe ajánlom.
Jogilag rendezett, osztatlan közös tulajdonú,ügyvédi ellenjegyzéssel ellátott használati megosztással rendelkezik.
Időseknek, de fiatal párnak is, kezdő lakásként ideális otthona lehet.
Rugalmasan megtekinthető, azonnal költözhető.

Regisztrációs szám

H515341

Az ingatlan adatai

Értékesités
eladó
Jogi státusz
használt
Jelleg
ház
Építési mód
tégla
Méret
56 m²
Bruttó méret
56 m²
Telek méret
200 m²
Kert méret
100 m²
Fűtés
Gáz cirkó
Belmagasság
270 cm
Tájolás
Észak-kelet
Panoráma
Zöldre néző panoráma
Lépcsőház típusa
nincs
Állapot
Átlagos
Homlokzat állapota
Átlagos
Lépcsőház állapota
Átlagos
Pince
Közös
Környék
csendes, jó közlekedés, zöld
Építés éve
1960
Fürdőszobák száma
1
Fekvés
kertre néző
Társaház kert
igen
Víz
Van
Gáz
Van
Villany
Van
Csatorna
Van

Helyiségek

előszoba
7 m²
közlekedő
6 m²
fürdőszoba-wc
4 m²
konyha-étkező
13 m²
szoba
15 m²
szoba
12 m²
Pongó Miklós
Pongó Miklós

Hitelszakértő

Irodánk kínálatából - XXII. kerület - Mária Terézia utca

for sale apartment

Index image
data_sheet.details.realestate.section.main.otthonstart_flag.label
27

for sale semi-detached house

Index image
15

for sale apartment

Index image
data_sheet.details.realestate.section.main.otthonstart_flag.label
18

for sale family house

Index image
34

for sale apartment

Index image
data_sheet.details.realestate.section.main.otthonstart_flag.label
11

for sale apartment

Index image
14

for sale family house

Index image
17

for sale family house

Index image
data_sheet.details.realestate.section.main.otthonstart_flag.label
14