Elérhető Otthon Start hitellel
Eladó panel lakás,
H510809
Budapest XXI. kerület, Csillagtelep, Rakéta utca
62 900 000 Ft
165 000 €
- 62m²
- 3 szoba
- 4. emelet
Fedezze fel álmai otthonát Csillagtelepen – 3 szobás lakás várja Önt Budapesten!
Eladó Csepelen, Csillagtelep közkedvelt, zöldövezeti részén egy napfényes, 62 m²-es, erkélyes, 2+1 szobás, jó állapotú panellakás – alacsony rezsivel, rendezett házban!
A lakás egy négyemeletes, folyamatosan karbantartott társasház legfelső szintjén található, mindkét irányba zöldre néző, kellemes kilátással és kiváló benapozottsággal.
A keleti fekvésű konyha és két szoba, valamint a nyugati tájolású nappali miatt a lakás egész nap világos és élhető.
Főbb jellemzők:
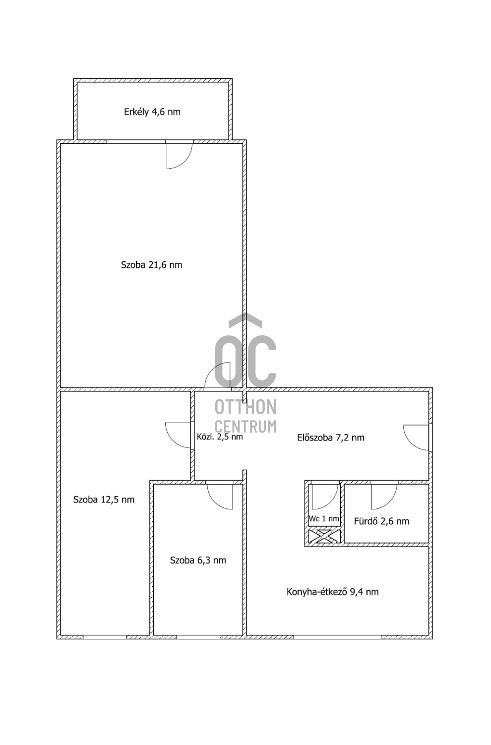
-62 m², jól kialakított alaprajz
-Erkélyes, 20 m² feletti nappali (nyugati tájolás, napellenző)
-12 m²-es hálószoba
-6,3 m²-es félszoba
-Ablakos konyha, beépített bútorokkal
-Felújított, zuhanyzós fürdő, külön WC
-Tágas előszoba nagy beépített szekrénnyel
-Fa nyílászárók, a keleti oldalon redőnnyel és szúnyoghálóval
-A nyugati oldalon szúnyogháló + az erkélyen napellenző
-Egy éves klíma a nappaliban
-Távfűtés
-Burkolatok: két szoba parkettás, egy szoba szőnyeges, a többi helyiség járólapos
-Több ponton záródó, biztonsági bejárati ajtó
-Nagy méretű saját tároló + közös tárolók
A társasház:
-Rendezett, rendszeresen karbantartott épület
-Frissen felújított lépcsőház (burkolat + festés)
-Stabil anyagi háttér, tartalékkal
-Nyugodt, biztonságos környezet sok zölddel
Költségek és parkolás:
-Közös költség: 12 000 Ft
-Parkolás ingyenes a ház előtt
Infrastruktúra:
-Kiváló közlekedés
-A közelben: több iskola, óvoda, üzletek, orvosi rendelő, gyógyszertár, játszóterek
-Családbarát, élhető környék
Tulajdoni viszonyok:
-1/1 tulajdon
-Tehermentes
A lakás egy négyemeletes, folyamatosan karbantartott társasház legfelső szintjén található, mindkét irányba zöldre néző, kellemes kilátással és kiváló benapozottsággal.
A keleti fekvésű konyha és két szoba, valamint a nyugati tájolású nappali miatt a lakás egész nap világos és élhető.
Főbb jellemzők:
-62 m², jól kialakított alaprajz
-Erkélyes, 20 m² feletti nappali (nyugati tájolás, napellenző)
-12 m²-es hálószoba
-6,3 m²-es félszoba
-Ablakos konyha, beépített bútorokkal
-Felújított, zuhanyzós fürdő, külön WC
-Tágas előszoba nagy beépített szekrénnyel
-Fa nyílászárók, a keleti oldalon redőnnyel és szúnyoghálóval
-A nyugati oldalon szúnyogháló + az erkélyen napellenző
-Egy éves klíma a nappaliban
-Távfűtés
-Burkolatok: két szoba parkettás, egy szoba szőnyeges, a többi helyiség járólapos
-Több ponton záródó, biztonsági bejárati ajtó
-Nagy méretű saját tároló + közös tárolók
A társasház:
-Rendezett, rendszeresen karbantartott épület
-Frissen felújított lépcsőház (burkolat + festés)
-Stabil anyagi háttér, tartalékkal
-Nyugodt, biztonságos környezet sok zölddel
Költségek és parkolás:
-Közös költség: 12 000 Ft
-Parkolás ingyenes a ház előtt
Infrastruktúra:
-Kiváló közlekedés
-A közelben: több iskola, óvoda, üzletek, orvosi rendelő, gyógyszertár, játszóterek
-Családbarát, élhető környék
Tulajdoni viszonyok:
-1/1 tulajdon
-Tehermentes
Regisztrációs szám
H510809
Az ingatlan adatai
Értékesités
eladó
Jogi státusz
használt
Jelleg
lakás
Építési mód
panel
Méret
62 m²
Bruttó méret
65 m²
Terasz / erkély mérete
4 m²
Fűtés
távfűtés
Belmagasság
260 cm
Tájolás
Dél-nyugat
Lépcsőház típusa
zárt lépcsőház
Állapot
Jó
Homlokzat állapota
Jó
Lépcsőház állapota
Jó
Pince
Közös
Építés éve
1987
Fürdőszobák száma
1
Fekvés
utcai
Közös költség
12000
Víz
Van
Villany
Van
Csatorna
Van
Helyiségek
nappali
21.6 m²
konyha
9.4 m²
fürdőszoba
2.6 m²
wc
1 m²
előszoba
7.2 m²
szoba
6.3 m²
szoba
12.5 m²
erkély
4.6 m²
Helembai Dávid
Hitelszakértő