Elérhető Otthon Start hitellel
Eladó lakás,
H510429
Budapest IX. kerület, József Attila-lakótelep, Távíró utca
65 900 000 Ft
173 000 €
- 55m²
- 2 szoba
- 1. emelet
Erkélyes első emeleti eladó lakás a József Attila lakótelepen!
Megvételre kínálunk egy jó elosztású lakást a közkedvelt József Attila lakótelepen!
Az ingatlanról:
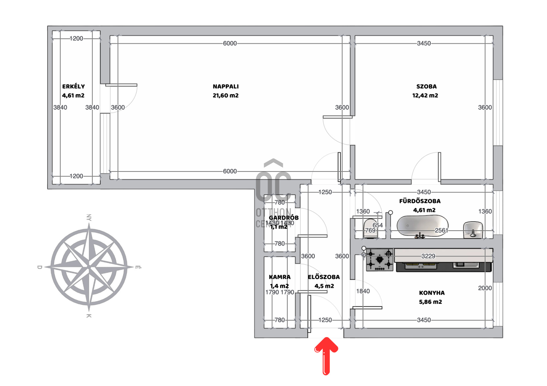
✔️ 55 m2, 2 szobás
✔️ 1.emeleti
részei: 2 szoba, konyha, fürdőszoba, előszoba, 2 kamra/gardrób.
✔️ erkély 4 m2
✔️ Az ingatlanban az ablakok műanyagra lettek cserélve illetve redőnnyel ellátottak.
✔️ A villanyvezetékek rézből vannak.
✔️ Fűtése: távfűtés mely egyedi mérővel felszerelt.
közös költség 22.000 Ft melyben van felújítási alap is.
✔️ Teljesen tehermentes és 1 tulajdonosa van!
✔️ Azonnal birtokba vehető
Annak ellenére, hogy az ingatlan a IX. kerületben található, a parkolás a ház előtt ingyenes.
Remek lokáció jellemzi. Közelben az M3 Metro.
Játszóterek és rengeteg zöld terület várja majd az itt lakókat.
Ajánlom, kiadásra vagy saját részre is kiváló lehetőség.
Várom hívását a hét bármelyik napján!
Az ingatlanról:
✔️ 55 m2, 2 szobás
✔️ 1.emeleti
részei: 2 szoba, konyha, fürdőszoba, előszoba, 2 kamra/gardrób.
✔️ erkély 4 m2
✔️ Az ingatlanban az ablakok műanyagra lettek cserélve illetve redőnnyel ellátottak.
✔️ A villanyvezetékek rézből vannak.
✔️ Fűtése: távfűtés mely egyedi mérővel felszerelt.
közös költség 22.000 Ft melyben van felújítási alap is.
✔️ Teljesen tehermentes és 1 tulajdonosa van!
✔️ Azonnal birtokba vehető
Annak ellenére, hogy az ingatlan a IX. kerületben található, a parkolás a ház előtt ingyenes.
Remek lokáció jellemzi. Közelben az M3 Metro.
Játszóterek és rengeteg zöld terület várja majd az itt lakókat.
Ajánlom, kiadásra vagy saját részre is kiváló lehetőség.
Várom hívását a hét bármelyik napján!
Regisztrációs szám
H510429
Az ingatlan adatai
Értékesités
eladó
Jogi státusz
használt
Jelleg
lakás
Építési mód
tégla
Méret
55 m²
Bruttó méret
57 m²
Terasz / erkély mérete
4 m²
Fűtés
egyedi távfűtés
Belmagasság
265 cm
Tájolás
Dél
Panoráma
Zöldre néző panoráma
Lépcsőház típusa
zárt lépcsőház
Állapot
Átlagos
Homlokzat állapota
Átlagos
Lépcsőház állapota
Jó
Környék
csendes, jó közlekedés, zöld, központi
Építés éve
1970
Fürdőszobák száma
1
Fekvés
utcai
Közös költség
22000
Víz
Van
Gáz
Van
Villany
Van
Csatorna
Van
Tároló
Közös
Helyiségek
szoba
21.6 m²
szoba
12.42 m²
konyha
5.86 m²
fürdőszoba-wc
4.61 m²
előszoba
4.5 m²
kamra
1.4 m²
kamra
1.1 m²
Helembai Dávid
Hitelszakértő