Plató I. projekt
Szombathelyen új építésű ikerházak eladók!
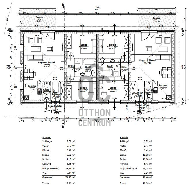
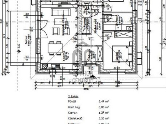
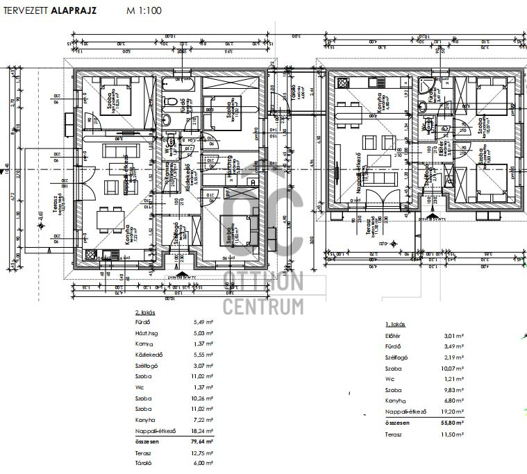
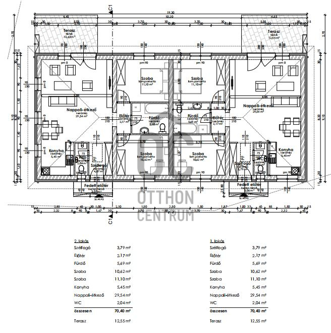
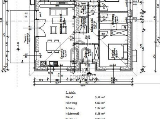
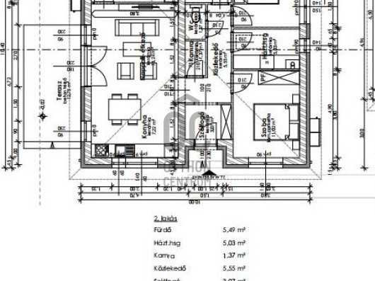
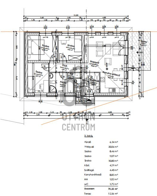
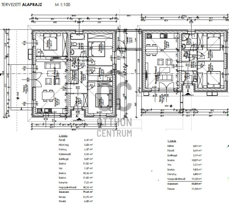
Új építésű ikerházak eladók Szombathelyen, az Oladi városrészen:
- több méretben kerülnek megépítésre: 47 nm-től akár 90 nm-ig
- telek méretek: 228 nm-től 774 nm-ig
- nappali+ 2, illetve nappali +3 szobás kivitelezéssel
Az ingatlanok magas minőségű műszaki tartalommal épülnek: tégla falazat, 15 cm-es homlokzati szigetelés, korszerű BOSCH kombi kazán /padlófűtés/ és háromrétegű műanyag nyílászárók, amelyek kiváló hő- és hangszigetelést biztosítanak. A házakban klíma is beépítésre kerül.
Ez az otthon ideális választás lehet, ha csendes környezetre, mégis városhoz közeli, modern életstílusra vágyik. Ha úgy érzi szívesen élne itt, kérem keressen, beszéljük át a részleteket!
✅ 47-90 m²-es lakótér + terasz
✅ 2-3 hálószoba, nappali-étkező-konyha egy légtérben
✅ fürdőszoba + külön WC
✅ közvetlen kertkapcsolat a nappaliból
✅ 228-774 m² saját kert – ideális családosoknak, vagy kertészkedni vágyóknak
✅ téglaépítésű, 15 cm hőszigeteléssel
✅ 3 rétegű műanyag nyílászárók
✅ BOSCH kondenzációs kazán + padlófűtés
✅ beépített klíma
✅ 2026-os átadás
Az ingatlanok modern műszaki tartalommal, energiatakarékos kialakítással készülnek, kellemes, csendes környezetben.
Ne maradjon le , keressen bizalommal!
Új építésű ikerházak eladók Szombathelyen, az Oladi városrészen:
- több méretben kerülnek megépítésre: 47 nm-től akár 90 nm-ig
- telek méretek: 228 nm-től 774 nm-ig
- nappali+ 2, illetve nappali +3 szobás kivitelezéssel
Az ingatlanok magas minőségű műszaki tartalommal épülnek: tégla falazat, 15 cm-es homlokzati szigetelés, korszerű BOSCH kombi kazán /padlófűtés/ és háromrétegű műanyag nyílászárók, amelyek kiváló hő- és hangszigetelést biztosítanak. A házakban klíma is beépítésre kerül.
Ez az otthon ideális választás lehet, ha csendes környezetre, mégis városhoz közeli, modern életstílusra vágyik. Ha úgy érzi szívesen élne itt, kérem keressen, beszéljük át a részleteket!
✅ 47-90 m²-es lakótér + terasz
✅ 2-3 hálószoba, nappali-étkező-konyha egy légtérben
✅ fürdőszoba + külön WC
✅ közvetlen kertkapcsolat a nappaliból
✅ 228-774 m² saját kert – ideális családosoknak, vagy kertészkedni vágyóknak
✅ téglaépítésű, 15 cm hőszigeteléssel
✅ 3 rétegű műanyag nyílászárók
✅ BOSCH kondenzációs kazán + padlófűtés
✅ beépített klíma
✅ 2026-os átadás
Az ingatlanok modern műszaki tartalommal, energiatakarékos kialakítással készülnek, kellemes, csendes környezetben.
Ne maradjon le , keressen bizalommal!










