Elérhető Otthon Start hitellel
Eladó újépítésű ikerház,
P4717-1-04-NA-000
Szombathely, Olad
86 900 000 Ft
224 000 €
- 90,7m²
- 5 szoba


Plató I. projekt
Plató I. projekt
Szombathelyen új építésű ikerház eladó!
Új építésű ikerház eladó Szombathelyen, az Oladi városrészen.
Egy modern ikerház egyik felét kínálom, amelyet 2026-ban vehet birtokba.
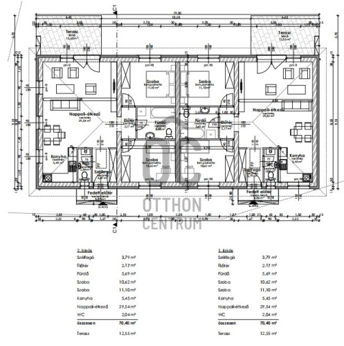
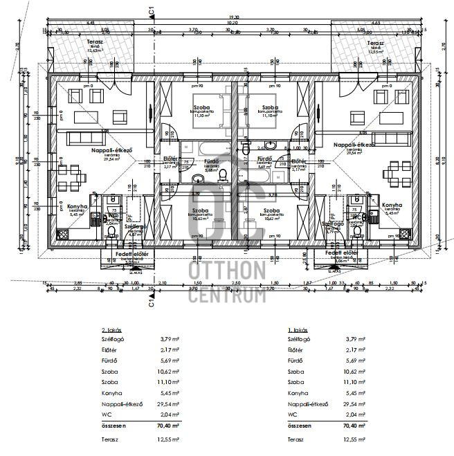
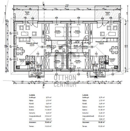
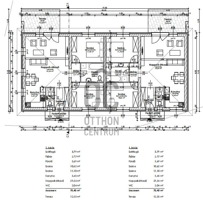
A 90,73 négyzetméteres lakótér minden részlete átgondolt: négy kényelmes hálószoba, egy tágas, világos nappali, amely egy légtérben helyezkedik el a konyha-étkezővel. Innen közvetlenül kiléphet a 12 négyzetméteres teraszra, ahol reggeli kávé, baráti beszélgetések, vagy egy csendes este is jól esik. Az ingatlanban két fürdőszoba kapott helyet.
Praktikus és otthonos megoldások.
Az ingatlan nemcsak szép, hanem magas minőségű műszaki tartalommal is épül: téglaépítésű, 15 cm-es szigeteléssel, korszerű BOSCH kombi kazánnal /padlófűtés/ és háromrétegű műanyag nyílászárókkal, amelyek kiváló hő- és hangszigetelést biztosítanak. A házba klíma is beépítésre kerül.
A hozzá tartozó 774 négyzetméteres kertet úgy alakíthatja ki, ahogy szeretné – legyen az egy veteményes, játszórész, vagy éppen egy hangulatos kerti sütögető.
Ez az otthon ideális választás lehet, ha csendes környezetre, mégis városhoz közeli, modern életstílusra vágyik. Ha úgy érzi szívesen élne itt, kérem keressen, beszéljük át a részleteket!
✅ 90,73 m²-es lakótér + 12 m² terasz
✅ 4 hálószoba, nappali-étkező-konyha egy légtérben
✅ 2 fürdőszoba
✅ közvetlen kertkapcsolat a nappaliból
✅ 774 m² saját kert – ideális családosoknak, vagy kertészkedni vágyóknak
✅ téglaépítésű, 15 cm hőszigeteléssel
✅ 3 rétegű műanyag nyílászárók
✅ BOSCH kondenzációs kazán + padlófűtés
✅ beépített klíma
✅ 2026-os átadás
Az ingatlan modern műszaki tartalommal, energiatakarékos kialakítással készül, kellemes, csendes környezetben.
TOVÁBBI LEHETŐSÉGEK!
Új építésű ikerházak eladók Szombathelyen, az Oladi városrészen:
- több méretben kerülnek megépítésre: 47 nm-től akár 90 nm-ig
- telek méretek: 228 nm-től 774 nm-ig
- nappali+ 2, illetve nappali +3 szobás kivitelezéssel
Ne maradjon le , keressen bizalommal!
Hitelre van szüksége? Az Otthon Centrum az ország egyik legnagyobb és legmegbízhatóbb hitelközvetítőjeként, teljes körű és díjmentes hitel ügyintézéssel, biztosításkötéssel áll rendelkezésére! Kérje személyre szabott ajánlatunkat Kollégáinktól!
Válassza ki az Önnek legmegfelelőbbet.
Szombathelyen új építésű ikerház eladó!
Új építésű ikerház eladó Szombathelyen, az Oladi városrészen.
Egy modern ikerház egyik felét kínálom, amelyet 2026-ban vehet birtokba.
A 90,73 négyzetméteres lakótér minden részlete átgondolt: négy kényelmes hálószoba, egy tágas, világos nappali, amely egy légtérben helyezkedik el a konyha-étkezővel. Innen közvetlenül kiléphet a 12 négyzetméteres teraszra, ahol reggeli kávé, baráti beszélgetések, vagy egy csendes este is jól esik. Az ingatlanban két fürdőszoba kapott helyet.
Praktikus és otthonos megoldások.
Az ingatlan nemcsak szép, hanem magas minőségű műszaki tartalommal is épül: téglaépítésű, 15 cm-es szigeteléssel, korszerű BOSCH kombi kazánnal /padlófűtés/ és háromrétegű műanyag nyílászárókkal, amelyek kiváló hő- és hangszigetelést biztosítanak. A házba klíma is beépítésre kerül.
A hozzá tartozó 774 négyzetméteres kertet úgy alakíthatja ki, ahogy szeretné – legyen az egy veteményes, játszórész, vagy éppen egy hangulatos kerti sütögető.
Ez az otthon ideális választás lehet, ha csendes környezetre, mégis városhoz közeli, modern életstílusra vágyik. Ha úgy érzi szívesen élne itt, kérem keressen, beszéljük át a részleteket!
✅ 90,73 m²-es lakótér + 12 m² terasz
✅ 4 hálószoba, nappali-étkező-konyha egy légtérben
✅ 2 fürdőszoba
✅ közvetlen kertkapcsolat a nappaliból
✅ 774 m² saját kert – ideális családosoknak, vagy kertészkedni vágyóknak
✅ téglaépítésű, 15 cm hőszigeteléssel
✅ 3 rétegű műanyag nyílászárók
✅ BOSCH kondenzációs kazán + padlófűtés
✅ beépített klíma
✅ 2026-os átadás
Az ingatlan modern műszaki tartalommal, energiatakarékos kialakítással készül, kellemes, csendes környezetben.
TOVÁBBI LEHETŐSÉGEK!
Új építésű ikerházak eladók Szombathelyen, az Oladi városrészen:
- több méretben kerülnek megépítésre: 47 nm-től akár 90 nm-ig
- telek méretek: 228 nm-től 774 nm-ig
- nappali+ 2, illetve nappali +3 szobás kivitelezéssel
Ne maradjon le , keressen bizalommal!
Hitelre van szüksége? Az Otthon Centrum az ország egyik legnagyobb és legmegbízhatóbb hitelközvetítőjeként, teljes körű és díjmentes hitel ügyintézéssel, biztosításkötéssel áll rendelkezésére! Kérje személyre szabott ajánlatunkat Kollégáinktól!
Válassza ki az Önnek legmegfelelőbbet.
Regisztrációs szám
P4717-1-04-NA-000
Az ingatlan adatai
Értékesités
eladó
Jogi státusz
új
Jelleg
ház
Építési mód
tégla
Méret
90,7 m²
Bruttó méret
137,6 m²
Telek méret
774 m²
Terasz / erkély mérete
11,5 m²
Kert méret
774 m²
Fűtés
Gáz cirkó
Belmagasság
265 cm
Tájolás
Nyugat
Állapot
Kiváló
Homlokzat állapota
Kiváló
Környék
csendes, zöld
Építés éve
2026
Fürdőszobák száma
2
Társaház kert
igen
Víz
Van
Gáz
Van
Villany
Van
Csatorna
Van
Helyiségek
nappali
17.76 m²
konyha-étkező
13.44 m²
szoba
9.14 m²
szoba
8.96 m²
szoba
8.96 m²
szoba
8.8 m²
fürdőszoba-wc
6.54 m²
fürdőszoba-wc
3.29 m²
közlekedő
5.3 m²
háztartási helyiség
4.3 m²
terasz
11.57 m²
előszoba
5.26 m²

Csejtey Krisztina
Hitelszakértő