Tisza István tértől sétatávolságra zöldövezeti új
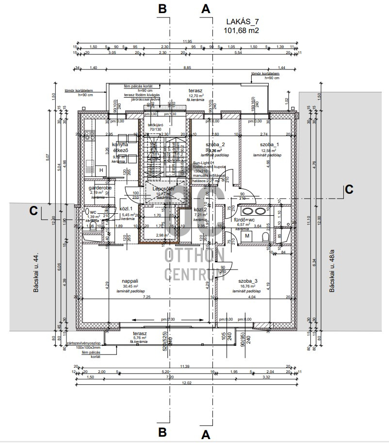
Zugló (Budapest XIV. kerület, Herminamező) zöldövezeti központjában, csodás, ősfás környezetben KIS LAKÁSSZÁMÚ társasházban kínálok eladásra amerikai konyhás nappali + 1-2-3 hálószobás lakásokat magas műszaki tartalommal.
Az épületet csendes, szinte forgalommentes, egyirányú utcában alakítják ki, az egyes lakások erkélye, a hálószobák ablaka a belső kertre néz.
AZ ÉPÜLETRŐL, MŰSZAKI PARAMÉTEREK:
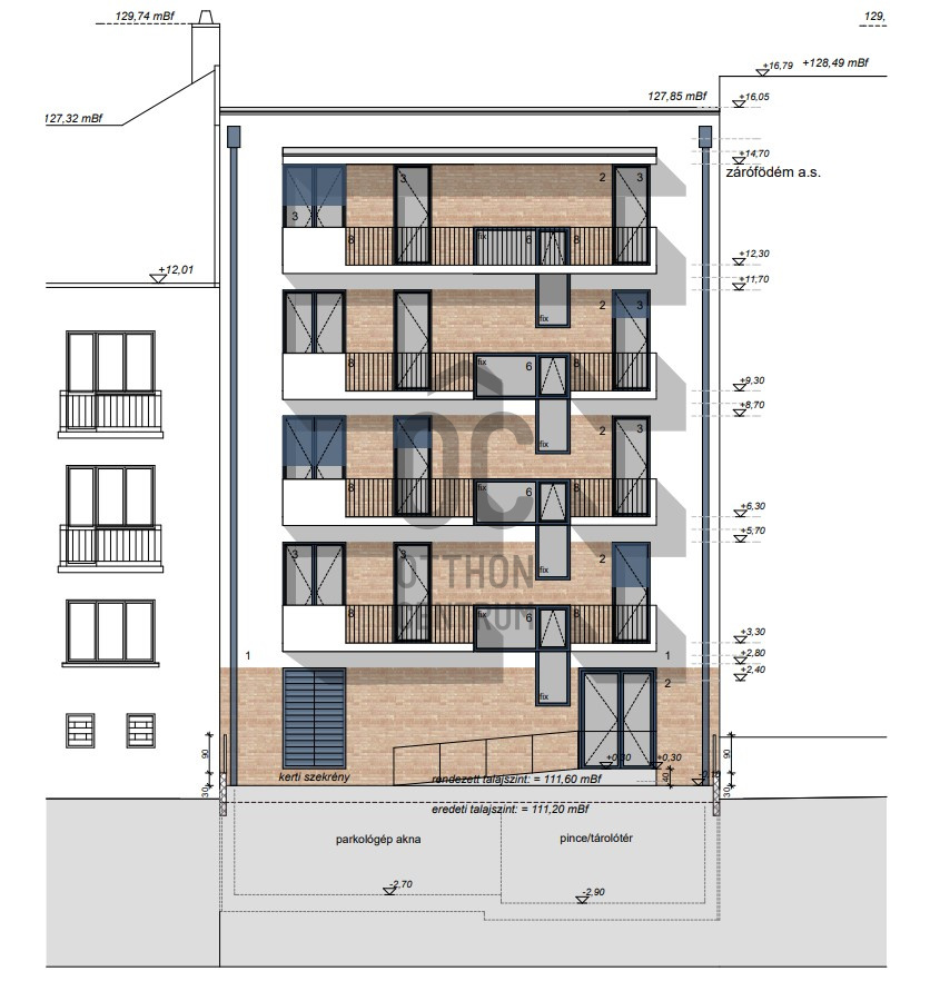
Az ötszintes épület pinceszint + 4 emeletből áll:
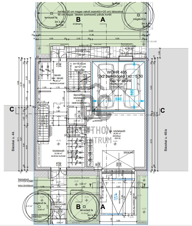
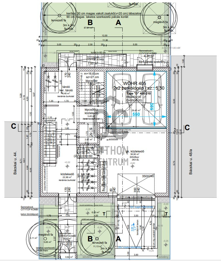
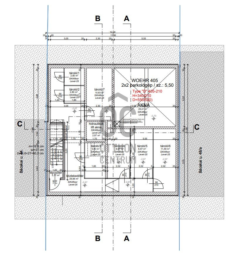
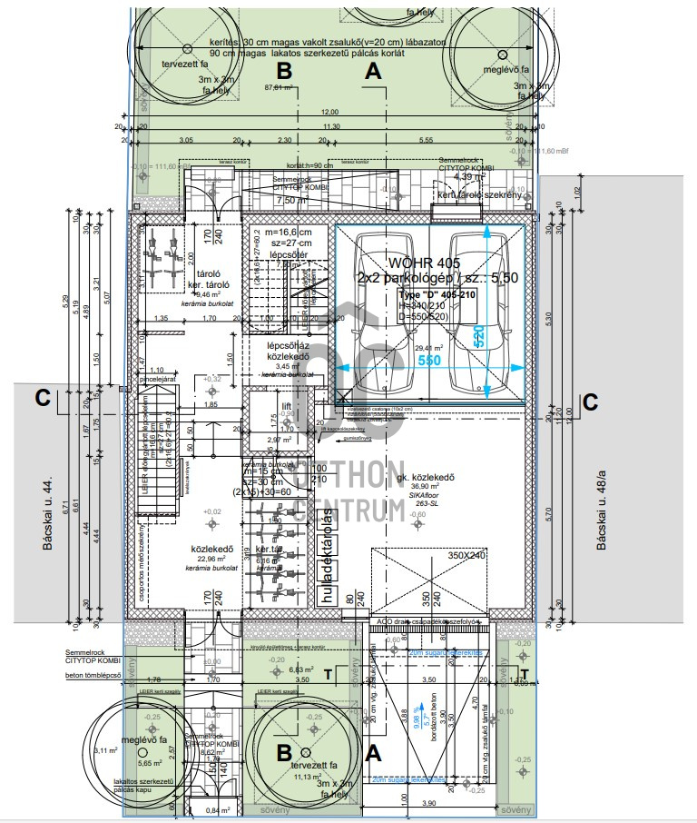
- a pinceszinten 2 állásos, parkológépes teremgarázs beálló, tárolók,
- a földszinten át juthatunk ki a közös kertbe, itt kerékpártárolók és szintén a parkológépes teremgarázsbeálló található,
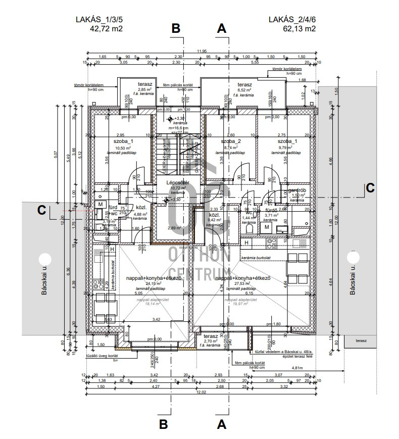
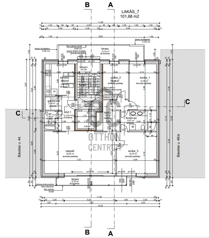
- a zárt lépcsőházas épület lakásai az 1-4. emeleteken helyezkednek el.
- az épület nyílászáróinál csak elektromos csatlakozás kerül kiépítésre, a redőnyök nem részei a műszaki tartalomnak.
- a burkolóanyagok, belső nyílászárók, szaniterek, villanykapcsolók és dugaljak meghatározott összeghatárig szabadon választhatók.
- az épület fűtését és melegvízellátását központi hőszivattyú és melegvíztároló biztosítja:
fűtés: padlófűtés
hűtés: a lakások hűtése nem része a műszaki tartalomnak, igény esetén fan coil vagy egyedi klima kiépítésére van lehetőség.
- egy internet bejövő csatlakozási pont kerül kiépítésre vezeték nélküli rendszerhez lakásokon belül, riasztórendszer nem része a műszaki tartalomnak
- közművek: az épület rendeltetésszerű működéséhez szükséges, méretezett víz, csatorna, villany közmű kerül kiépítésre.
- tereprendezés: az épület előkertje a közlekedési útvonalakon burkolva a zöld területeken füvesítve, a hátsó udvari részen növényzet fogadására alkalmas területelőkészítés készül.
SZERKEZETI EGYSÉGEK SZERINT:
- alapozás: VB lemezalap statikai tervek alapján.
- falszerkezetek: a falak 30 cm vtg. Porotherm N+F falazóblokkból készülnek, a lakások elválasztófalai hanggátló falazat.
- teherhordozó VB szerkezetek: statikai terv alapján készülő monolit vasbeton szerkezetek. Vasbeton pillérek, födémek.
- tetőszerkezet, ácsszerkezet: lapostető:
rétegrend: az épület zárófödémére a tervekben meghatározott víz és hőszigetelő rétegrend kerül megépítésre.
vízelvezetés: az esővíz elvezetés színezett alu. ereszcsatorna.
- hőszigetelés: homlokzati falak 15 cm vastag Dryvit hőszigetelő rendszer.
A zárófödém szigetelése extrudált polisztirol hőszigetelés tervezett vastagségban. A szineek között lépéshang szigetelés készül.
- vízszigetelés: pince szigetelése vízzáró beton szigetelés, a tetőszint szigetelése PVC lemez szigetelés.
- használati víz elleni szigetelés: a vizes helyiségekben a burkolat alatt kenhető Mapei folyékony fólia vízszigetelés készül.
- válaszfalak: az épület válaszfalai 10 cm-es Porotherm, gipszkarton válaszfalak készülnek.
- padlóburkolatok: a tervek alapján készülő hideg- és melegburkolatok.
- falburkolatok: a vizes helyiségekben 2,10 cm magasságban ragasztott burkolat készül,
a konyhákban a falon csak a konyhabútor és a felső szekrény között készül falburkolat,
homlokzat burkolat terv szerint:
- festés: a vakolt falfelületekre fehér színben diszperziós festés kerül kétrétegfestéssel glettelt felületre.
- nyílászáró szerkezetek:
földszint: a külső homlokzati ablakok és erkélyajtók hőhídmentes szárnyszerkezetűek, háromrétegű hőszigetelő üvegezéssel, hőszigetelt redőnyszekrénnyel kerülnek kivitelezésre, elektromos csatlakozási lehetőséggel redőnyök és motor nélkül;
a lakásbejárati ajtó MABISZ előírás szerinti 5 ponton záródó biztonsági bejárati ajtó.
könyöklők: csatorna levezetéssel egyező anyagú és színű bádogkönyöklők.
- beltéri ajtók: utólagosan beépíthető belső nyílászárók, költségkereten belül megrendelő választása alapján.
- GÉPÉSZET:
vízvezeték szerelés: a vízvezetékszerelés öt rétegű nyomó és PVC ejtővezetékkel és tartozékaikkal készülnek;
a szaniterek megrendelő által kerülnek kiválasztásra, az egységárakat meghaladó bekerülés esetén a különbözet kivitelező részére megtérítésre kerül.
fűtést és melegvízellátás: hőszivattyú, a fűtés rendszere padlófűtés lakásonként egy vezérlőegységgel;
melegvíz-ellátás: hőszivattyúhoz csatlakoztatott méretezett űrtartalmú melegvíztároló.
- VILLANYSZERELÉS: a villamos vezetékek szerelése falakon belül elhelyezett védőcsövezéssel kerül kiépítésre, elosztók kiépítésével együtt fogyasztóhelyi vezeték kiállással. Villanyóra fogadó szekrénnyel, villanyóra, méretlen szakasz. A villamos szerelvények felszerelés bekötése része a kivitelezés műszaki tartalmának, a berendezések anyagárát (lámpatestek) a dugaljak és kapcsolók kivitelével a kivitelezési díj nem tartalmazza.
Munkanemek, melyek nem részei a műszaki tartalomnak, egyedi árajánlattal pótmunkában kérhető:
- konyhabútor,
- redőnyök: tokkal elektromos motorral,
- lakás hűtés: fan coil vagy egyedi klíma,
- hűtés fűtés vezérlés bővítés: szobánkénti fűtésvezérlés,
- fürdőszoba: egyedi zuhanyzó kialakítás.
Teremgarázs beálló, külön zárható, önálló száraz tároló külön vásárolható.
A KÖRNYEZETRŐL:
A Tisza István tér közelében található, a Zuglói kormányablak, üzletek, hangulatos kávézó, étterem, pékség, gyógyszertár, Uzsoki Utcai kórház, szakrendelők, bölcsőde, óvoda, iskola rövid sétán belül elérhetők.
Tömegközlekedés szempontjából is ideális, hiszen a 7, 7E, 8E, 108E, 110, 112, 133E, 32, 124, 125, 125B, 277 buszok megállója, a 3-as, 62-62/A villamosok megállója, illetve a 82-es trolimegálló rövid sétatávolságon belül található.
Az épületet csendes, szinte forgalommentes, egyirányú utcában alakítják ki, az egyes lakások erkélye, a hálószobák ablaka a belső kertre néz.
AZ ÉPÜLETRŐL, MŰSZAKI PARAMÉTEREK:
Az ötszintes épület pinceszint + 4 emeletből áll:
- a pinceszinten 2 állásos, parkológépes teremgarázs beálló, tárolók,
- a földszinten át juthatunk ki a közös kertbe, itt kerékpártárolók és szintén a parkológépes teremgarázsbeálló található,
- a zárt lépcsőházas épület lakásai az 1-4. emeleteken helyezkednek el.
- az épület nyílászáróinál csak elektromos csatlakozás kerül kiépítésre, a redőnyök nem részei a műszaki tartalomnak.
- a burkolóanyagok, belső nyílászárók, szaniterek, villanykapcsolók és dugaljak meghatározott összeghatárig szabadon választhatók.
- az épület fűtését és melegvízellátását központi hőszivattyú és melegvíztároló biztosítja:
fűtés: padlófűtés
hűtés: a lakások hűtése nem része a műszaki tartalomnak, igény esetén fan coil vagy egyedi klima kiépítésére van lehetőség.
- egy internet bejövő csatlakozási pont kerül kiépítésre vezeték nélküli rendszerhez lakásokon belül, riasztórendszer nem része a műszaki tartalomnak
- közművek: az épület rendeltetésszerű működéséhez szükséges, méretezett víz, csatorna, villany közmű kerül kiépítésre.
- tereprendezés: az épület előkertje a közlekedési útvonalakon burkolva a zöld területeken füvesítve, a hátsó udvari részen növényzet fogadására alkalmas területelőkészítés készül.
SZERKEZETI EGYSÉGEK SZERINT:
- alapozás: VB lemezalap statikai tervek alapján.
- falszerkezetek: a falak 30 cm vtg. Porotherm N+F falazóblokkból készülnek, a lakások elválasztófalai hanggátló falazat.
- teherhordozó VB szerkezetek: statikai terv alapján készülő monolit vasbeton szerkezetek. Vasbeton pillérek, födémek.
- tetőszerkezet, ácsszerkezet: lapostető:
rétegrend: az épület zárófödémére a tervekben meghatározott víz és hőszigetelő rétegrend kerül megépítésre.
vízelvezetés: az esővíz elvezetés színezett alu. ereszcsatorna.
- hőszigetelés: homlokzati falak 15 cm vastag Dryvit hőszigetelő rendszer.
A zárófödém szigetelése extrudált polisztirol hőszigetelés tervezett vastagségban. A szineek között lépéshang szigetelés készül.
- vízszigetelés: pince szigetelése vízzáró beton szigetelés, a tetőszint szigetelése PVC lemez szigetelés.
- használati víz elleni szigetelés: a vizes helyiségekben a burkolat alatt kenhető Mapei folyékony fólia vízszigetelés készül.
- válaszfalak: az épület válaszfalai 10 cm-es Porotherm, gipszkarton válaszfalak készülnek.
- padlóburkolatok: a tervek alapján készülő hideg- és melegburkolatok.
- falburkolatok: a vizes helyiségekben 2,10 cm magasságban ragasztott burkolat készül,
a konyhákban a falon csak a konyhabútor és a felső szekrény között készül falburkolat,
homlokzat burkolat terv szerint:
- festés: a vakolt falfelületekre fehér színben diszperziós festés kerül kétrétegfestéssel glettelt felületre.
- nyílászáró szerkezetek:
földszint: a külső homlokzati ablakok és erkélyajtók hőhídmentes szárnyszerkezetűek, háromrétegű hőszigetelő üvegezéssel, hőszigetelt redőnyszekrénnyel kerülnek kivitelezésre, elektromos csatlakozási lehetőséggel redőnyök és motor nélkül;
a lakásbejárati ajtó MABISZ előírás szerinti 5 ponton záródó biztonsági bejárati ajtó.
könyöklők: csatorna levezetéssel egyező anyagú és színű bádogkönyöklők.
- beltéri ajtók: utólagosan beépíthető belső nyílászárók, költségkereten belül megrendelő választása alapján.
- GÉPÉSZET:
vízvezeték szerelés: a vízvezetékszerelés öt rétegű nyomó és PVC ejtővezetékkel és tartozékaikkal készülnek;
a szaniterek megrendelő által kerülnek kiválasztásra, az egységárakat meghaladó bekerülés esetén a különbözet kivitelező részére megtérítésre kerül.
fűtést és melegvízellátás: hőszivattyú, a fűtés rendszere padlófűtés lakásonként egy vezérlőegységgel;
melegvíz-ellátás: hőszivattyúhoz csatlakoztatott méretezett űrtartalmú melegvíztároló.
- VILLANYSZERELÉS: a villamos vezetékek szerelése falakon belül elhelyezett védőcsövezéssel kerül kiépítésre, elosztók kiépítésével együtt fogyasztóhelyi vezeték kiállással. Villanyóra fogadó szekrénnyel, villanyóra, méretlen szakasz. A villamos szerelvények felszerelés bekötése része a kivitelezés műszaki tartalmának, a berendezések anyagárát (lámpatestek) a dugaljak és kapcsolók kivitelével a kivitelezési díj nem tartalmazza.
Munkanemek, melyek nem részei a műszaki tartalomnak, egyedi árajánlattal pótmunkában kérhető:
- konyhabútor,
- redőnyök: tokkal elektromos motorral,
- lakás hűtés: fan coil vagy egyedi klíma,
- hűtés fűtés vezérlés bővítés: szobánkénti fűtésvezérlés,
- fürdőszoba: egyedi zuhanyzó kialakítás.
Teremgarázs beálló, külön zárható, önálló száraz tároló külön vásárolható.
A KÖRNYEZETRŐL:
A Tisza István tér közelében található, a Zuglói kormányablak, üzletek, hangulatos kávézó, étterem, pékség, gyógyszertár, Uzsoki Utcai kórház, szakrendelők, bölcsőde, óvoda, iskola rövid sétán belül elérhetők.
Tömegközlekedés szempontjából is ideális, hiszen a 7, 7E, 8E, 108E, 110, 112, 133E, 32, 124, 125, 125B, 277 buszok megállója, a 3-as, 62-62/A villamosok megállója, illetve a 82-es trolimegálló rövid sétatávolságon belül található.