79 950 000 Ft
205 000 €
- 42,7m²
- 2 szoba
- 2. emelet
Tisza István tértől sétatávolságra zöldövezeti új építésű lakás eladó
Herminamező (Budapest XIV. kerület, Zugló) zöldövezeti központjában, csodás, ősfás környezetben KIS LAKÁSSZÁMÚ társasházban kínálok eladásra egy amerikai konyhás nappali + hálószobás ERKÉLYES lakást most épülő társasházban, magas műszaki tartalommal.
Az épületet csendes, szinte forgalommentes, egyirányú utcában alakítják ki, a lakás erkélye, hálószobájának ablaka a belső kertre néz.
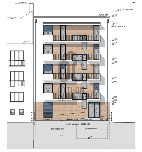
Az ötszintes épület pinceszint + 4 emeletből áll:
- a pinceszinten 2 állásos, parkológépes teremgarázs beálló, tárolók,
- a földszinten át juthatunk ki a közös kertbe, itt kerékpártárolók és szintén a parkológépes teremgarázsbeálló található,
- a zárt lépcsőházas épület lakásai az 1-4. emeleteken helyezkednek el.
A burkolóanyagok, belső nyílászárók, szaniterek, villanykapcsolók és dugaljak szabadon választhatók bizonyos összeghatárig, magasabb termékár esetén a különbözetet megrendelő megtéríti kivitelezőnek.
A fűtést és melegvízellátást központi hőszivattyú és melegvíztároló biztosítja:
- fűtés: padlófűtés
- hűtés: a lakások hűtése nem része a műszaki tartalomnak, igény esetén fan coil vagy egyedi klíma kiépítésére van lehetőség.
Teremgarázs beálló, külön zárható, önálló száraz tároló külön vásárolható.
A KÖRNYEZETRŐL:
A Tisza István tér közelében található, a Zuglói kormányablak, üzletek, hangulatos kávézó, étterem, pékség, gyógyszertár, Uzsoki Utcai kórház, szakrendelők, bölcsőde, óvoda, iskola rövid sétán belül elérhetők.
Tömegközlekedés szempontjából is ideális, hiszen a 7, 7E, 8E, 108E, 110, 112, 133E, 32, 124, 125, 125B, 277 buszok megállója, a 3-as, 62-62/A villamosok megállója, illetve a 82-es trolimegálló rövid sétatávolságon belül található.
Bővebb információért és a megtekintéssel kapcsolatban hívjon bizalommal!
Egyedi igényekre szabott lakáshitelekkel állunk rendelkezésére.
Bankfüggetlen Hitel Centrumunk az országban elérhető összes bank és hitelintézet ajánlatát versenyezteti az Ön számára díjmentesen.
Munkatársaink nagy szakmai tapasztalattal várják Önt az előre egyeztetett időpontban akár a normál munkaidő után is.
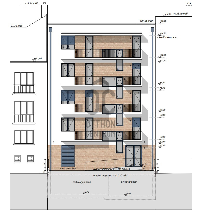
Az épületet csendes, szinte forgalommentes, egyirányú utcában alakítják ki, a lakás erkélye, hálószobájának ablaka a belső kertre néz.
Az ötszintes épület pinceszint + 4 emeletből áll:
- a pinceszinten 2 állásos, parkológépes teremgarázs beálló, tárolók,
- a földszinten át juthatunk ki a közös kertbe, itt kerékpártárolók és szintén a parkológépes teremgarázsbeálló található,
- a zárt lépcsőházas épület lakásai az 1-4. emeleteken helyezkednek el.
A burkolóanyagok, belső nyílászárók, szaniterek, villanykapcsolók és dugaljak szabadon választhatók bizonyos összeghatárig, magasabb termékár esetén a különbözetet megrendelő megtéríti kivitelezőnek.
A fűtést és melegvízellátást központi hőszivattyú és melegvíztároló biztosítja:
- fűtés: padlófűtés
- hűtés: a lakások hűtése nem része a műszaki tartalomnak, igény esetén fan coil vagy egyedi klíma kiépítésére van lehetőség.
Teremgarázs beálló, külön zárható, önálló száraz tároló külön vásárolható.
A KÖRNYEZETRŐL:
A Tisza István tér közelében található, a Zuglói kormányablak, üzletek, hangulatos kávézó, étterem, pékség, gyógyszertár, Uzsoki Utcai kórház, szakrendelők, bölcsőde, óvoda, iskola rövid sétán belül elérhetők.
Tömegközlekedés szempontjából is ideális, hiszen a 7, 7E, 8E, 108E, 110, 112, 133E, 32, 124, 125, 125B, 277 buszok megállója, a 3-as, 62-62/A villamosok megállója, illetve a 82-es trolimegálló rövid sétatávolságon belül található.
Bővebb információért és a megtekintéssel kapcsolatban hívjon bizalommal!
Egyedi igényekre szabott lakáshitelekkel állunk rendelkezésére.
Bankfüggetlen Hitel Centrumunk az országban elérhető összes bank és hitelintézet ajánlatát versenyezteti az Ön számára díjmentesen.
Munkatársaink nagy szakmai tapasztalattal várják Önt az előre egyeztetett időpontban akár a normál munkaidő után is.
Regisztrációs szám
P4563-1-01-02-001
Az ingatlan adatai
Értékesités
eladó
Jogi státusz
új
Jelleg
lakás
Építési mód
tégla
Méret
42,7 m²
Bruttó méret
71,3 m²
Terasz / erkély mérete
2,8 m²
Fűtés
hőszivattyú
Belmagasság
270 cm
Tájolás
Dél
Lépcsőház típusa
zárt lépcsőház
Állapot
Kiváló
Homlokzat állapota
Kiváló
Lépcsőház állapota
Kiváló
Építés éve
2026
Fürdőszobák száma
1
Fekvés
utcai
Víz
Van
Villany
Van
Csatorna
Van
Lift
van
Helyiségek
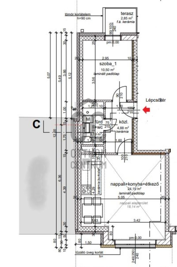
nappali-konyha
24.15 m²
erkély
2.85 m²
közlekedő
4.88 m²
hálószoba
10.55 m²
fürdőszoba
3.19 m²