For rent apartment, H515220
Budapest VII. kerület, Belső Erzsébetváros, Kertész utca

280,000 Ft

730 €

  • 75m²
  • 2 Rooms
  • 3rd floor

Fedezze fel Budapest szívében ezt a tágas, 2 szobás lakást - az ideális otthona várja!

VII. kerületben, a Kertész utcában, liftes társasház 3. emeletén kiadásra kínálok egy 75 nm-es, 2 szobás, cirkófűtéses, bútorozatlan, udvari nézetű lakást.
A lakás jó elosztású, csendes, rendezett társasházban található.
Közös költség: 40 000 Ft/hó, amely tartalmazza a korlátlan vízfogyasztást, a felújítási alapot, a lift üzemeltetését és a szemétszállítást.
A lakás hosszú távra kiadó.
További információért kérem, keressen bizalommal.

Egyedi igényekre szabott lakáshitelekkel állunk rendelkezésére.
Bankfüggetlen Hitelcentrumunk az országban elérhető összes bank és hitelintézet ajánlatát versenyezteti az Ön számára díjmentesen.
Munkatársaink nagy szakmai tapasztalattal, teljes körű CSOK PLUSZ és OTTHON START PROGRAM ügyintézéssel várják Önt előre egyeztetett időpontban akár a normál munkaidő után is.

Registration Number

H515220

Property Details

Sales
for rent
Legal Status
used
Character
apartment
Construction Method
brick
Net Size
75 m²
Gross Size
75 m²
Heating
Gas circulator
Ceiling Height
400 cm
Number of Levels Within the Property
4
Orientation
South-West
Staircase Type
enclosed staircase
Condition
Good
Condition of Facade
Average
Condition of Staircase
Average
Year of Construction
1890
Number of Bathrooms
1
Position
courtyard-facing
Common Costs
40000
Water
Available
Gas
Available
Electricity
Available
Sewer
Available
Elevator
available

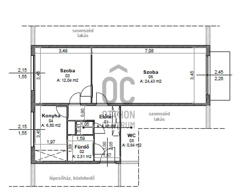
Rooms

bedroom
18 m²
living room
25 m²
bathroom
6 m²
toilet
1 m²
kitchen
12 m²
storage
4 m²
entryway
8 m²

From Our Office Listings - VII. kerület - Kertész utca

for sale apartment

Index image
20

for sale apartment

Index image
21

for sale apartment

Index image
20

for sale panel apartment

Index image
data_sheet.details.realestate.section.main.otthonstart_flag.label
23

for sale apartment

Index image
15

for sale apartment

Index image
data_sheet.details.realestate.section.main.otthonstart_flag.label
19

for sale apartment

Index image
11

for sale apartment

Index image
23

for sale apartment

Index image
8

for sale apartment

Index image
11