For sale new construction apartment, U0049011
Budapest XV. kerület, Pestújhely

147,500,000 Ft

383,000 €

  • 142m²
  • 6 Rooms
  • 1st floor
Exclusive Contract

**Rare opportunity in Pestújhely – Newly built apartment at a competitive price per square meter!**

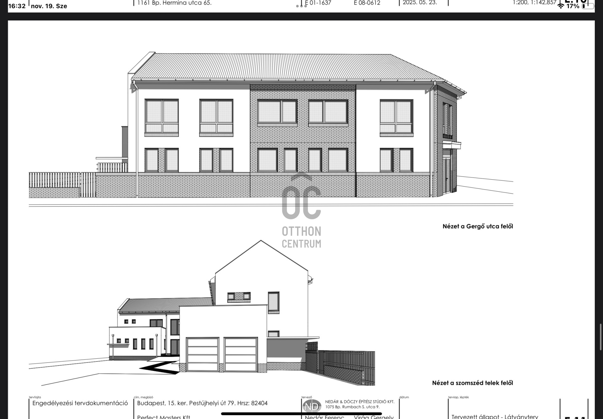
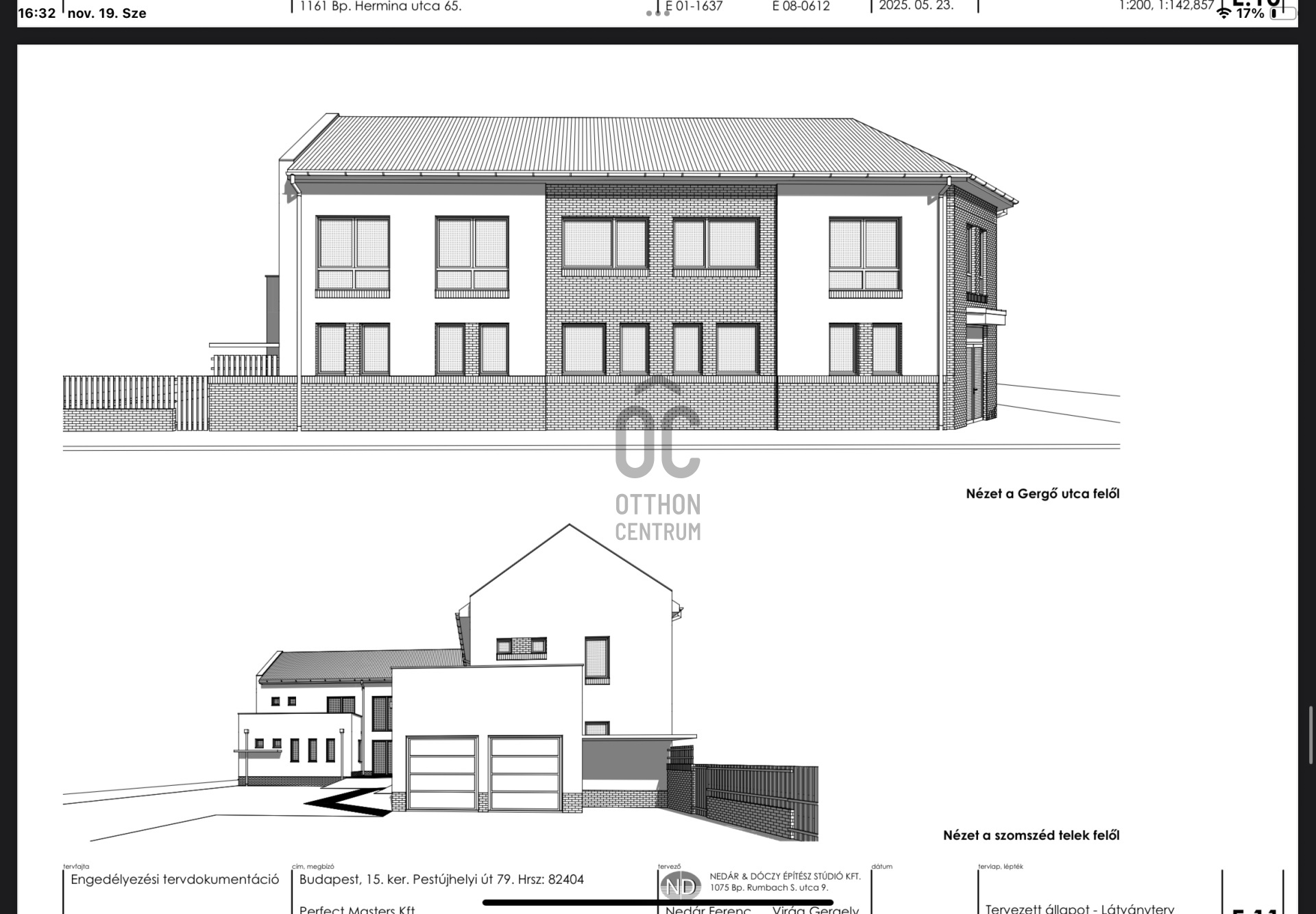
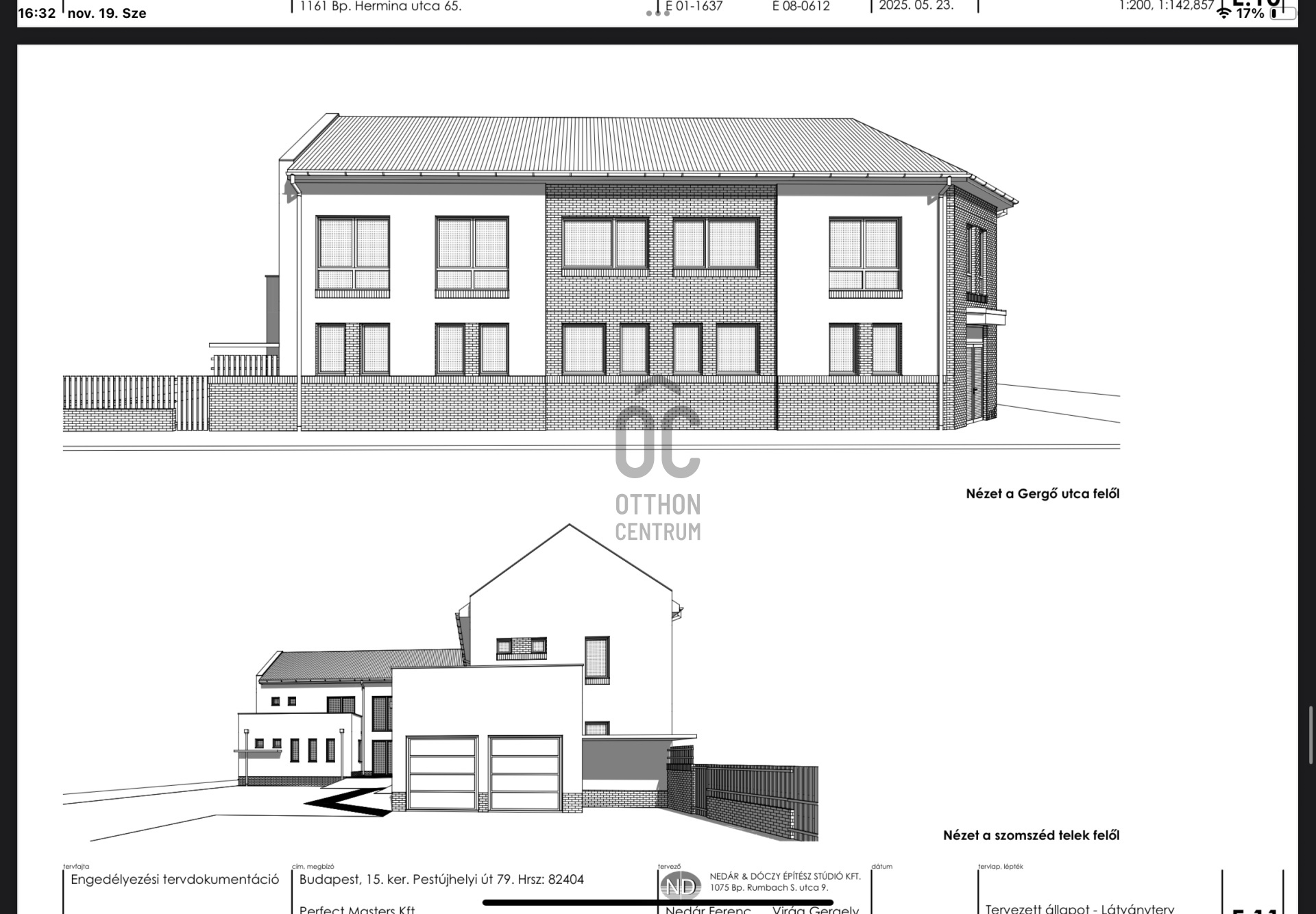
Here is the translated text in English: Available now! For sale in Pestújhely is a 142 m², living room + 5 room, newly built, two-story apartment on the first floor with a large 16.91 m² balcony, in a building with only 4 apartments! Located in one of the most desirable areas of the XV district, the property features bright, elegant, modern interiors and an excellent layout. Layout – Thoughtful, family-friendly design Lower level (88.5 m²): Spacious living room with American kitchen 3 separately accessible rooms Bathroom Toilet with washbasin 16.91 m² balcony with a beautiful suburban panorama Upper level: 2 separately accessible rooms Bathroom with toilet The apartment is an ideal choice for larger families looking for a quality, long-term home. ✨ Premium technical content – without compromises Modern engineering: Heat pump floor and ceiling heating Ceiling cooling + fan-coil system Ariston smart hot water system AA–B energy classification → low utility costs, maximum comfort Quality building materials: Triple-glazed VEKA windows 12 cm Dryvit facade insulation + 25 cm attic insulation Silka soundproof walls → excellent sound insulation Modern, elegant tiles and interior doors Clean, modern architectural style The property is free of encumbrances and newly built. 3% financing option available. The buyer can flexibly decide on tiles, sanitary ware, and painting. Available for possession by the end of 2026. Excellent location – everything at hand School, kindergarten, shops, medical office – just a few minutes' walk Quiet, organized, safe street Excellent public transport → quick access to the city center An ideal suburban atmosphere and a central location are a rare combination. Additional options The apartment includes – and must be purchased: Closed garage: 8 million HUF or Parking space: 4 million HUF Own, separate, lockable storage: 4 million HUF This apartment is not just a modern, comfortable home, but also a high-technical content, value-retaining investment in the best part of Pestújhely. For inquiries or to arrange a viewing, I look forward to your call! Krasznai Izabella – Home Advisor

Registration Number

U0049011

Property Details

Sales
for sale
Legal Status
new
Character
apartment
Construction Method
brick
Net Size
142 m²
Gross Size
160 m²
Size of Terrace / Balcony
16.9 m²
Heating
heat pump
Ceiling Height
260 cm
Number of Levels Within the Property
2
Orientation
South-West
Staircase Type
enclosed staircase
Condition
Excellent
Condition of Facade
Excellent
Condition of Staircase
Excellent
Neighborhood
quiet, good transport, green
Year of Construction
2026
Number of Bathrooms
2
Position
street-facing
Garage
Mandatory to buy
Water
Available
Electricity
Available
Sewer
Available
Connected to Garden
yes
Storage
Mandatory to buy

Rooms

entryway
228 m²
toilet-washbasin
3.94 m²
room
11.35 m²
open-plan kitchen and living room
33.09 m²
corridor
8.17 m²
room
11.51 m²
room
12.33 m²
bathroom-toilet
5.64 m²
balcony
16.91 m²
garage
13 m²
storage
4 m²
Zaracsi Szilvia
Zaracsi Szilvia

Credit Expert

From Our Office Listings - XVI. kerület - Csömöri út

for sale semi-detached house

Index image
data_sheet.details.realestate.section.main.otthonstart_flag.label
20

for sale apartment

Index image
25

for sale new construction apartment

Index image
8

for sale new construction apartment

Index image
8