330,000,000 Ft
871,000 €
- 120m²
- 4 Rooms
- 2nd floor
Luxury Waterfront Apartment for Sale in Pelso Bay – Directly on the Shores of Lake Balaton
If you’ve always dreamed of owning your own Balaton home, where the sunset reflects off the water straight onto your terrace, this property is for you.
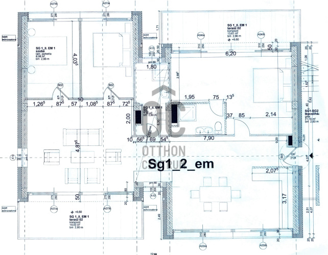
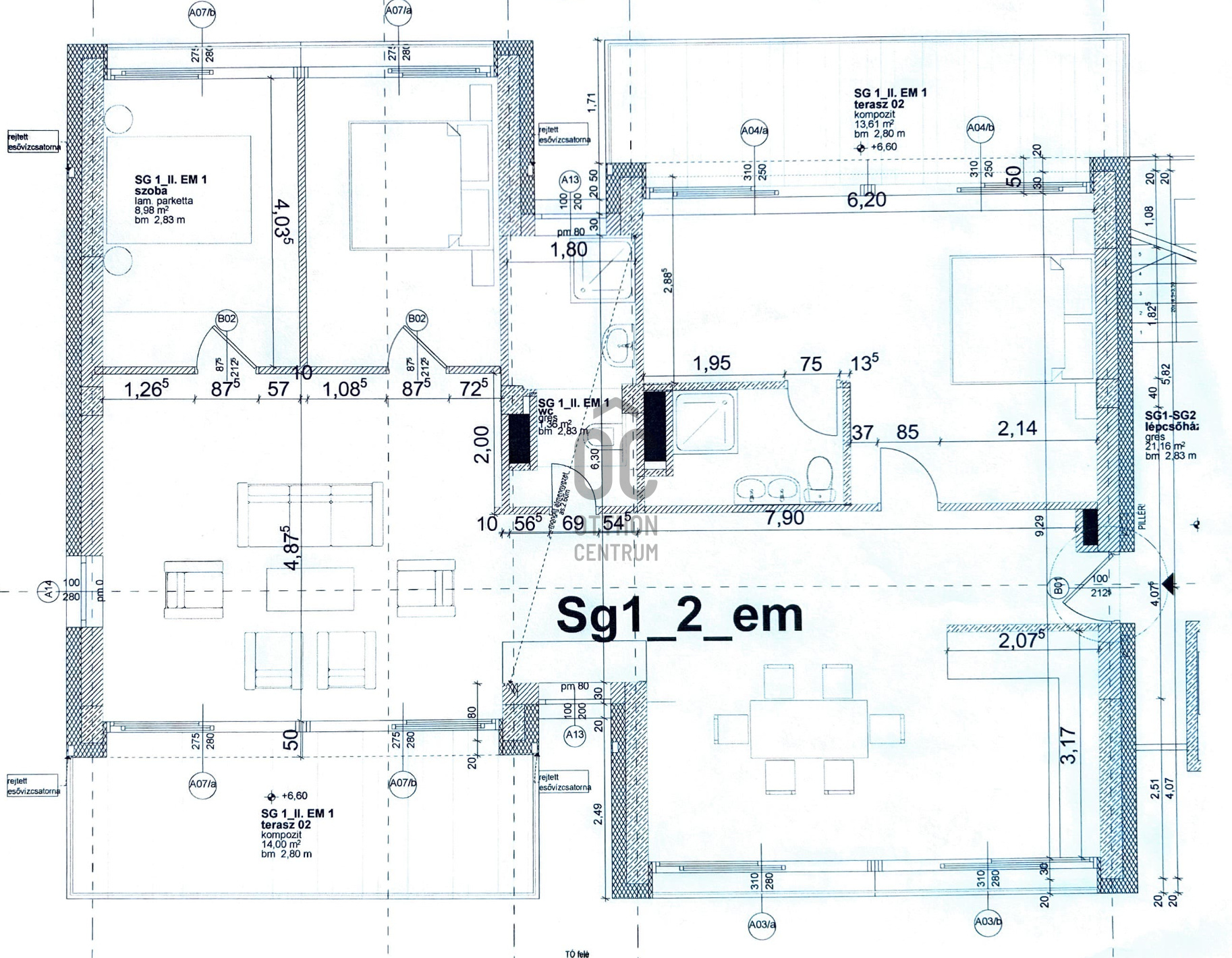
For sale: a 120 m², living room + 3 bedrooms + 2 bathrooms apartment in the exclusive Pelso Bay residential complex in Alsóörs, with direct access to Lake Balaton.
The apartment is currently in shell and core condition, giving the new owner complete freedom to design and finish the interiors to personal taste – the perfect opportunity to create a unique, custom-made Balaton home.
Main features:
•120 m² floor area: living room + 3 bedrooms + 2 bathrooms
•Shell and core condition – finish it to your own style
•Spacious, sunlit rooms with large glass surfaces
•Balcony / terrace facing Lake Balaton
•Large private storage room
•3 dedicated parking spaces in a secure, closed area
•Premium-quality building with modern architecture and energy-efficient solutions
•Gated, secure community with private beach access and landscaped green areas
Pelso Bay amenities:
•Private beach and marina / yacht club
•Tennis court, basketball court, and various sports facilities
•Inner lake, sun terrace, wellness area, and tranquil gardens
•Well-maintained communal spaces and 24-hour security service
Why this property is special
Pelso Bay is more than a residential complex – it’s a lifestyle.
With its private beach, sports facilities, breathtaking lake views, and peaceful surroundings, this development offers true harmony and relaxation.
This apartment is a rare opportunity: still in shell and core condition, so you can personally choose every detail, from flooring to kitchen design.
Perfect for:
•Those seeking a premium holiday home on Lake Balaton
•Investors looking for a high-value property in a top location
•Or anyone wishing to enjoy year-round lakeside living
Your dream home on the shore of Lake Balaton – designed by you.
At Pelso Bay, every day feels like a little holiday.
For sale: a 120 m², living room + 3 bedrooms + 2 bathrooms apartment in the exclusive Pelso Bay residential complex in Alsóörs, with direct access to Lake Balaton.
The apartment is currently in shell and core condition, giving the new owner complete freedom to design and finish the interiors to personal taste – the perfect opportunity to create a unique, custom-made Balaton home.
Main features:
•120 m² floor area: living room + 3 bedrooms + 2 bathrooms
•Shell and core condition – finish it to your own style
•Spacious, sunlit rooms with large glass surfaces
•Balcony / terrace facing Lake Balaton
•Large private storage room
•3 dedicated parking spaces in a secure, closed area
•Premium-quality building with modern architecture and energy-efficient solutions
•Gated, secure community with private beach access and landscaped green areas
Pelso Bay amenities:
•Private beach and marina / yacht club
•Tennis court, basketball court, and various sports facilities
•Inner lake, sun terrace, wellness area, and tranquil gardens
•Well-maintained communal spaces and 24-hour security service
Why this property is special
Pelso Bay is more than a residential complex – it’s a lifestyle.
With its private beach, sports facilities, breathtaking lake views, and peaceful surroundings, this development offers true harmony and relaxation.
This apartment is a rare opportunity: still in shell and core condition, so you can personally choose every detail, from flooring to kitchen design.
Perfect for:
•Those seeking a premium holiday home on Lake Balaton
•Investors looking for a high-value property in a top location
•Or anyone wishing to enjoy year-round lakeside living
Your dream home on the shore of Lake Balaton – designed by you.
At Pelso Bay, every day feels like a little holiday.
Registration Number
U0048874
Property Details
Sales
for sale
Legal Status
new
Character
apartment
Construction Method
brick
Net Size
120 m²
Gross Size
120 m²
Heating
heat pump
Ceiling Height
280 cm
Orientation
South
View
city view, river or lake view, Green view
Staircase Type
enclosed staircase
Condition
Excellent
Condition of Facade
Excellent
Condition of Staircase
Excellent
Neighborhood
quiet
Year of Construction
2025
Number of Bathrooms
2
Position
garden-facing
Water
Available
Electricity
Available
Sewer
Available
Elevator
available
Storage
Independent
Distance to Waterfront
waterfront
Rooms
open-plan kitchen and living room
30 m²
living room
26 m²
bedroom
11 m²
bedroom
11.5 m²
bedroom
18 m²
bathroom-toilet
5.5 m²
bathroom-toilet
4 m²
terrace
14 m²
terrace
14 m²
Pfeffer Kinga
Credit Expert