159,000,000 Ft
421,000 €
- 123m²
- 4 Rooms
Költséghatékony családi ház Siófok Foki hegy
Első tulajdonosát keresi Siófok Fokihegyen családi házas övezetben egy 2 szintes netto 123 nm es új családi ház.
A házhoz 386 nm telekrész tartozik.
Az ingatlan megtervezésekor a beruházó nagy hangsúlyt fektetett az élhető tágas terekre, a fényviszonyok maximális kihasználására.
A kivitelezés során a legkorszerűbb építőanyagok kerülnek felhasználásra, ami a legmagasabb elvárásoknak is megfelel.
A ház fűtéséről, hűtéséről és melegvíz ellátásáról két db 8 kW névleges teljesítményű Stiebel levegő-víz hőszivattyú gondoskodik, a hőleadás padlófűtéssel és a közös használatú helyiségekben Split hűtő-fűtő klímával történik.
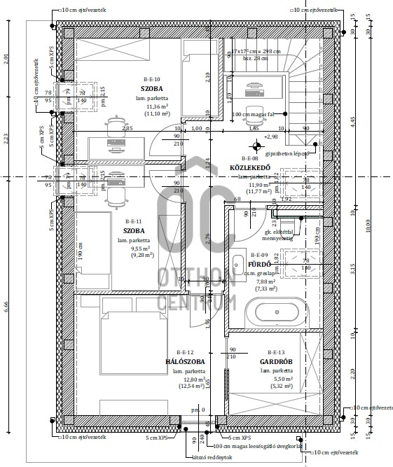
Az ingatlan beosztása:
földszint:
- előtér
- nyugati tájolású hangulatos nappali 21 nm
- tágas konyha étkező 22,4 nm
- kamra
- háztartási helyiség, gépészeti helyiség
- fürdőszoba
- 17,5 nm terasz
emelet:
- 3 db hálószoba
- 1 db fürdőszoba
- közlekedő
- gardrób
Az ingatlan főbb jellemzői:
- minőségi anyagfelhasználás
- Loxon okos otthon, mely távolról vezényli a ház teljes működését
- elektromos autótöltési lehetőség
- elektromos kapu
- automata öntözőrendszer
- 3 rétegű 7 kamrás üvegezés RAL beépítési móddal
- Velux tetőablakok napelemes vezérléssel, redőnnyel szerelve
- emeletenként wifi erősítőpontok
- helyiségenként TV -internet kiállás
- 3x 25 A
- 30 cm vastag falazat + 15 cm grafitos hőszigetelés
- gránit párkányok
- antracit színű Terrán betoncserép
- mészkőburkolatok a homlokzaton
- beosztásának köszönhetően körbenapozott tágas terek
- jól átgondolt tervezés
- választható burkolatok 8 000 ft/nm ig
- napelemes előkészítés
- riasztó
- elektromos redőny, szúnyogháló
- 2 db pergolás gépkocsibeálló
- Április 30 ig szerződő ügyfeleink számára AJÁNDÉK KONYHABÚTOR 3 Millió forint értékben
Amennyiben saját maga és a családja számára egy élhető, színvonalas és alacsony fenntartási költségekkel bíró állandó otthont keres, itt megtalálja.
Az ingatlan 500 méteres körzetében iskola, óvoda, bevásárlási lehetőségek, kórház, gyógyszertár megtalálható.
A Balatonpart 10 perces sétával elérhető.
Az ingatlan előre egyeztetett időpontban a hét bármely napján megtekinthető
A házhoz 386 nm telekrész tartozik.
Az ingatlan megtervezésekor a beruházó nagy hangsúlyt fektetett az élhető tágas terekre, a fényviszonyok maximális kihasználására.
A kivitelezés során a legkorszerűbb építőanyagok kerülnek felhasználásra, ami a legmagasabb elvárásoknak is megfelel.
A ház fűtéséről, hűtéséről és melegvíz ellátásáról két db 8 kW névleges teljesítményű Stiebel levegő-víz hőszivattyú gondoskodik, a hőleadás padlófűtéssel és a közös használatú helyiségekben Split hűtő-fűtő klímával történik.
Az ingatlan beosztása:
földszint:
- előtér
- nyugati tájolású hangulatos nappali 21 nm
- tágas konyha étkező 22,4 nm
- kamra
- háztartási helyiség, gépészeti helyiség
- fürdőszoba
- 17,5 nm terasz
emelet:
- 3 db hálószoba
- 1 db fürdőszoba
- közlekedő
- gardrób
Az ingatlan főbb jellemzői:
- minőségi anyagfelhasználás
- Loxon okos otthon, mely távolról vezényli a ház teljes működését
- elektromos autótöltési lehetőség
- elektromos kapu
- automata öntözőrendszer
- 3 rétegű 7 kamrás üvegezés RAL beépítési móddal
- Velux tetőablakok napelemes vezérléssel, redőnnyel szerelve
- emeletenként wifi erősítőpontok
- helyiségenként TV -internet kiállás
- 3x 25 A
- 30 cm vastag falazat + 15 cm grafitos hőszigetelés
- gránit párkányok
- antracit színű Terrán betoncserép
- mészkőburkolatok a homlokzaton
- beosztásának köszönhetően körbenapozott tágas terek
- jól átgondolt tervezés
- választható burkolatok 8 000 ft/nm ig
- napelemes előkészítés
- riasztó
- elektromos redőny, szúnyogháló
- 2 db pergolás gépkocsibeálló
- Április 30 ig szerződő ügyfeleink számára AJÁNDÉK KONYHABÚTOR 3 Millió forint értékben
Amennyiben saját maga és a családja számára egy élhető, színvonalas és alacsony fenntartási költségekkel bíró állandó otthont keres, itt megtalálja.
Az ingatlan 500 méteres körzetében iskola, óvoda, bevásárlási lehetőségek, kórház, gyógyszertár megtalálható.
A Balatonpart 10 perces sétával elérhető.
Az ingatlan előre egyeztetett időpontban a hét bármely napján megtekinthető
Registration Number
U0046159
Property Details
Sales
for sale
Legal Status
new
Character
house
Construction Method
brick
Net Size
123 m²
Gross Size
131 m²
Plot Size
386 m²
Heating
renewable
Ceiling Height
270 cm
Number of Levels Within the Property
1
Orientation
North-West
Condition
Excellent
Condition of Facade
Excellent
Neighborhood
quiet, green
Year of Construction
2024
Number of Bathrooms
2
Water
Available
Gas
On the street
Electricity
Available
Sewer
Available
Rooms
entryway
4.63 m²
open-plan kitchen and dining room
22.4 m²
living room
20.8 m²
bathroom
5.25 m²
utility room
3.38 m²
pantry
3.13 m²
bedroom
12.8 m²
bedroom
9.55 m²
bedroom
11.36 m²
bathroom
7.9 m²
wardrobe
5.5 m²
staircase
16.7 m²
terrace
17.5 m²