248,000,000 Ft
638,000 €
- 3,320m²


















ÜRÖMI ÉPÍTÉSI TELEK 2 X 2 LAKÁSOS VÁROSI PANORÁMÁS TÁRSASHÁZ TELJES TERVDOKUMENTÁCIÓJÁVAL
ÜRÖMI ÉPÍTÉSI TELEK 2 X 2 LAKÁSOS VÁROSI PANORÁMÁS TÁRSASHÁZ TELJES TERVDOKUMENTÁCIÓJÁVAL
ÜRÖM LEGÉRTÉKESEBB RÉSZÉN, NAGYÉRTÉKŰ LUXUSINGATLANOK KÖZVETLEN KÖRNYEZETÉBEN kínálunk eladásra, egy 3320 m2-es (923 négyszögöl), JÓ BEFOGLALÓ MÉRETEKKEL RENDELKEZŐ, 30%-os BEÉPÍTHETŐSÉGŰ ÉPÍTÉSI TELKET, 2 X 2 LAKÁSOS VÁROSI PANORÁMÁS (többek között a GELLÉRT-HEGY is JÓL LÁTHATÓ) TÁRSASHÁZ TELJES TERVDOKUMENTÁCIÓJÁVAL.
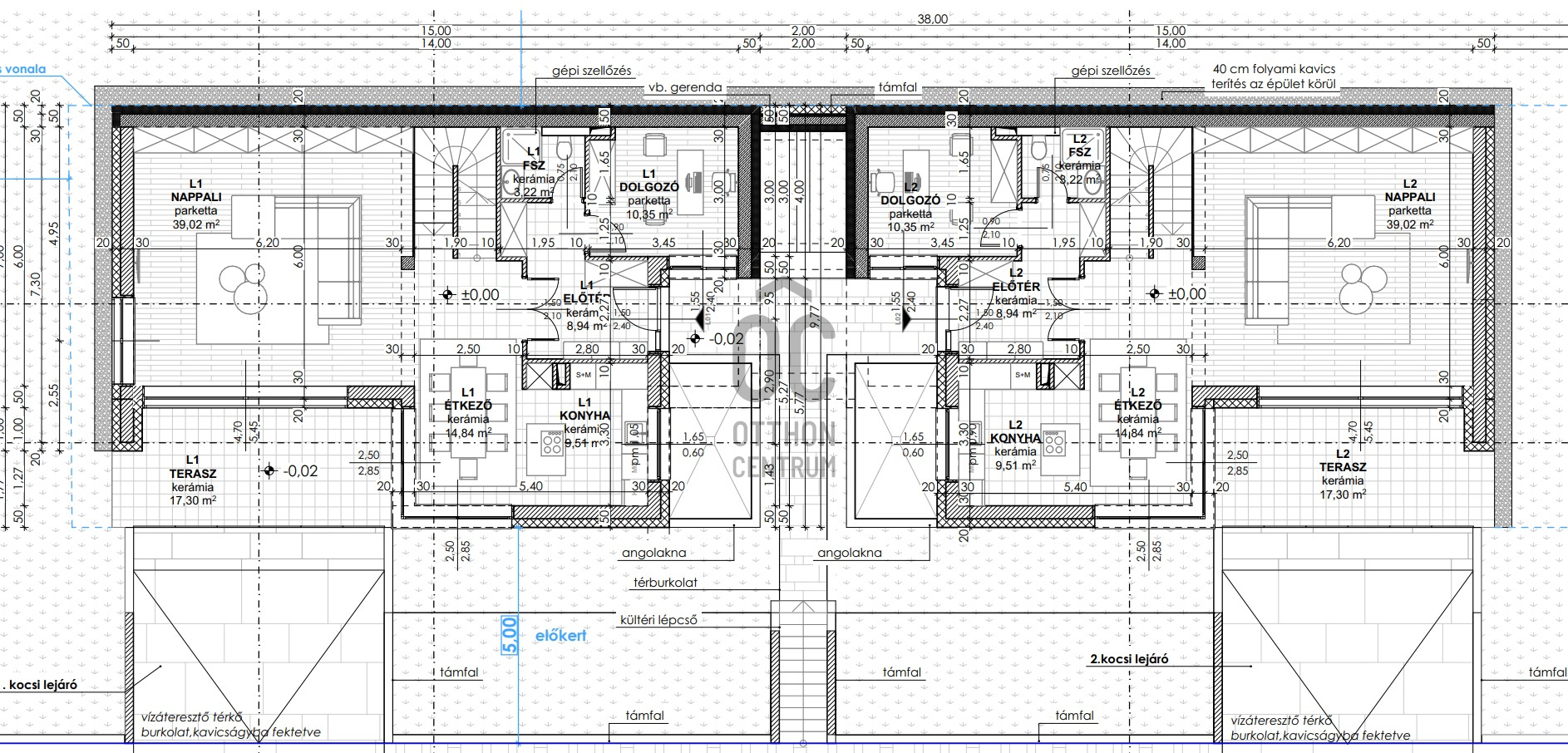
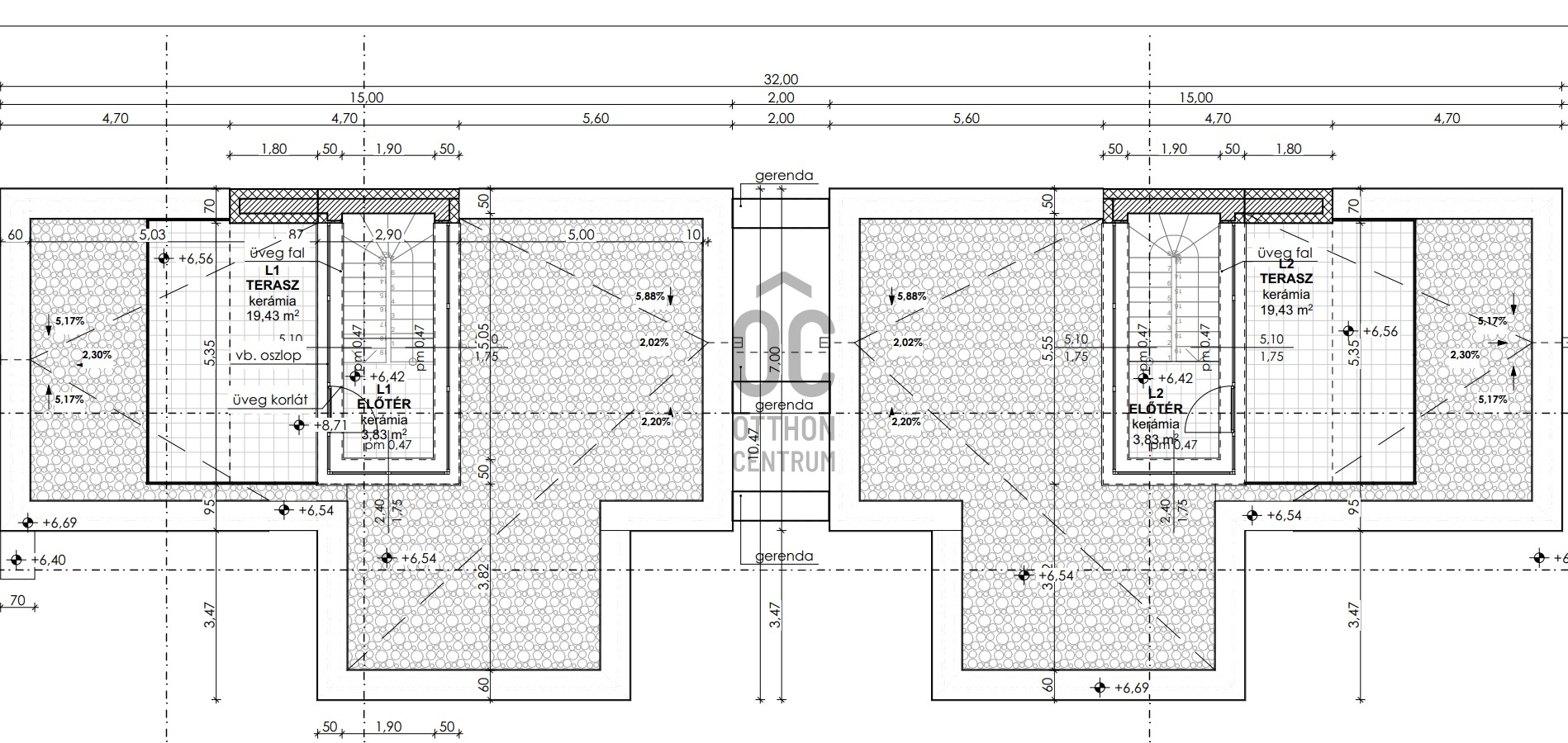
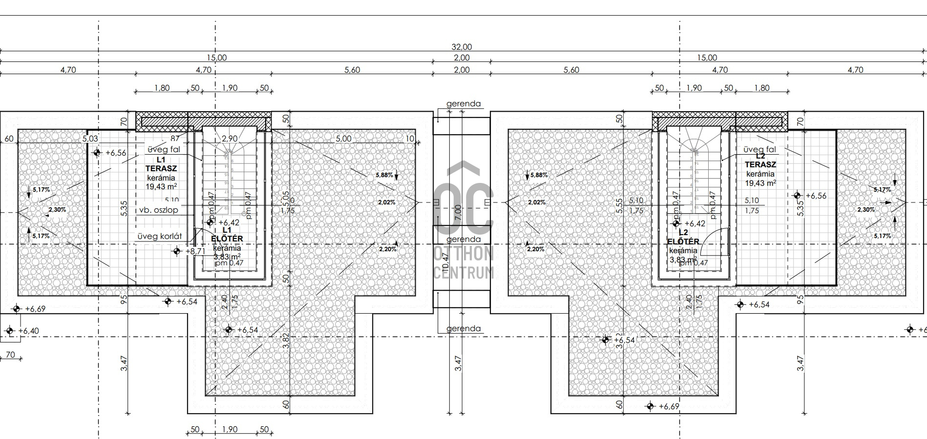
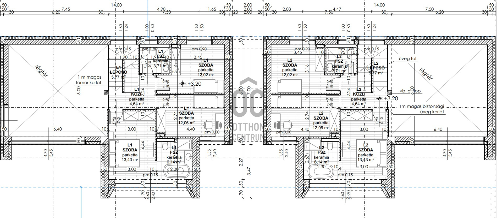
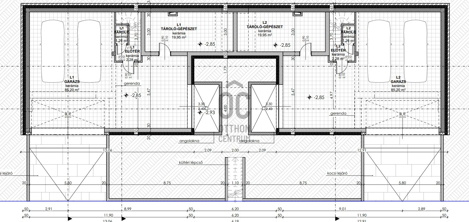
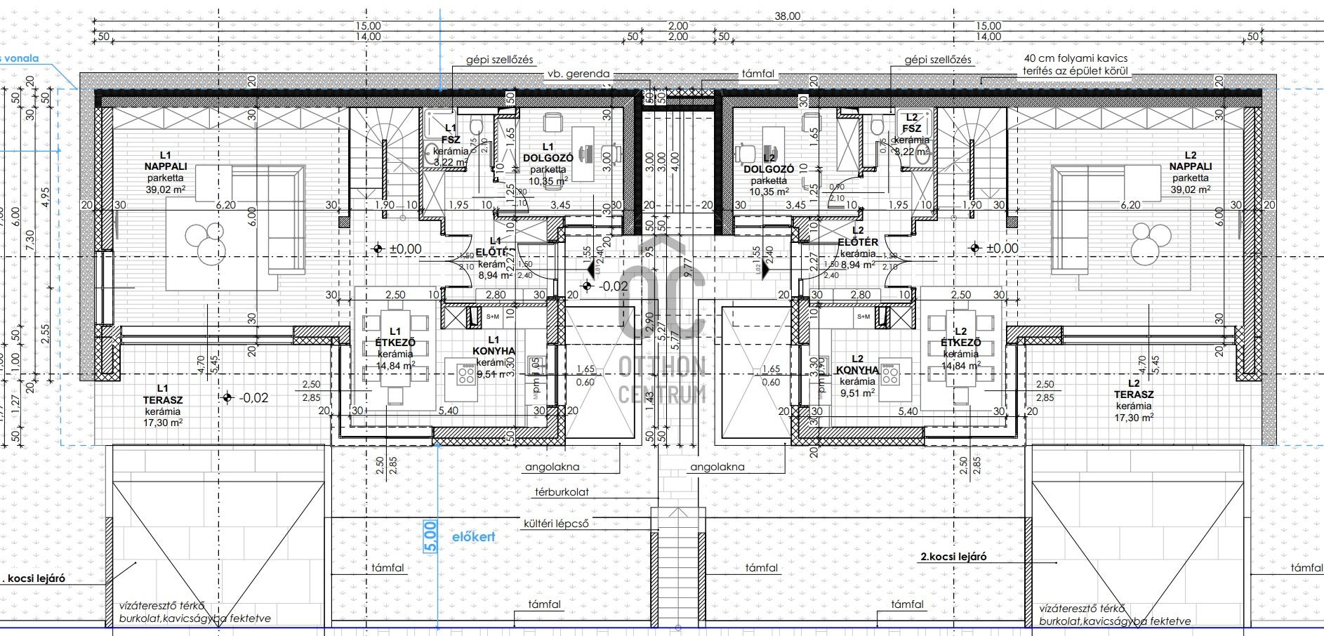
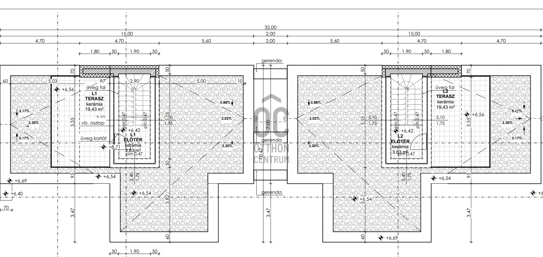
A tervezett 4 db ikerházfél méretei és beosztásai megegyezőek: 201 m2-en (36,7 m2 teraszok ½ és a 109 m2!! teremgarázsszint 1/3 méreteinek a beszámítása mellett, a lakások nettó 146 m2 területűek) 2 lakószinten, NAPPALI + 4 szoba, 3 fürdőszobával, és 109 m2-es!! 2 BEÁLLÁSOS TEREMGARÁZZSAL + tárolókkal.
A fent jelzett tervdokumentáción kívül készült egy szintén 2 x 2 lakásos épületegyüttesre vonatkozó terv is, ahol lakásonként 2 fürdőszoba kerülne kialakításra, a parkolás pedig 1 teremgarázshellyel lenne megoldva 16,5 m2-en tárolók nélkül.
A közművek közül a VILLANY a TELEKHATÁRON BELÜL, a VÍZ, CSATORNA, és a GÁZ az UTCÁBAN található.
A 2424 m2 TELEK ADATAI:
Övezeti besorolása: Vt-9
befoglaló méretek: a telek legtöbb részén a szélesség kb. 25 m és kb. 130 m hosszú az utcafrontja
beépítés mértéke: 30%
általános szintterület mutatója: 0,4
legkisebb zöldfelület arány: 40%
épület magassága: 6,5 m
lakásszám épületenként: 2 (8 épület létesíthető)
Előkert: 5,00 m
Hátsókert: 7,50 m
Oldalkert: 5,00 m
Közlekedés: H5 HÉV Csillaghegyi megállója (1,5 Km) autóval 3, gyalogosan 20 perc alatt érhető el.
AZ INGATLAN EGY CÉG TULAJDONÁBAN VAN, A VÉTELÁR 248.000,000 + 27% Áfa 67.000.000 = 315.000.000 Ft
TISZTELT ÉRDEKLŐDŐ!
AMENNYIBEN SZÁNDÉKÁBAN ÁLL INGATLANT ELADNI - A LEGRÖVIDEBB IDŐN BELÜL, GARANTÁLT JOGI, ÉS BANKI HÁTTÉRREL - KERESSEN BIZALOMMAL, HOGY EGY SZEMÉLYES HELYSZÍNI FELMÉRÉST KÖVETŐ INGYENES ÉRTÉKMEGÁLLAPÍTÁS UTÁN, EGYÜTT TUDJUNK MŰKÖDNI AZ ÖN INGATLANÁNAK AZ ÉRTÉKESÍTÉSÉBEN IS!
ÜRÖM LEGÉRTÉKESEBB RÉSZÉN, NAGYÉRTÉKŰ LUXUSINGATLANOK KÖZVETLEN KÖRNYEZETÉBEN kínálunk eladásra, egy 3320 m2-es (923 négyszögöl), JÓ BEFOGLALÓ MÉRETEKKEL RENDELKEZŐ, 30%-os BEÉPÍTHETŐSÉGŰ ÉPÍTÉSI TELKET, 2 X 2 LAKÁSOS VÁROSI PANORÁMÁS (többek között a GELLÉRT-HEGY is JÓL LÁTHATÓ) TÁRSASHÁZ TELJES TERVDOKUMENTÁCIÓJÁVAL.
A tervezett 4 db ikerházfél méretei és beosztásai megegyezőek: 201 m2-en (36,7 m2 teraszok ½ és a 109 m2!! teremgarázsszint 1/3 méreteinek a beszámítása mellett, a lakások nettó 146 m2 területűek) 2 lakószinten, NAPPALI + 4 szoba, 3 fürdőszobával, és 109 m2-es!! 2 BEÁLLÁSOS TEREMGARÁZZSAL + tárolókkal.
A fent jelzett tervdokumentáción kívül készült egy szintén 2 x 2 lakásos épületegyüttesre vonatkozó terv is, ahol lakásonként 2 fürdőszoba kerülne kialakításra, a parkolás pedig 1 teremgarázshellyel lenne megoldva 16,5 m2-en tárolók nélkül.
A közművek közül a VILLANY a TELEKHATÁRON BELÜL, a VÍZ, CSATORNA, és a GÁZ az UTCÁBAN található.
A 2424 m2 TELEK ADATAI:
Övezeti besorolása: Vt-9
befoglaló méretek: a telek legtöbb részén a szélesség kb. 25 m és kb. 130 m hosszú az utcafrontja
beépítés mértéke: 30%
általános szintterület mutatója: 0,4
legkisebb zöldfelület arány: 40%
épület magassága: 6,5 m
lakásszám épületenként: 2 (8 épület létesíthető)
Előkert: 5,00 m
Hátsókert: 7,50 m
Oldalkert: 5,00 m
Közlekedés: H5 HÉV Csillaghegyi megállója (1,5 Km) autóval 3, gyalogosan 20 perc alatt érhető el.
AZ INGATLAN EGY CÉG TULAJDONÁBAN VAN, A VÉTELÁR 248.000,000 + 27% Áfa 67.000.000 = 315.000.000 Ft
TISZTELT ÉRDEKLŐDŐ!
AMENNYIBEN SZÁNDÉKÁBAN ÁLL INGATLANT ELADNI - A LEGRÖVIDEBB IDŐN BELÜL, GARANTÁLT JOGI, ÉS BANKI HÁTTÉRREL - KERESSEN BIZALOMMAL, HOGY EGY SZEMÉLYES HELYSZÍNI FELMÉRÉST KÖVETŐ INGYENES ÉRTÉKMEGÁLLAPÍTÁS UTÁN, EGYÜTT TUDJUNK MŰKÖDNI AZ ÖN INGATLANÁNAK AZ ÉRTÉKESÍTÉSÉBEN IS!
Registration Number
T034677
Property Details
Sales
for sale
Character
plot
Type of Land
Building plot
Zone
residential zone
Plot Size
3,320 m²
Orientation
South-West
View
city view
Neighborhood
good transport, green
Water
On the street
Gas
On the street
Electricity
Available
Sewer
On the street
Slope of Land
10-20% slope
Buildability
30%
Facade Height
650
Type of Buildable Property
Condominium up to 4 apartments

Ruczek János
Credit Expert