109 900 000 Ft
290 000 €
- 69m²
- 3 szoba
- 3. emelet
Remek lokációval rendelkező 3 szobás lakás.
Eladó remek adottságokkal rendelkező lakás a XII. kerületben, az Alkotás utcában közel — kimagasló elhelyezkedés és kiváló közlekedési kapcsolatok várják új tulajdonosát.
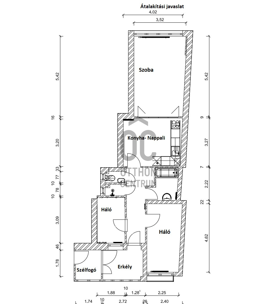
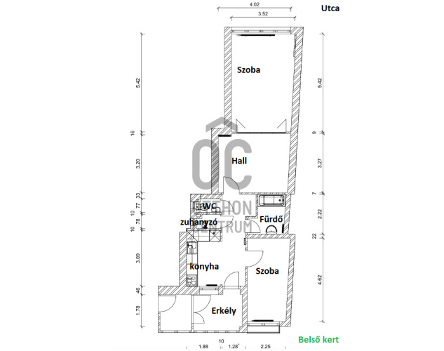
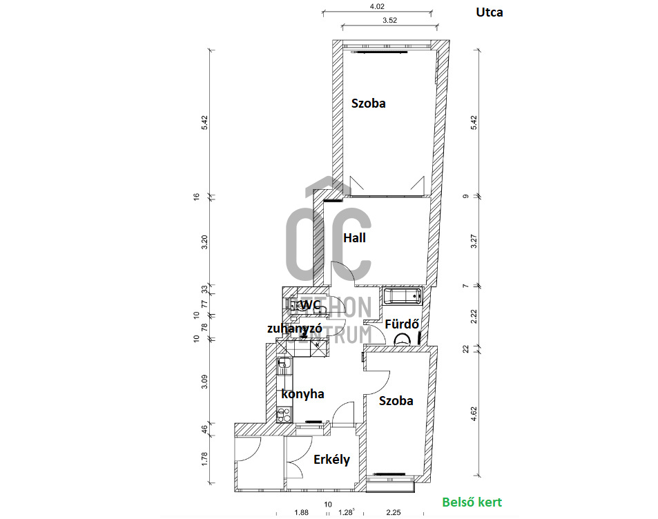
A lakás napfényes, keleti tájolású nappalija világos, barátságos teret biztosít a családi együttlétekhez és vendégfogadáshoz. A hálószobák nyugat felé néznek, így délután és kora esti órákban kellemes, meleg fény érkezik beléjük — ideális pihenésre. Jelen elrendezése egyszerűen átalakítható háromszobássá, ami rugalmasan alakítható a család vagy a bérlők igényei szerint.
Állapot és elhelyezkedés:
A lakás jó állapotú, rendezett műszaki háttérrel, a 3. emeleten található, így zavaró földszinti zajoktól mentes, ugyanakkor kényelmesen megközelíthető. A ház külső és belső homlokzata is felújításon esett át, így igényes és szép külsőt adva az 1958-ban épült háznak. A lakás közösköltsége 54 ezer Ft, ami tartalmazza a víz és fűtés díját két főnek, szemét szállítás, és felújítási alapot. A közeli Déli pályaudvar és a környék kitűnő tömegközlekedési lehetőségei (villamosok, buszok, metró kapcsolat könnyen elérhető) gyors és egyszerű ki- és bejutást biztosítanak a város különböző pontjaira.
Környezeti és szolgáltatási előnyök:
A környék jól ellátott: boltok, piacok, kávézók, éttermek, iskolák és óvodák mind elérhető távolságban. Zöld területek, sétálóutcák és sportolási lehetőségek is a közelben találhatók, ami családoknak és aktív életet élőknek különösen vonzó.
Ajánlás:
Kiváló választás azoknak, akik városi kényelemre, jó közlekedésre és napfényes, jól tagolt terekre vágynak. Ideális otthon családok számára vagy befektetésnek: könnyen háromszobássá alakítható elrendezésével stabil bérbeadási potenciált kínál.
További információkért, pontos méretekért vagy megtekintési időpont egyeztetéséért kérem jelezze, szívesen segítek!
A lakás napfényes, keleti tájolású nappalija világos, barátságos teret biztosít a családi együttlétekhez és vendégfogadáshoz. A hálószobák nyugat felé néznek, így délután és kora esti órákban kellemes, meleg fény érkezik beléjük — ideális pihenésre. Jelen elrendezése egyszerűen átalakítható háromszobássá, ami rugalmasan alakítható a család vagy a bérlők igényei szerint.
Állapot és elhelyezkedés:
A lakás jó állapotú, rendezett műszaki háttérrel, a 3. emeleten található, így zavaró földszinti zajoktól mentes, ugyanakkor kényelmesen megközelíthető. A ház külső és belső homlokzata is felújításon esett át, így igényes és szép külsőt adva az 1958-ban épült háznak. A lakás közösköltsége 54 ezer Ft, ami tartalmazza a víz és fűtés díját két főnek, szemét szállítás, és felújítási alapot. A közeli Déli pályaudvar és a környék kitűnő tömegközlekedési lehetőségei (villamosok, buszok, metró kapcsolat könnyen elérhető) gyors és egyszerű ki- és bejutást biztosítanak a város különböző pontjaira.
Környezeti és szolgáltatási előnyök:
A környék jól ellátott: boltok, piacok, kávézók, éttermek, iskolák és óvodák mind elérhető távolságban. Zöld területek, sétálóutcák és sportolási lehetőségek is a közelben találhatók, ami családoknak és aktív életet élőknek különösen vonzó.
Ajánlás:
Kiváló választás azoknak, akik városi kényelemre, jó közlekedésre és napfényes, jól tagolt terekre vágynak. Ideális otthon családok számára vagy befektetésnek: könnyen háromszobássá alakítható elrendezésével stabil bérbeadási potenciált kínál.
További információkért, pontos méretekért vagy megtekintési időpont egyeztetéséért kérem jelezze, szívesen segítek!
Regisztrációs szám
H513391
Az ingatlan adatai
Értékesités
eladó
Jogi státusz
használt
Jelleg
lakás
Építési mód
tégla
Méret
69 m²
Bruttó méret
69 m²
Terasz / erkély mérete
4 m²
Fűtés
mérés nélküli, központi fűtés
Belmagasság
270 cm
Lakáson belüli szintszám
1
Tájolás
Kelet
Lépcsőház típusa
zárt lépcsőház
Állapot
Kiváló
Homlokzat állapota
Jó
Lépcsőház állapota
Jó
Pince
Önálló
Építés éve
1959
Fürdőszobák száma
2
Fekvés
utcai
Közös költség
54694
Víz
Van
Gáz
Van
Villany
Van
Csatorna
Van
Lift
van
Helyiségek
nappali
1 m²
hálószoba
1 m²
konyha
1 m²
erkély
1 m²
előszoba
1 m²
Ruczek János
Hitelszakértő