For sale new construction apartment, P4695-1-01-02-007
Siófok, Sóstó

195,000,000 Ft

507,000 €

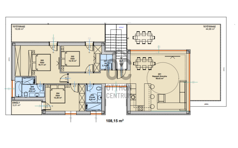
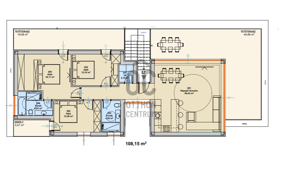
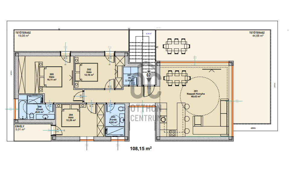
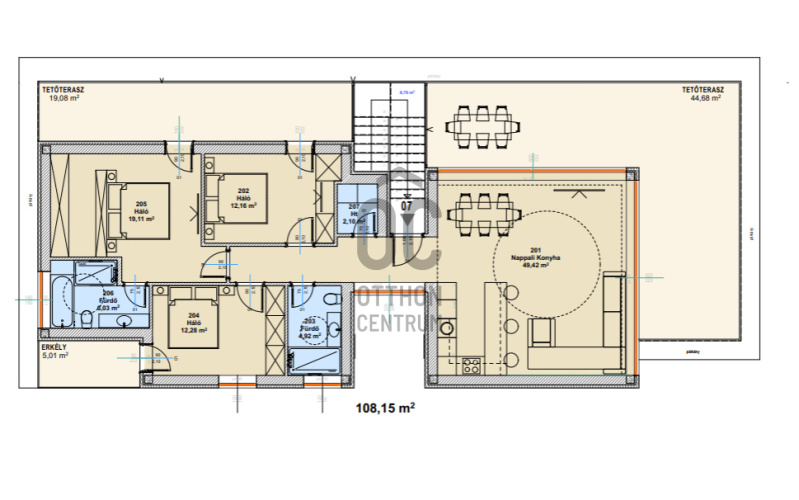
  • 108.1m²
  • 4 Rooms
  • 2nd floor

Live in Siófok! - Sóstó apartments - premium quality

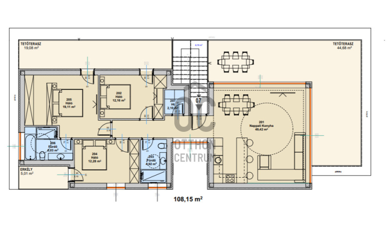
Discover your dream home in the Sóstó district of Siófok, in the form of a new, modern loft apartment! This 110 sqm property meets the highest expectations, as it is in excellent condition and comes fully furnished, ready for its new owners. The spacious living room, designed with a minimalist approach to maximize space, is the ideal setting for family gatherings and friendly meet-ups. The 70 sqm rooftop terrace not only serves as a place to relax but also offers a stunning panorama, where each morning can begin with new experiences. The terraces are primarily oriented to the south and west, with a smaller balcony opening to the east. This premium-quality loft apartment is perfectly suitable for both vacation and permanent residence. The area boasts excellent amenities, so all necessary services are just a stone's throw away. Transportation is also outstanding, as the city's public transport options provide quick and comfortable travel not only to downtown Siófok but also to surrounding towns. The property's heat pump heating system offers an economical solution, keeping maintenance costs low, which makes this newly built exclusive apartment even more attractive. The built-in furniture and wardrobes in the apartment are not only practical but also enhance the property's aesthetic value. The modern design and bright spaces ensure that your home always radiates a pleasant and friendly atmosphere. The quiet, peaceful environment guarantees relaxation and rejuvenation in everyday life. This property is not just an apartment; it is a lifestyle that combines the proximity to nature with the advantages of urban living. If you would like to learn more about this unique opportunity or have any questions, feel free to reach out! Interest in this segment of the real estate market is continuously growing, so don't hesitate, as such a great opportunity may be snatched up quickly! Seize the opportunity and take the first step toward your future!

Registration Number

P4695-1-01-02-007

Property Details

Sales
for sale
Legal Status
new
Character
apartment
Construction Method
brick
Net Size
108.1 m²
Gross Size
177.3 m²
Size of Terrace / Balcony
68.7 m²
Heating
heat pump
Ceiling Height
260 cm
Orientation
North-West
View
Green view
Staircase Type
enclosed staircase
Condition
Excellent
Condition of Facade
Excellent
Condition of Staircase
Excellent
Neighborhood
quiet, good transport, green
Year of Construction
2026
Number of Bathrooms
2
Position
garden-facing
Water
Available
Electricity
Available
Sewer
Available
Connected to Garden
yes
Storage
Separately purchasable
Distance to Waterfront
more than 500 meters

Rooms

open-plan kitchen and living room
49.42 m²
room
12.16 m²
room
19.11 m²
room
12.29 m²
bathroom-toilet
6.03 m²
bathroom-toilet
4.92 m²
other room
2.1 m²
corridor
8.76 m²
balcony
5.01 m²
values.realestate.szobatipus.49
19.08 m²
values.realestate.szobatipus.49
44.68 m²

From Our Office Listings - Siófok - Petőfi sétány

for sale family house

Index image
data_sheet.details.realestate.section.main.otthonstart_flag.label
16

for sale family house

Index image
data_sheet.details.realestate.section.main.otthonstart_flag.label
5

for sale family house

Index image
data_sheet.details.realestate.section.main.otthonstart_flag.label
21

for sale commercial property

Index image
40

for sale family house

Index image
data_sheet.details.realestate.section.main.otthonstart_flag.label
13

for sale family house

Index image
33

for sale vacation home

Index image
13