138,900,000 Ft
355,000 €
- 110m²
- 3 Rooms
- 5th floor
AMERIKAI-NAPPALI KONYHÁS, ÉTKEZŐS + 2 HÁLÓSZOBÁS, 2011-ES TÉGLA ÉPÍTÉSŰ TÁRSASHÁZI LAKÁS ELADÓ A LEVENDULA LAKÓPARKBAN, A XIV. KERÜLETBEN!!!
• KINŐTTE MEGLÉVŐ INGATLANÁT ÉS NAGYOBB INGATLANT KERES?
• SZERETI A NAGY ÉLETTEREKET ÉS AZ AMERIKAI-NAPPALI KONYHÁT?
• FONTOS SZÁMÁRA, HOGY NAGY TERASSZAL RENDELKEZZEN?
• 2010 UTÁN ÉPÜLT TÁRSASHÁZI LAKÓ INGATLANT KERES?
AKKOR NE KERESSEN TOVÁBB, MERT MEGTALÁLTA AZT AMIT KERESETT!!!
AMENNYIBEN TOVÁBBI INFORMÁCIÓRA VAGY SZERETNÉ SZEMÉLYESEN IS MEGTEKINTENI AZ INGATLANT, ÚGY VÁROM HÍVÁSÁT!!!
Az ingatlan tulajdonságai:
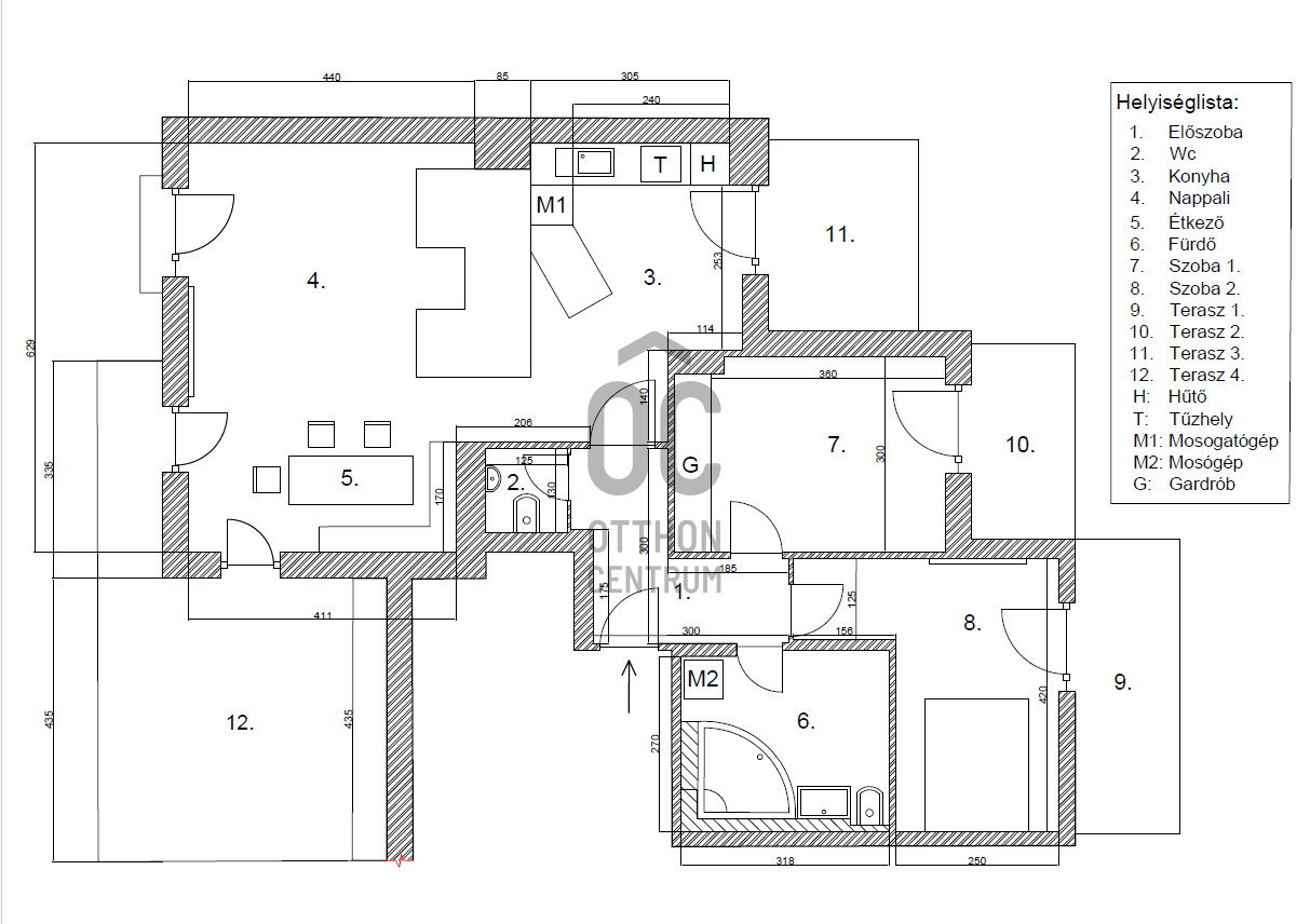
110 nm, hasznos alapterület
amerikai-konyha+étkező+2 lakószoba
3 db erkély és egy 18 nm-es nagy terasz
5. emelet
két tájolású, világos lakó ingatlan: Dny & Ék
kiváló hideg – meleg burkolatok
elektromos redőnyök minden nyílászárón
dupla falu műanyag nyílászárók
biztonságos villamos hálózat érintésvédelmi Fi relével biztosítva
3 db hűtő – fűtő klíma berendezés
gépesített konyhai berendezések, mely a vételár részét képezi;
• beépített mosogató gép
• beépített villanysütő
• beépített indukciós főzőlap
• beépített mikró
• beépített szagelszívó berendezések
házközponti fűtés, melynek díját tartalmazza a közös költség
egyedi mérés villany
hideg – meleg vízóra
közös költség, mely havi 73,700.- forint és az alábbi tételeket tartalmazza;
• fűtés
• hideg – meleg vízfogyasztás
• vízfelmelegítés
• felújítási alap
• takarítás
• lift
• társasházi kert gondozás
• közös képviseleti díj
• takarítás
• biztosítás
1/1 tulajdon
tehermentes ingatlan
Társasház:
2011-ben épült 5 emeletes tégla építés
pozitív megtakarítási alap
lift
bérelhető tároló(k)
tiszta, rendezett társasház
nyugodt lakó közösség
bérelhető teremgarázs hely
Közlekedés:
62, 62A, 69 villamosok
5, 124, 125 autóbuszok
74, 81 trolibuszok
973 éjszakai járat
Az ingatlan adottságainak köszönhetően a környéken minden elérhető séta távolságon belül kapható, mely a minden napi élethez szükséges.
AMENNYIBEN EGY ILYEN ADOTTSÁGOKKAL RENDELKEZŐ INGATLANT KERES, AKKOR MEGTALÁLTA!
VÁROM HÍVÁSÁT!
• SZERETI A NAGY ÉLETTEREKET ÉS AZ AMERIKAI-NAPPALI KONYHÁT?
• FONTOS SZÁMÁRA, HOGY NAGY TERASSZAL RENDELKEZZEN?
• 2010 UTÁN ÉPÜLT TÁRSASHÁZI LAKÓ INGATLANT KERES?
AKKOR NE KERESSEN TOVÁBB, MERT MEGTALÁLTA AZT AMIT KERESETT!!!
AMENNYIBEN TOVÁBBI INFORMÁCIÓRA VAGY SZERETNÉ SZEMÉLYESEN IS MEGTEKINTENI AZ INGATLANT, ÚGY VÁROM HÍVÁSÁT!!!
Az ingatlan tulajdonságai:
110 nm, hasznos alapterület
amerikai-konyha+étkező+2 lakószoba
3 db erkély és egy 18 nm-es nagy terasz
5. emelet
két tájolású, világos lakó ingatlan: Dny & Ék
kiváló hideg – meleg burkolatok
elektromos redőnyök minden nyílászárón
dupla falu műanyag nyílászárók
biztonságos villamos hálózat érintésvédelmi Fi relével biztosítva
3 db hűtő – fűtő klíma berendezés
gépesített konyhai berendezések, mely a vételár részét képezi;
• beépített mosogató gép
• beépített villanysütő
• beépített indukciós főzőlap
• beépített mikró
• beépített szagelszívó berendezések
házközponti fűtés, melynek díját tartalmazza a közös költség
egyedi mérés villany
hideg – meleg vízóra
közös költség, mely havi 73,700.- forint és az alábbi tételeket tartalmazza;
• fűtés
• hideg – meleg vízfogyasztás
• vízfelmelegítés
• felújítási alap
• takarítás
• lift
• társasházi kert gondozás
• közös képviseleti díj
• takarítás
• biztosítás
1/1 tulajdon
tehermentes ingatlan
Társasház:
2011-ben épült 5 emeletes tégla építés
pozitív megtakarítási alap
lift
bérelhető tároló(k)
tiszta, rendezett társasház
nyugodt lakó közösség
bérelhető teremgarázs hely
Közlekedés:
62, 62A, 69 villamosok
5, 124, 125 autóbuszok
74, 81 trolibuszok
973 éjszakai járat
Az ingatlan adottságainak köszönhetően a környéken minden elérhető séta távolságon belül kapható, mely a minden napi élethez szükséges.
AMENNYIBEN EGY ILYEN ADOTTSÁGOKKAL RENDELKEZŐ INGATLANT KERES, AKKOR MEGTALÁLTA!
VÁROM HÍVÁSÁT!
Registration Number
H515323
Property Details
Sales
for sale
Legal Status
used
Character
apartment
Construction Method
brick
Net Size
110 m²
Gross Size
110 m²
Heating
unmetered central heating
Ceiling Height
265 cm
Orientation
South-West
View
city view, Green view
Staircase Type
enclosed staircase
Condition
Excellent
Condition of Facade
Excellent
Condition of Staircase
Excellent
Neighborhood
quiet, good transport, green, central
Year of Construction
2011
Number of Bathrooms
1
Position
garden-facing
Water
Available
Gas
Available
Electricity
Available
Sewer
Available
Elevator
available
Rooms
entryway
5.25 m²
open-plan kitchen and living room
35.38 m²
dining room
5.7 m²
room
10.8 m²
room
10.5 m²
bathroom-toilet
8.58 m²
toilet-washbasin
1.65 m²
terrace
18 m²
balcony
6.5 m²
balcony
4.5 m²
balcony
4.6 m²
Hazay Melinda
Credit Expert