data_sheet.details.realestate.section.main.otthonstart_flag.label
For sale panel apartment,
H513474
Budapest XVII. kerület, Rákoskeresztúr
67,900,000 Ft
181,000 €
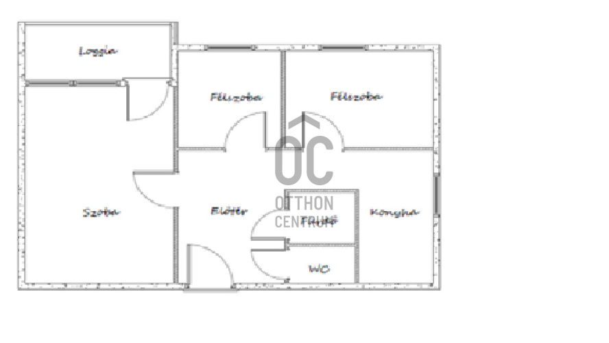
- 51m²
- 3 Rooms
- 2nd floor
Eladóvá vált egy 51nm-es, háromszobás panellakás Rákoskeresztúron!
De miért pont ezt válaszd?
+ kiváló elosztású, második emeleti lakás, alapvetően nem kell hozzányúlni
+ a villanyhálózat, a burkolatok, a nyílászáró jó állapotúak
+ 4nm-es erkéllyel, hűtő-fűtő klímával felszerelt ingatlan
+ 1/1es tulajdon, tehermentes
+ közelben: gyógyszertár, orvosi rendelő, élelmiszerbolt, Keresztúri úti bevásárlópark
Amennyiben felkeltettem érdeklődésedet, várom hívásodat!
De miért pont ezt válaszd?
+ kiváló elosztású, második emeleti lakás, alapvetően nem kell hozzányúlni
+ a villanyhálózat, a burkolatok, a nyílászáró jó állapotúak
+ 4nm-es erkéllyel, hűtő-fűtő klímával felszerelt ingatlan
+ 1/1es tulajdon, tehermentes
+ közelben: gyógyszertár, orvosi rendelő, élelmiszerbolt, Keresztúri úti bevásárlópark
Amennyiben felkeltettem érdeklődésedet, várom hívásodat!
Registration Number
H513474
Property Details
Sales
for sale
Legal Status
used
Character
apartment
Construction Method
panel
Net Size
51 m²
Gross Size
55 m²
Size of Terrace / Balcony
4 m²
Heating
district heating
Ceiling Height
275 cm
Orientation
North-East
Staircase Type
enclosed staircase
Condition
Good
Condition of Facade
Average
Condition of Staircase
Average
Neighborhood
quiet, good transport, central
Year of Construction
1980
Number of Bathrooms
1
Position
street-facing
Common Costs
12000
Water
Available
Gas
Available
Electricity
Available
Sewer
Available
Elevator
available
Rooms
living room
18 m²
room
9 m²
room
7 m²
bathroom
3.5 m²
toilet
1 m²
kitchen
5 m²
corridor
5 m²
Zaracsi Szilvia
Credit Expert