data_sheet.details.realestate.section.main.otthonstart_flag.label
For sale family house,
H513218
Halásztelek
99,900,000 Ft
266,000 €
- 214m²
- 5 Rooms
Eladó családi ház Halásztelek legkeresettebb részén - sokoldalú lehetőségek!
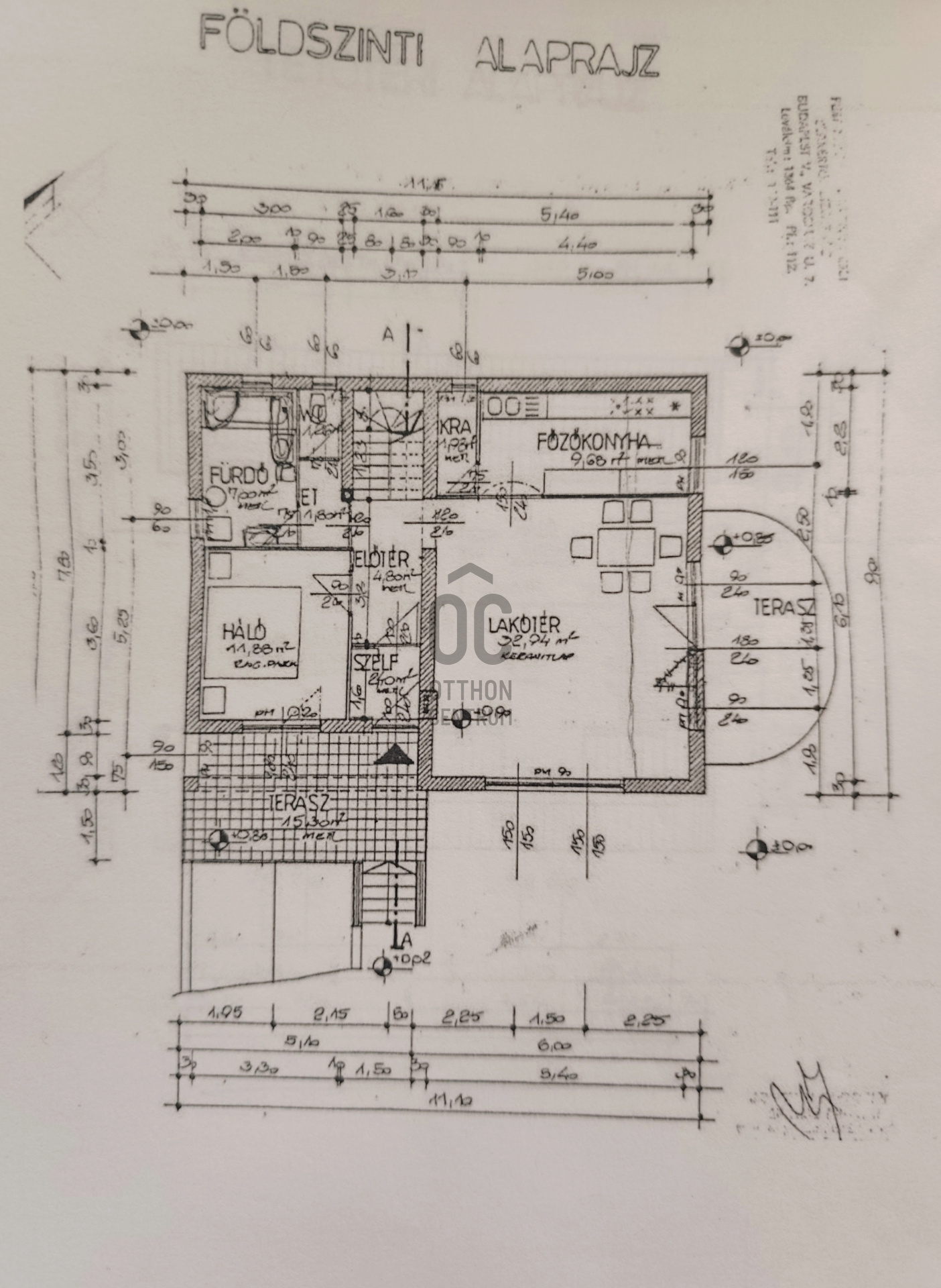
Halásztelek egyik legkeresettebb részén, hangulatos, csendes utcájában kínálok eladásra egy bruttó 235 m², nettó 214 m² alapterületű, háromszintes családi házat, amely nemcsak családok számára ideális, hanem kezdő pároknak, összeköltözőknek, befektetőknek és vállalkozóknak is kiváló lehetőséget kínál.
A ház alsó és felső szintje akár külön is használható, saját bejárattal, így tökéletes 2 generáció együttélésére, bérbeadásra, vagy üzleti célokra. A pince szinten tágas garázs és műhely található, ahol korábban kerékpár és kis háztartásigépszerelő tevékenység folyt, valamint nagy tároló és kazánház szolgálja a praktikus mindennapokat. A külön szerelőaknás garázsokban akár autószerelő műhely is kialakítható, vagy egyszerűen több gépjármű tárolására használható.
A földszinten amerikai konyhás, világos nappali, kamra, szoba és fürdőszoba található, a fürdőben masszázs zuhanykabin és ültetett kád biztosítja a kényelmet. A földszinthez tartozik még két tágas terasz és egy praktikus szélfogó, amelyek a családi élet és a kikapcsolódás ideális terepei. Az emeleten három hálószoba kapott helyet, kettő erkélyes, valamint egy fürdőszoba, ahol a kád mellett könnyen kialakítható egy zuhanyzó is, a rugalmasságot szem előtt tartva.
Ez a ház teljes felújítást igényel, így a leendő tulajdonos saját elképzelése szerint alakíthatja át álmai otthonává vagy befektetési céllal kihasználható üzleti terekké.
Minden fontos szolgáltatás – iskola, óvoda, bevásárlási lehetőségek, orvosi rendelő – rövid sétával vagy autóúttal elérhető. A buszmegálló pár perc sétára, az M0 autóút pedig néhány kilométerre található, így a közlekedés gyors és kényelmes.
Egyedülálló lehetőséget kínál mindazoknak, akik saját elképzelésük szerint szeretnének élni Halásztelken, vagy értéknövelő befektetést keresnek.
HASZNÁLJA KI A TÁMOGATÁSOKAT!
CSOK ÉS OTTHON START HITEL IGÉNYBE VEHETŐ AZ INGATLAN MEGVÁSÁRLÁSÁHOZ!
Egyedi igényekre szabott lakáshitelekkel állunk rendelkezésére. Bankfüggetlen Hitel Centrumunk az országban elérhető összes bank és hitelintézet ajánlatát versenyezteti az Ön számára díjmentesen. Teljes körű jogi háttér szolgáltatást nyújt irodánk.
Bővebb információért és megtekintési időpontért kérem hívjon bizalommal!
A ház alsó és felső szintje akár külön is használható, saját bejárattal, így tökéletes 2 generáció együttélésére, bérbeadásra, vagy üzleti célokra. A pince szinten tágas garázs és műhely található, ahol korábban kerékpár és kis háztartásigépszerelő tevékenység folyt, valamint nagy tároló és kazánház szolgálja a praktikus mindennapokat. A külön szerelőaknás garázsokban akár autószerelő műhely is kialakítható, vagy egyszerűen több gépjármű tárolására használható.
A földszinten amerikai konyhás, világos nappali, kamra, szoba és fürdőszoba található, a fürdőben masszázs zuhanykabin és ültetett kád biztosítja a kényelmet. A földszinthez tartozik még két tágas terasz és egy praktikus szélfogó, amelyek a családi élet és a kikapcsolódás ideális terepei. Az emeleten három hálószoba kapott helyet, kettő erkélyes, valamint egy fürdőszoba, ahol a kád mellett könnyen kialakítható egy zuhanyzó is, a rugalmasságot szem előtt tartva.
Ez a ház teljes felújítást igényel, így a leendő tulajdonos saját elképzelése szerint alakíthatja át álmai otthonává vagy befektetési céllal kihasználható üzleti terekké.
Minden fontos szolgáltatás – iskola, óvoda, bevásárlási lehetőségek, orvosi rendelő – rövid sétával vagy autóúttal elérhető. A buszmegálló pár perc sétára, az M0 autóút pedig néhány kilométerre található, így a közlekedés gyors és kényelmes.
Egyedülálló lehetőséget kínál mindazoknak, akik saját elképzelésük szerint szeretnének élni Halásztelken, vagy értéknövelő befektetést keresnek.
HASZNÁLJA KI A TÁMOGATÁSOKAT!
CSOK ÉS OTTHON START HITEL IGÉNYBE VEHETŐ AZ INGATLAN MEGVÁSÁRLÁSÁHOZ!
Egyedi igényekre szabott lakáshitelekkel állunk rendelkezésére. Bankfüggetlen Hitel Centrumunk az országban elérhető összes bank és hitelintézet ajánlatát versenyezteti az Ön számára díjmentesen. Teljes körű jogi háttér szolgáltatást nyújt irodánk.
Bővebb információért és megtekintési időpontért kérem hívjon bizalommal!
Registration Number
H513218
Property Details
Sales
for sale
Legal Status
used
Character
house
Construction Method
brick
Net Size
214 m²
Gross Size
235.3 m²
Plot Size
626 m²
Size of Terrace / Balcony
25 m²
Heating
Gas circulator
Ceiling Height
270 cm
Number of Levels Within the Property
2
Orientation
South-East
Condition
To be renovated
Condition of Facade
Average
Basement
Independent
Neighborhood
quiet, good transport
Year of Construction
1980
Number of Bathrooms
2
Garage
Included in the price
Garage Spaces
3
Water
Available
Gas
Available
Electricity
Available
Sewer
Available
Multi-Generational
yes
Storage
Independent
Rooms
entryway
6.6 m²
open-plan kitchen and living room
42.62 m²
pantry
1.98 m²
room
11.88 m²
room
5 m²
bathroom
7 m²
toilet
1.26 m²
bedroom
7.28 m²
bedroom
12.85 m²
bedroom
16.18 m²
bathroom-toilet
6.24 m²
entryway
4.42 m²
balcony
8 m²
terrace
15.3 m²
terrace
17 m²
cellar
79.14 m²
garage
51 m²
Hertelendiné Szabó Mónika Krisztina
Credit Expert