data_sheet.details.realestate.section.main.otthonstart_flag.label
For sale apartment, H512970
Komárom, Szőny

35,900,000 Ft

95,000 €

  • 49m²
  • 3 Rooms
  • raised ground floor
Exclusive Contract

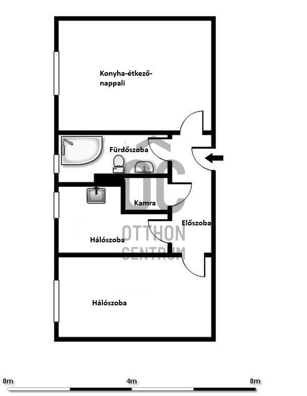
Komárom Molaj-lakótelepen eladó egy 3szobássá alakított magasföldszinti lakás.

A lakás jellemzői:

- 49nm alapterület.

- 3 különnyíló szobával rendelkezik, mivel a konyhából hálószobát alakítottak ki.

- Villanyvezetékeket részleges kicserélték.

- Műanyag ablakokkal rendelkezik.

- Burkolatok előszobában, fürdőszobában járólap, szobákban linóleum és laminált parketta.

- A fűtés és a melegvíz egyéni órákkal mért távhős, termosztáttal vezérelhető.

- A környék igazán csendes, kimondottan zöldövezeti. A társasház mellett park és jól felszerelt játszótér található.

További információért várom hívását!

Registration Number

H512970

Property Details

Sales
for sale
Legal Status
used
Character
apartment
Construction Method
brick
Net Size
49 m²
Gross Size
49 m²
Heating
individual district heating
Ceiling Height
270 cm
Orientation
South-East
Staircase Type
enclosed staircase
Condition
Average
Condition of Facade
Average
Condition of Staircase
Average
Basement
Independent
Neighborhood
quiet, green
Year of Construction
1970
Number of Bathrooms
1
Position
street-facing
Water
Available
Electricity
Available
Sewer
Available

Rooms

living room
17.5 m²
living room
17.5 m²
bedroom
12.6 m²
bedroom
12.6 m²
bedroom
7 m²
bedroom
7 m²
bathroom-toilet
5 m²
bathroom-toilet
5 m²
pantry
1 m²
pantry
1 m²
entryway
4.1 m²
entryway
4.1 m²
Sovány Nóra
Sovány Nóra

Credit Expert

From Our Office Listings - Tata - Ady Endre út

for sale family house

Index image
data_sheet.details.realestate.section.main.otthonstart_flag.label
14

for sale family house

Index image
data_sheet.details.realestate.section.main.otthonstart_flag.label
12

for sale family house

Index image
data_sheet.details.realestate.section.main.otthonstart_flag.label
14

for sale family house

Index image
data_sheet.details.realestate.section.main.otthonstart_flag.label
7

for sale family house

Index image
data_sheet.details.realestate.section.main.otthonstart_flag.label
24

for sale family house

Index image
data_sheet.details.realestate.section.main.otthonstart_flag.label
47

for sale family house

Index image
data_sheet.details.realestate.section.main.otthonstart_flag.label
24