For sale apartment, H512220
Budapest V. kerület, Dél-Belváros

197,704,500 Ft

525,000 €

  • 93m²
  • 3 Rooms
  • 4th floor
Exclusive Contract

Fedezze fel Budapest szívében ezt a tágas, 3 szobás lakást – otthon vagy befektetés céljára!

Egy igazán különleges lehetőséget kínálunk, amely a főváros szívében található. A Dél-Belvárosban, Budapest 05. kerületében elhelyezkedő, használt lakásunk ideális választás lehet, legyen szó saját otthonról vagy befektetési célú vásárlásról. Az ingatlan alapterülete 100 négyzetméter, amely három tágas szobával, egy modern fürdőszobával és egy étkezős-konyhával rendelkezik. A lakás állapota jó, így azonnal költözhető, a fűtése pedig gáz (cirko) rendszerű, amely kedvező rezsiköltségeket biztosít. A lakás világos, napfényes terekkel büszkélkedhet, amelyek kellemes atmoszférát teremtenek a mindennapi élethez. A tágas nappali ideális helyszín a családi összejövetelekhez vagy baráti találkozókhoz, míg a szobákban a nyugalom és a pihenés garantált. A központi elhelyezkedés, az Egyetem tér közelsége lehetővé teszi, hogy a város legfontosabb látnivalói, üzletei és szolgáltatásai könnyedén elérhetők legyenek. A környék ellátottsága kiváló, a közeli üzletek, éttermek és kávézók széles választéka biztosítja, hogy minden szükségletét könnyedén kielégíthesse. A közlekedési csomópont közelsége miatt a kitűnő közlekedés lehetőségei révén Budapest bármely pontja gyorsan és egyszerűen elérhető. A tömegközlekedési lehetőségek, mint a M3, M4 metrók, buszok és a villamosok, mindössze pár perc sétára találhatók, így a napi ingázás sem okoz majd nehézséget. A Dél-Belváros nemcsak a kiváló közlekedési és ellátottsági lehetőségeiről híres, hanem a biztonságos és csendes környezetéről is, amely ideális választássá teszi ezt a lakást családok, fiatal párok és befektetők számára egyaránt. A tehermentes ingatlan lehetőséget ad arra, hogy zökkenőmentesen valósítsa meg álmait, és élvezhesse a belvárosi élet minden előnyét. Amennyiben bármilyen kérdése merülne fel a lakással vagy a vásárlási folyamattal kapcsolatban, bizalommal keresen. Szívesen állunk rendelkezésére, hogy segítsünk Önnek megtalálni a tökéletes ingatlant, amely megfelel az igényeinek és elvárásainak. Ne habozzon, hiszen ez a lehetőség nem tart örökké!

Registration Number

H512220

Property Details

Sales
for sale
Legal Status
used
Character
apartment
Construction Method
brick
Net Size
93 m²
Gross Size
100 m²
Heating
Gas circulator
Ceiling Height
360 cm
Orientation
East
Staircase Type
enclosed staircase
Condition
Good
Condition of Facade
Average
Condition of Staircase
Average
Neighborhood
good transport, central
Year of Construction
1892
Number of Bathrooms
1
Position
street-facing
Common Costs
28000
Water
Available
Gas
Available
Electricity
Available
Sewer
Available
Elevator
available

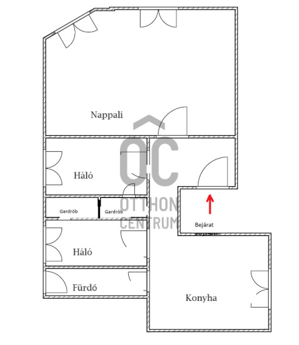
Rooms

living room
29 m²
bedroom
14 m²
bedroom
14 m²
open-plan kitchen and dining room
18 m²
bathroom-toilet
8 m²
wardrobe
2 m²
wardrobe
2 m²
entryway
3 m²
corridor
6 m²
Örvössy Tamás
Örvössy Tamás

Credit Expert

From Our Office Listings - XIII. kerület - Szent István park

for sale apartment

Index image
30

for sale apartment

Index image
63

for sale new construction family house

Index image
58

for sale apartment

Index image
22

for sale apartment

Index image
20

for sale apartment

Index image
30

for sale apartment

Index image
32

for sale panel apartment

Index image
data_sheet.details.realestate.section.main.otthonstart_flag.label
11

for sale commercial property

Index image
6

for sale apartment

Index image
31

for sale apartment

Index image
18