data_sheet.details.realestate.section.main.otthonstart_flag.label
For sale family house, H509378
Zalabaksa, Petőfi út

10,000,000 Ft

28,000 €

  • 86m²
  • 2 Rooms
Exclusive Contract

A building awaiting renovation in Zalabaks – a true challenge for creative hands!

Once a house that has seen better days is looking for its savior! I am offering this characterful building for sale in Zalabaksá, next to the busy Route 86 leading to Slovenia, which is in need of renovation and awaits new life! It previously operated as a commercial unit, but now it can be anything – only your imagination sets the limit: - A small restaurant or snack bar - A guesthouse - A truck parking area - A family home - …or even something entirely unique! The 45 cm thick brick walls still stand solidly, and the “panoramic broken” windows provide natural ventilation. :) The roof is in need of complete replacement, which presents an excellent opportunity for converting the attic and creating new spaces. The back terrace currently modestly hides behind the vegetation, but with a little care, it could become a true gem. Nearby, there is a fish pond, thermal bath, and it is ideal for those wishing to fish, hike, or relax in Slovenia. If you are not afraid of challenges and enjoy seeing potential in the ruins of a building, then this place is for you! Feel free to contact me if you see the opportunity and would like to give it a new life!

Registration Number

H509378

Property Details

Sales
for sale
Legal Status
used
Character
house
Construction Method
brick
Net Size
86 m²
Gross Size
110 m²
Plot Size
1,739 m²
Size of Terrace / Balcony
20 m²
Garden Size
1,739 m²
Ceiling Height
300 cm
Orientation
South
View
Green view
Condition
To be renovated
Condition of Facade
Below average
Neighborhood
good transport, green, central
Year of Construction
1900
Number of Bathrooms
1
Condominium Garden
yes
Water
Available
Gas
On the street
Electricity
Available

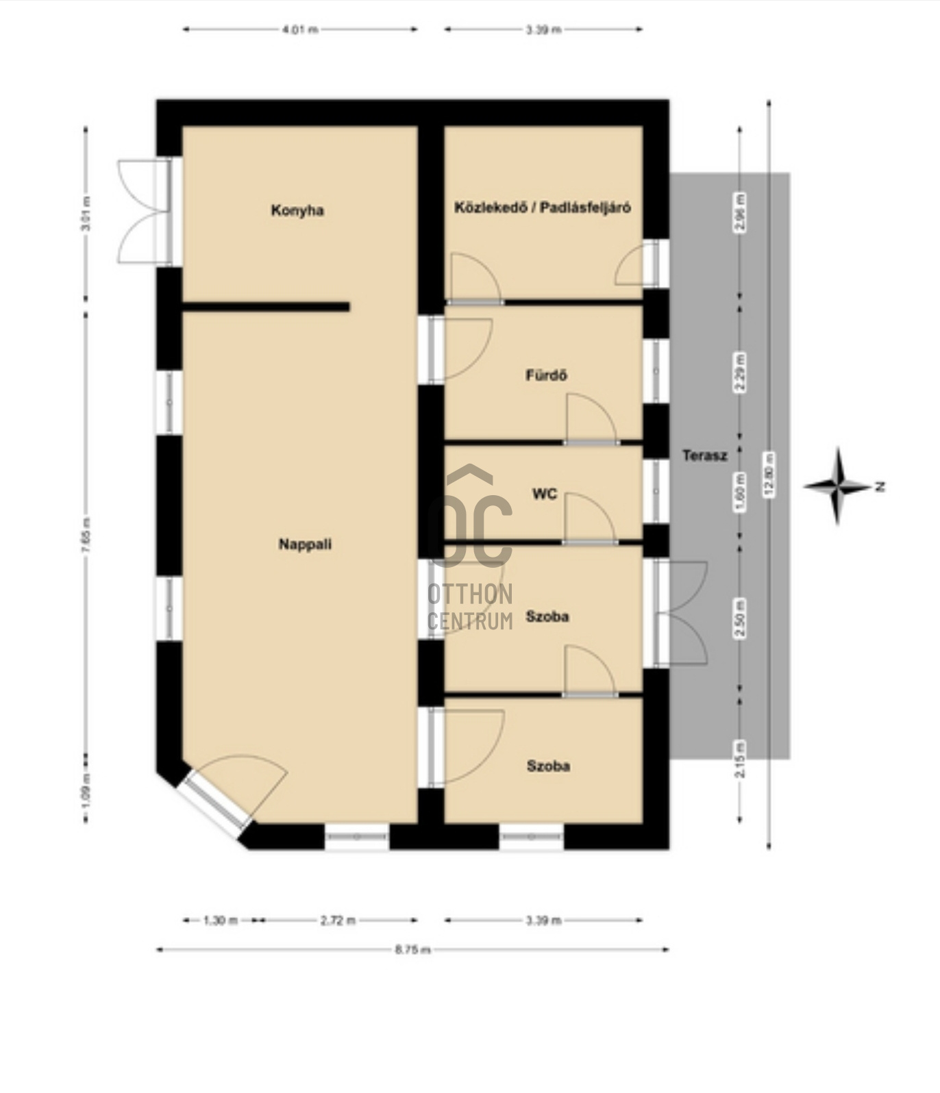
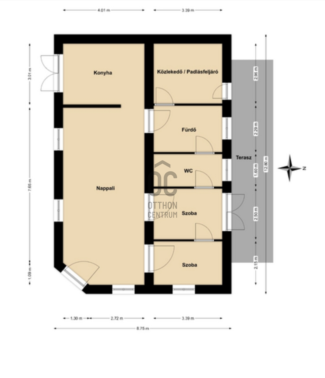
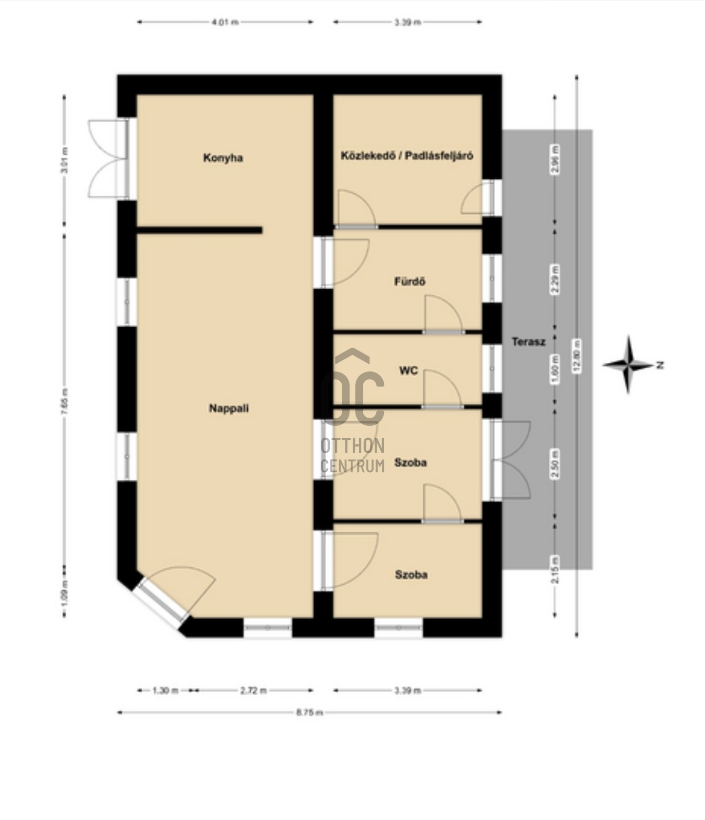
Rooms

hall
34 m²
kitchen
12 m²
bedroom
8 m²
bedroom
8 m²
bathroom
8 m²
bathroom-toilet
6 m²
corridor
10 m²
terrace
20 m²
Dr. Kercza Melinda
Dr. Kercza Melinda

Credit Expert

From Our Office Listings - Zalaegerszeg - Kossuth út

for sale panel apartment

Index image
data_sheet.details.realestate.section.main.otthonstart_flag.label
12

for sale family house

Index image
data_sheet.details.realestate.section.main.otthonstart_flag.label
18

for sale new construction family house

Index image
data_sheet.details.realestate.section.main.otthonstart_flag.label
6

for sale family house

Index image
data_sheet.details.realestate.section.main.otthonstart_flag.label
15

for sale apartment

Index image
data_sheet.details.realestate.section.main.otthonstart_flag.label
34

for sale family house

Index image
data_sheet.details.realestate.section.main.otthonstart_flag.label
21

for sale family house

Index image
data_sheet.details.realestate.section.main.otthonstart_flag.label
27

for sale family house

Index image
data_sheet.details.realestate.section.main.otthonstart_flag.label
21