95,000,000 Ft
243,000 €
- 33m²
- 2 Rooms
- ground floor






















SVÁBHEGYI MŰEMLÉK INGATLAN ELADÓ
Eladó egy présház jellegű sváb falusi porta és pince együttes a XII. kerületben.
A Svábhegy szőlészeti és borászati hagyományainak egyik utolsó hírnökeként műemléki védelmet élvez.
A présházat lakóházzá alakították, de az eredeti építészeti forma és stílus jegyeket megőrizték.
Megmaradt a látványos pince és az egykori helyi szőlő művelési kultúrára jellemző támfalas-teraszos kert.
Az 1830-as években épült házban két társasházi lakás található külön lekerített kertrésszel. A hangulatos, ősfás, teraszos kert kb. 900 m2.
Az eladásra kerülő ingatlan:
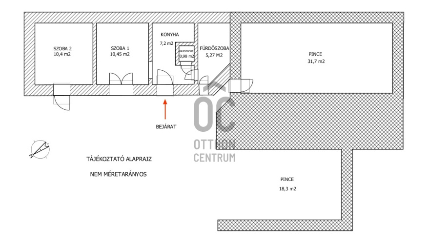
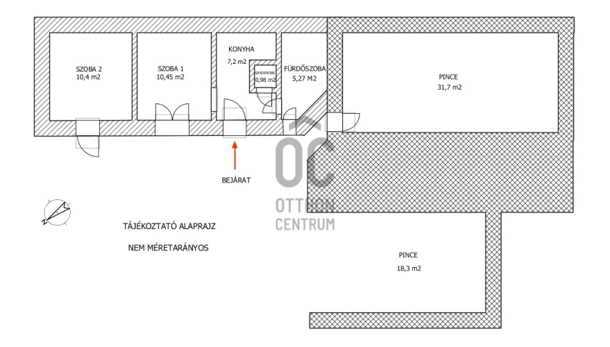
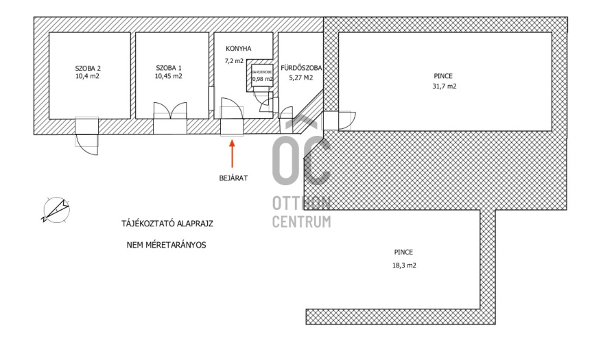
- 33 m2-es 2 szobás lakás. (Az egyik szoba jelenleg az udvarról nyílik és teljesen felújítandó.)
- 2 db pince - összesen 50 m2 (Az egyik pince elölről nyitott és felújítást-helyreállítást igényel. Feltehetőleg ennek mérete a jelenleg láthatónál jóval nagyobb)
- kő és tégla falazat (60 cm vastag) 5 cm hungarocell szigeteléssel.
- elektromos fűtés
- buszmegálló 300 méteren belül található. (21, 21A, 212, 221)
- fogaskerekű megálló 400 méter
- bevásárlási lehetőség 400 méter
Alkalmas lehet idegenforgalmi - vendéglátási célra, borpincének, rendezvény helyszínnek.
A Svábhegy szőlészeti és borászati hagyományainak egyik utolsó hírnökeként műemléki védelmet élvez.
A présházat lakóházzá alakították, de az eredeti építészeti forma és stílus jegyeket megőrizték.
Megmaradt a látványos pince és az egykori helyi szőlő művelési kultúrára jellemző támfalas-teraszos kert.
Az 1830-as években épült házban két társasházi lakás található külön lekerített kertrésszel. A hangulatos, ősfás, teraszos kert kb. 900 m2.
Az eladásra kerülő ingatlan:
- 33 m2-es 2 szobás lakás. (Az egyik szoba jelenleg az udvarról nyílik és teljesen felújítandó.)
- 2 db pince - összesen 50 m2 (Az egyik pince elölről nyitott és felújítást-helyreállítást igényel. Feltehetőleg ennek mérete a jelenleg láthatónál jóval nagyobb)
- kő és tégla falazat (60 cm vastag) 5 cm hungarocell szigeteléssel.
- elektromos fűtés
- buszmegálló 300 méteren belül található. (21, 21A, 212, 221)
- fogaskerekű megálló 400 méter
- bevásárlási lehetőség 400 méter
Alkalmas lehet idegenforgalmi - vendéglátási célra, borpincének, rendezvény helyszínnek.
Registration Number
H507188
Property Details
Sales
for sale
Legal Status
used
Character
apartment
Construction Method
brick
Net Size
33 m²
Gross Size
83 m²
Garden Size
900 m²
Ceiling Height
240 cm
Orientation
North-East
Staircase Type
none
Condition
Average
Condition of Facade
Average
Condition of Staircase
Good
Neighborhood
quiet, green
Year of Construction
1830
Number of Bathrooms
1
Position
garden-facing
Condominium Garden
yes
Water
Available
Gas
Available
Electricity
Available
Sewer
Available
Rooms
room
7 m²
room
10.2 m²
kitchen
7.2 m²
bathroom
5 m²
wardrobe
1 m²
wine cellar
50 m²

Bartha Zoltán
Credit Expert