data_sheet.details.realestate.section.main.otthonstart_flag.label
For sale apartment,
H506657
Budapest V. kerület, Lipótváros
63,000,000 Ft
162,000 €
- 46m²
- 1 Rooms
- ground floor
Fedezze fel Budapest Lipótvárosában található, kivételes lehetőségeket kínáló, használt lakásunkat, amely tökéletes választás lehet akár első otthonának, akár befektetési céllal történő vásárlásra.
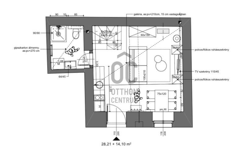
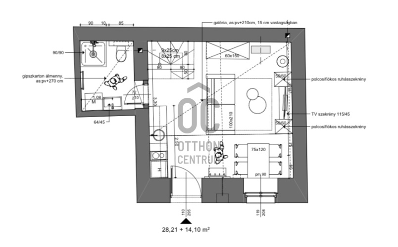
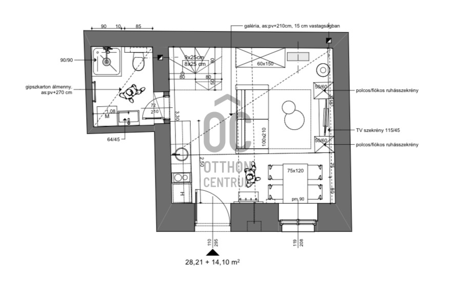
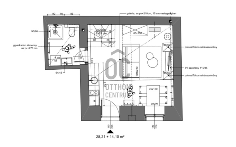
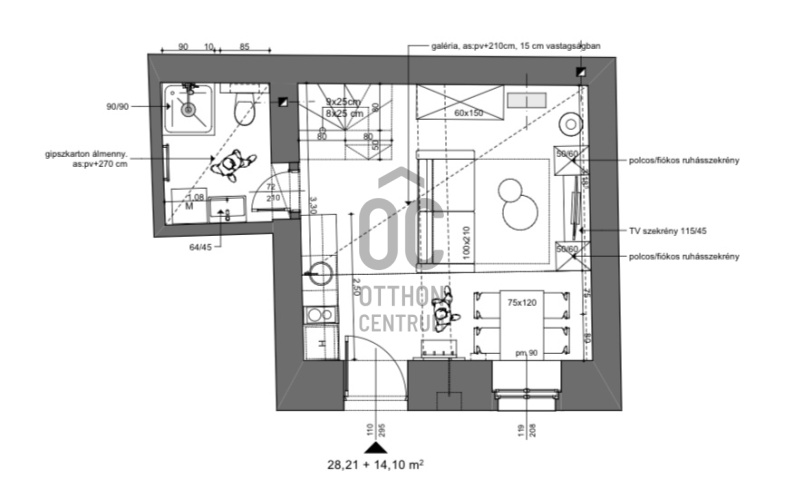
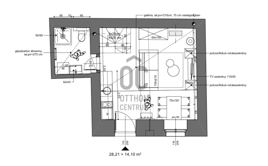
Az ingatlan ,28négyzetméteres alapterületével +18nm állógalériával, ideális választás egyedülállóknak vagy pároknak, akik egy kényelmes, mégis praktikus életteret keresnek a főváros vibráló központjában.
A tulajdoni lapon 28nm.
A lakás egy tágas szobával és egy jól felszerelt fürdőszobával rendelkezik, amely a modern életvitel minden igényét kielégíti.
A lakás állapota kiváló, így azonnal költözhető, a gázkonvektoros fűtés pedig biztosítja a kellemes hőmérsékletet a téli hónapokban is.
Az ingatlan elhelyezkedése páratlan, hiszen a Belváros kulturális és gazdasági központja közelében található, ahol számos étterem, kávézó és üzlet várja Önt.
A környék csendes, biztonságos, így ideális környezetet biztosít a mindennapokhoz.
A közlekedési lehetőségek rendkívül kedvezőek: a közeli tömegközlekedési csomópontoknak köszönhetően könnyedén elérheti Budapest bármely pontját. Legyen szó a metró, busz vagy villamos használatáról, a közlekedés zökkenőmentes és gyors, így Ön mindig időben érkezhet a munkahelyére vagy a szabadidős programjaira.
A lakás a belvárosban, az V. kerületben, a Podmaniczky tér, a Nyugati tér, Szent István Krt., Honvéd tér, bíróságok és minisztériumok közelében helyezkedik el, de a Kossuth tér a Parlament és a Westend is csak néhány percnyi sétára vannak.
BKK megállók a közelben
Villamos: 2,2B,23
Busz:5,7,8E,15,107,108E,110,112,133E
Metró:M1
Éjszakai:907,908,908,908A,956,973,973A
Ez a lakás nem csupán egy ingatlan, hanem egy lehetőség, hogy a főváros szívében élvezhesse a városi élet minden előnyét. A folyamatosan fejlődő környezete, a kulturális programok és a gazdasági lehetőségek teszik ezt a helyet rendkívül vonzóvá.
Befektetési potenciál:
➤Frekventált elhelyezkedés
➤Gyorsan kiadható
➤Értékálló, bármikor gyorsan eladható,
Ajánlom:
➤Fiatal pároknak, első lakás vásárlóknak
➤Egyetemistáknak, diákoknak
➤A befektetőknek is tiszta szívből ajánlom.
➤Az ingatlan1/1-es tulajdonban van, tehermentes, gyorsan birtokba vehető.
Egyedi igényekre szabott lakáshitelekkel állunk rendelkezésére.
Bankfüggetlen hitelcentrumunk az országban elérhető összes bank és hitelintézet ajánlatát versenyezteti az Ön számára díjmentesen.
Munkatársaink nagy szakmai tapasztalattal várják Önt az előre egyeztetett időpontban akár a normál munkaidő után is.
Bővebb információért és a megtekintéssel kapcsolatban hívjon bizalommal, munkaidő után vagy akár hétvégén
Az ingatlan ,28négyzetméteres alapterületével +18nm állógalériával, ideális választás egyedülállóknak vagy pároknak, akik egy kényelmes, mégis praktikus életteret keresnek a főváros vibráló központjában.
A tulajdoni lapon 28nm.
A lakás egy tágas szobával és egy jól felszerelt fürdőszobával rendelkezik, amely a modern életvitel minden igényét kielégíti.
A lakás állapota kiváló, így azonnal költözhető, a gázkonvektoros fűtés pedig biztosítja a kellemes hőmérsékletet a téli hónapokban is.
Az ingatlan elhelyezkedése páratlan, hiszen a Belváros kulturális és gazdasági központja közelében található, ahol számos étterem, kávézó és üzlet várja Önt.
A környék csendes, biztonságos, így ideális környezetet biztosít a mindennapokhoz.
A közlekedési lehetőségek rendkívül kedvezőek: a közeli tömegközlekedési csomópontoknak köszönhetően könnyedén elérheti Budapest bármely pontját. Legyen szó a metró, busz vagy villamos használatáról, a közlekedés zökkenőmentes és gyors, így Ön mindig időben érkezhet a munkahelyére vagy a szabadidős programjaira.
A lakás a belvárosban, az V. kerületben, a Podmaniczky tér, a Nyugati tér, Szent István Krt., Honvéd tér, bíróságok és minisztériumok közelében helyezkedik el, de a Kossuth tér a Parlament és a Westend is csak néhány percnyi sétára vannak.
BKK megállók a közelben
Villamos: 2,2B,23
Busz:5,7,8E,15,107,108E,110,112,133E
Metró:M1
Éjszakai:907,908,908,908A,956,973,973A
Ez a lakás nem csupán egy ingatlan, hanem egy lehetőség, hogy a főváros szívében élvezhesse a városi élet minden előnyét. A folyamatosan fejlődő környezete, a kulturális programok és a gazdasági lehetőségek teszik ezt a helyet rendkívül vonzóvá.
Befektetési potenciál:
➤Frekventált elhelyezkedés
➤Gyorsan kiadható
➤Értékálló, bármikor gyorsan eladható,
Ajánlom:
➤Fiatal pároknak, első lakás vásárlóknak
➤Egyetemistáknak, diákoknak
➤A befektetőknek is tiszta szívből ajánlom.
➤Az ingatlan1/1-es tulajdonban van, tehermentes, gyorsan birtokba vehető.
Egyedi igényekre szabott lakáshitelekkel állunk rendelkezésére.
Bankfüggetlen hitelcentrumunk az országban elérhető összes bank és hitelintézet ajánlatát versenyezteti az Ön számára díjmentesen.
Munkatársaink nagy szakmai tapasztalattal várják Önt az előre egyeztetett időpontban akár a normál munkaidő után is.
Bővebb információért és a megtekintéssel kapcsolatban hívjon bizalommal, munkaidő után vagy akár hétvégén
Registration Number
H506657
Property Details
Sales
for sale
Legal Status
used
Character
apartment
Construction Method
brick
Net Size
46 m²
Gross Size
46 m²
Heating
gas convector
Ceiling Height
500 cm
Number of Levels Within the Property
1
Orientation
North-East
Staircase Type
circular corridor
Condition
Excellent
Condition of Facade
Good
Condition of Staircase
Good
Basement
Shared
Neighborhood
quiet, good transport, central
Year of Construction
1940
Number of Bathrooms
1
Position
courtyard-facing
Water
Available
Gas
Available
Electricity
Available
Sewer
Available
Elevator
available
Distance to Waterfront
500 meters
Rooms
open-plan kitchen and living room
25 m²
bedroom
18 m²
Ruczek Krisztina
Credit Expert