800 000 Ft
2 080 €
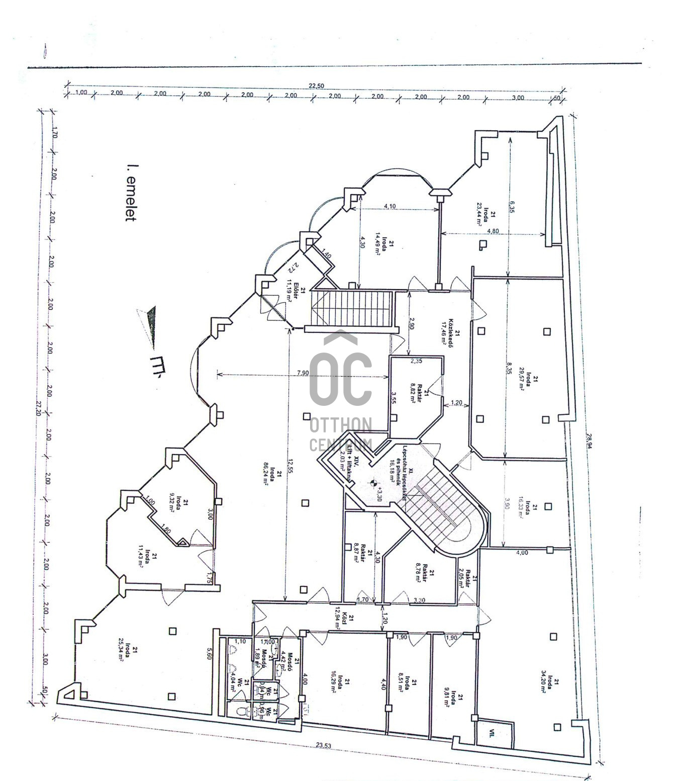
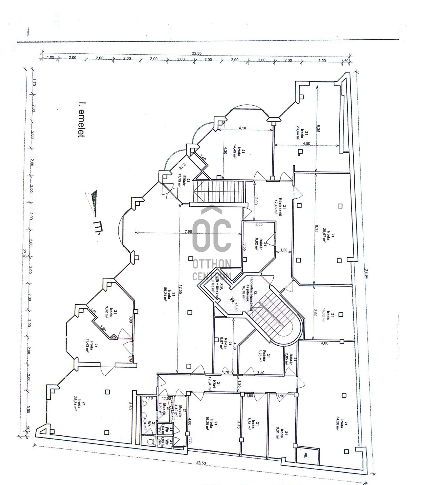
- 382m²
- 2. emelet
Kiadó iroda a Margit híd közelében Budán !
Teljes emelet, amely közvetlen utcai bejárattal rendelkezik. Az irodaként funkcionáló ingatlan központjában egy 80 m2-es, tanfolyamok, továbbképzések és előadások megtartására alkalmas tér van, amelyet körbevesznek a részben belső udvarra, részben az utca felé néző irodák,illetve kiszolgáló egységek. (konyha, mosdók, tároló, szerverszoba stb) Az épület pillérvázas szerkezetének köszönhetően a belső tér igény szerint alakítható.
A nagy ablakfelületek természetes fényt biztosítanak , illetve a 3 rétegű üvegezésnek köszönhetően kiváló a hang és hőszigetelés.
Az iroda fűtését kondenzációs gázkazán biztosítja. Valamennyi utcafronti helyiség klimatizált. Az ingatlan önálló mérőórákkal rendelkezik. Kaputelefon és központi riasztórendszer is kiépítésre került. Az irodákban a munkaállomásokhoz informatikai csatlakozás ki van építve.
Tömegközlekedés kiváló, több busz(86,160,260) és villamos (4-es,6-os) pár lépésre található. 2 villamosmegállónyira a Mammut bevásárlóközpont és a Millenáris Park, a Duna felé pedig a Margit híd sétatávolságban van . Parkolni a környező utcákban és az irodaház melletti teremgarázsban lehet.
Cégközpontnak, ügyfélközpontnak,irodának,oktatási központnak, bemutatóteremnek, vagy egészségügyi intézménynek egyaránt alkalmas, akár nagy ügyfélforgalom lebonyolításával is. Birtokbavétel Augusztustól lehetséges.
A bérleti díj nettó, plusz ÁFA értendő!!!
Ha költöztetné vállalkozását,érdemes mérlegelnie ezt a lehetőséget. További információkkal kapcsolatban várjuk megtisztelő érdeklődését!
A nagy ablakfelületek természetes fényt biztosítanak , illetve a 3 rétegű üvegezésnek köszönhetően kiváló a hang és hőszigetelés.
Az iroda fűtését kondenzációs gázkazán biztosítja. Valamennyi utcafronti helyiség klimatizált. Az ingatlan önálló mérőórákkal rendelkezik. Kaputelefon és központi riasztórendszer is kiépítésre került. Az irodákban a munkaállomásokhoz informatikai csatlakozás ki van építve.
Tömegközlekedés kiváló, több busz(86,160,260) és villamos (4-es,6-os) pár lépésre található. 2 villamosmegállónyira a Mammut bevásárlóközpont és a Millenáris Park, a Duna felé pedig a Margit híd sétatávolságban van . Parkolni a környező utcákban és az irodaház melletti teremgarázsban lehet.
Cégközpontnak, ügyfélközpontnak,irodának,oktatási központnak, bemutatóteremnek, vagy egészségügyi intézménynek egyaránt alkalmas, akár nagy ügyfélforgalom lebonyolításával is. Birtokbavétel Augusztustól lehetséges.
A bérleti díj nettó, plusz ÁFA értendő!!!
Ha költöztetné vállalkozását,érdemes mérlegelnie ezt a lehetőséget. További információkkal kapcsolatban várjuk megtisztelő érdeklődését!
Regisztrációs szám
UZ019403
Az ingatlan adatai
Értékesités
kiadó
Jogi státusz
használt
Jelleg
üzleti célú
Típus
épületrész
Építési mód
tégla
Méret
382 m²
Föld feletti nettó méret
382 m²
Belmagasság
300 cm
Panoráma
városi panoráma
Állapot
Jó
Homlokzat állapota
Jó
Lépcsőház állapota
Jó
Építés éve
1990
Közös költség
52096
Víz
Van
Gáz
Van
Villany
Van
Csatorna
Van
Lift
van
Vízpart távolsága
200 méterre
Lehetséges funkciók
iroda, bemutatóterem, egészségügyi központ, oktatási központ
Láthatóság
Nagy gyalogosforgalmú utcában jól látható
Megközelíthetőseg
Nagy gyalogosforgalmú utcára nyíló bejárat
Hasznosítás
bérbe adott
Havi bérleti díj
800000
Ruczek János
Hitelszakértő