Kiadó kereskedelmi ingatlan, UZ018551
Budapest XVI. kerület, Árpádföld

200 000 Ft

520 €

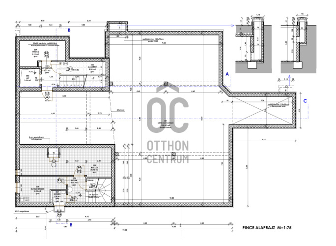
  • 204m²
  • alagsor

FORGALMAS, FREKVENTÁLT, MÉGIS CSENDES HELYEN, SZÁMOS KIHASZNÁLHATÓSÁGI LEHETŐSÉGGEL…

Hosszútávú bérletre kínálom, Árpádföld prémium elhelyezkedésű, jól megközelíthető részén,
egy 2005-ben épült, kitűnő állapotú kétszintes ház alagsori részében, egy légtérben található,
összesen 204 nm. hasznos alapterületű helyiséget, számos kihasználhatósági céllal.

Keressen bizalommal és találjuk meg közösen, a hirdetett helyiség legideálisabb kihasználhatóságának alapjait!

A tulajdonos nyitott a hosszútávú együttműködés esetén a közös - bérlő igényének megfelelő - gondolkodásra…

•Az ingatlan jelenlegi bérleti díja: 200 000 Ft / hó, plusz rezsi ktsg.
•2 havi kaució és az első havi bérleti díj megfizetésével kiadó…

Higgye el ezt érdemes Önnek is megtekintenie!

Hívjon nézzük meg együtt az ingatlant!

Regisztrációs szám

UZ018551

Az ingatlan adatai

Értékesités
kiadó
Jogi státusz
használt
Jelleg
üzleti célú
Típus
épületrész
Építési mód
tégla
Méret
204 m²
Föld feletti nettó méret
204 m²
Belmagasság
260 cm
Állapot
Átlagos
Homlokzat állapota
Kiváló
Lépcsőház állapota
Építés éve
2004
Víz
Van
Villany
Van
Csatorna
Van
Lift
van

 

Lehetséges funkciók
iroda, iroda és bemutatóterem, vagy üzlet, iroda és raktár, bemutatóterem, ipari csarnok vagy raktár, sportközpont, oktatási központ, egyéb
Megközelíthetőseg
Társasház udvaráról vagy lépcsőházból nyíló ingatlan
Hasznosítás
üres
Lueff Péter
Lueff Péter

Hitelszakértő

Irodánk kínálatából - XVI. kerület - Veres Péter út 63.

for sale panel apartment

Index image
data_sheet.details.realestate.section.main.otthonstart_flag.label
25

for sale semi-detached house

Index image
data_sheet.details.realestate.section.main.otthonstart_flag.label
50

for sale family house

Index image
39

for sale semi-detached house

Index image
data_sheet.details.realestate.section.main.otthonstart_flag.label
28

for sale apartment

Index image
data_sheet.details.realestate.section.main.otthonstart_flag.label
20

for sale family house

Index image
data_sheet.details.realestate.section.main.otthonstart_flag.label
32