Elérhető Otthon Start hitellel
Eladó újépítésű ikerház, U0049115
Debrecen, Alsó-Józsa

134 900 000 Ft

352 000 €

  • 111,5m²
  • 4 szoba

In Alsó Józsa, a new 4-room family house awaits you; you just need to move in!

Attention young adults! We are offering for sale a new, modern house in the most sought-after area of Debrecen, in Alsó-Józsa, which could be the perfect choice for your first home. - 3 separate rooms, each with its own bathroom - The dining room, kitchen, and living room have access to the terrace and garden - Bathroom with a toilet, shower, and a bathtub can also be installed - Heating is provided by a heat pump, and cooling is ensured by an integrated split air conditioning system / H tariff / - 30 m² of storage space has been created in the attic - The garage is 18 m², equipped with an electric Hörmann gate and an electric car charger - The walls have 15 cm of graphite insulation - The ceiling has 30 cm of rock wool The external windows and doors are Schüco triple-glazed, in an anthracite color inside and out There is plenty of room for built-in wardrobes Irrigation water has been installed in the yard Nearby are a school, kindergarten, nursery, shop, and bus stop. If this exceptional property has piqued your interest, please feel free to contact us.

Regisztrációs szám

U0049115

Az ingatlan adatai

Értékesités
eladó
Jogi státusz
új
Jelleg
ház
Építési mód
tégla
Méret
111,5 m²
Bruttó méret
134,4 m²
Telek méret
433 m²
Terasz / erkély mérete
16 m²
Fűtés
hőszivattyú
Belmagasság
270 cm
Tájolás
Dél
Panoráma
Zöldre néző panoráma
Állapot
Kiváló
Homlokzat állapota
Kiváló
Környék
csendes, jó közlekedés, zöld
Építés éve
2025
Fürdőszobák száma
2
Garázs
Benne van az árban
Garázs férőhely
1
Víz
Van
Villany
Van
Csatorna
Van

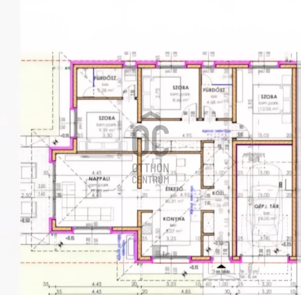
Helyiségek

konyha-étkező
19.1 m²
nappali
17.8 m²
szoba
12.5 m²
szoba
8.66 m²
szoba
9.39 m²
fürdőszoba-wc
5.28 m²
fürdőszoba-wc
4.68 m²
előszoba
3.87 m²
közlekedő
12.63 m²
garázs
18 m²
Plébán László
Plébán László

Hitelszakértő

Irodánk kínálatából - Debrecen - Hatvan utca

eladó családi ház

Index image
Elérhető Otthon Start hitellel
14

eladó családi ház

Index image
31

eladó családi ház

Index image
Elérhető Otthon Start hitellel
10

eladó családi ház

Index image
9

eladó ikerház

Index image
Elérhető Otthon Start hitellel
22