135 000 000 Ft
348 000 €
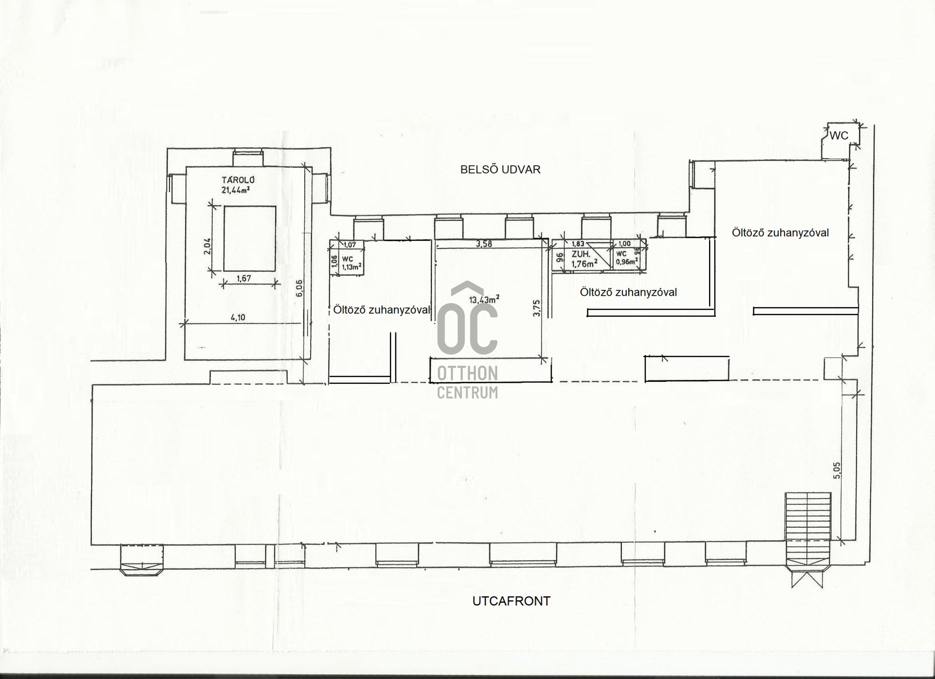
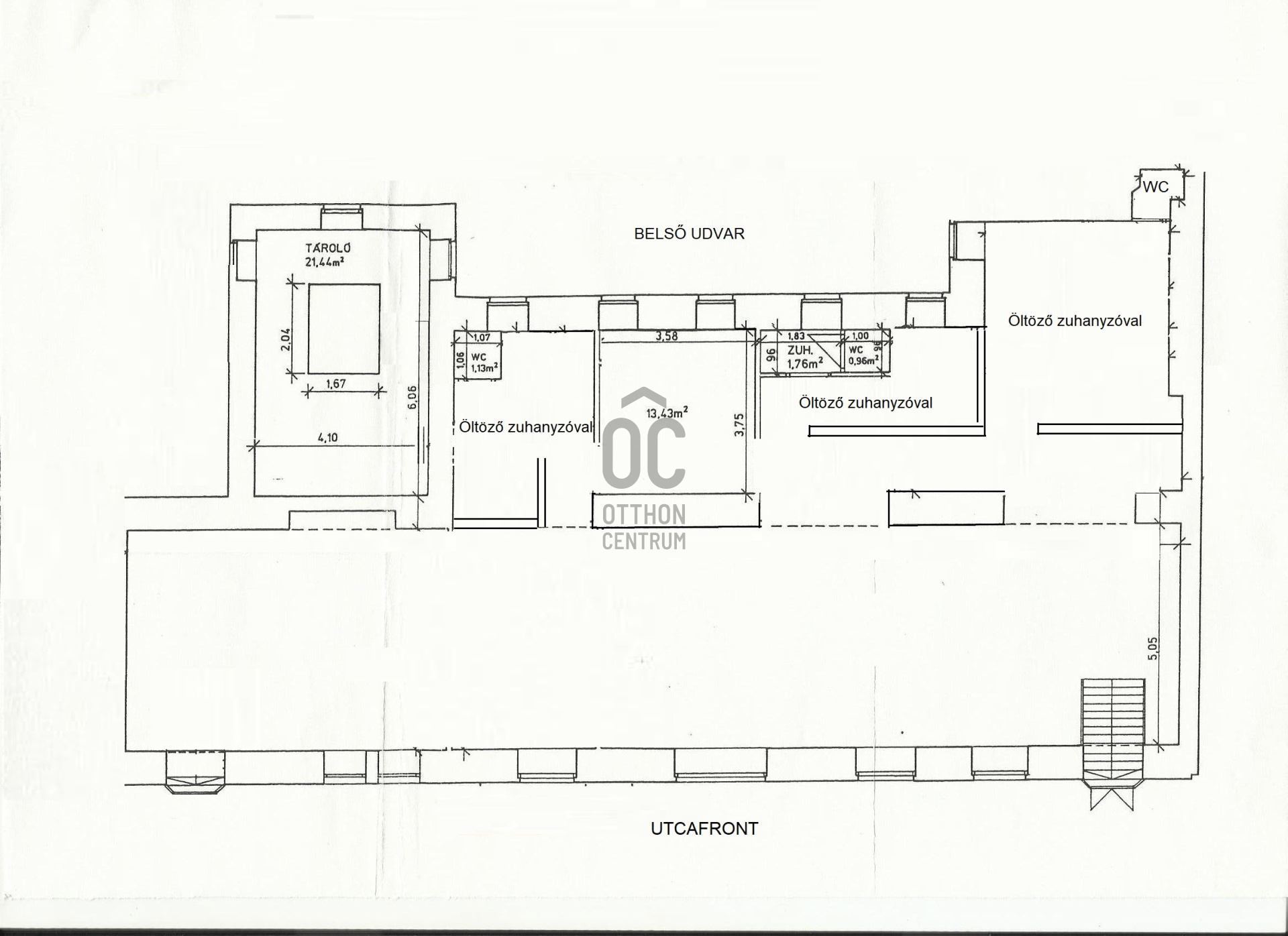
- 213m²











Eladó Terézváros szívében, egy 213 m²-es félszuterén üzlethelyiség, amelyet Heidlberr Vilmos által tervezett, szecessziós bérházban találunk.
Az ingatlan 2017-ben teljes körű felújításon esett át:
kicserélték a nyílászárókat, víz- és villanyvezetékeket, megújult a gázkazán, a csatornarendszer, valamint a burkolatok.
Ezen felül automata, hőcserélős szellőztető rendszer került beépítésre.
A nettó 110 m²-es, tágas egyterű edzőterem mellett öltözők, mosdók és mellékhelyiségek biztosítják a kényelmet.
Az üzlet előtt parkolási lehetőség adott, valamint frissen felújított zöldfelület is található.
Az utcáról közvetlenül, kényelmesen megközelíthető, és valójában két utcai bejárattal rendelkezik,
jelenleg csak az egyik használatos, de a másik is könnyedén újra megnyitható.
Közlekedése kiváló, a város minden pontjáról könnyen elérhető (Kodály Körönd, Andrássy út, Hunyadi tér).
Az ingatlan 2017-ben teljes körű felújításon esett át:
kicserélték a nyílászárókat, víz- és villanyvezetékeket, megújult a gázkazán, a csatornarendszer, valamint a burkolatok.
Ezen felül automata, hőcserélős szellőztető rendszer került beépítésre.
A nettó 110 m²-es, tágas egyterű edzőterem mellett öltözők, mosdók és mellékhelyiségek biztosítják a kényelmet.
Az üzlet előtt parkolási lehetőség adott, valamint frissen felújított zöldfelület is található.
Az utcáról közvetlenül, kényelmesen megközelíthető, és valójában két utcai bejárattal rendelkezik,
jelenleg csak az egyik használatos, de a másik is könnyedén újra megnyitható.
Közlekedése kiváló, a város minden pontjáról könnyen elérhető (Kodály Körönd, Andrássy út, Hunyadi tér).
Regisztrációs szám
TA20696
Az ingatlan adatai
Értékesités
eladó
Jogi státusz
használt
Jelleg
üzleti célú
Típus
épületrész
Építési mód
tégla
Méret
213 m²
Föld feletti nettó méret
1 m²
Belmagasság
300 cm
Állapot
Jó
Homlokzat állapota
Jó
Lépcsőház állapota
Jó
Víz
Van
Gáz
Van
Villany
Van
Csatorna
Van
Hasznosítás
tulajdosnos használja

Németh István
Hitelszakértő