1 230 096 000 Ft
3 165 000 €
- 102 508m²
FEJLESZTÉSI TELEK VÁCRÁTÓTON ELADÓ! Jelenleg a közművesítés zajlik!
Vácrátót község Pest megyében, a Váci járásban,az Alföld északi részén található Veresegyházi-medencében fekszik.
Övezeti besorolás: Gksz 1- kereskedelmi szolgáltató gazdasági terület
Beépítési mód: szabadonálló
Maximális beépíthetőség:30%
Minimális telekméret: 4000m2
Építménymagasság: 4-15 méter
AZ ÁR AZ ÉPPEN AKTUÁLISAN ZAJLÓ KÖZMŰFEJLESZTÉSEK FÜGGVÉNYÉBEN VÁLTOZHAT!
1 hektáros tömbönként szeretné eladni a tulajdonos
Új szabályozási terv elfogadása van folyamatban.
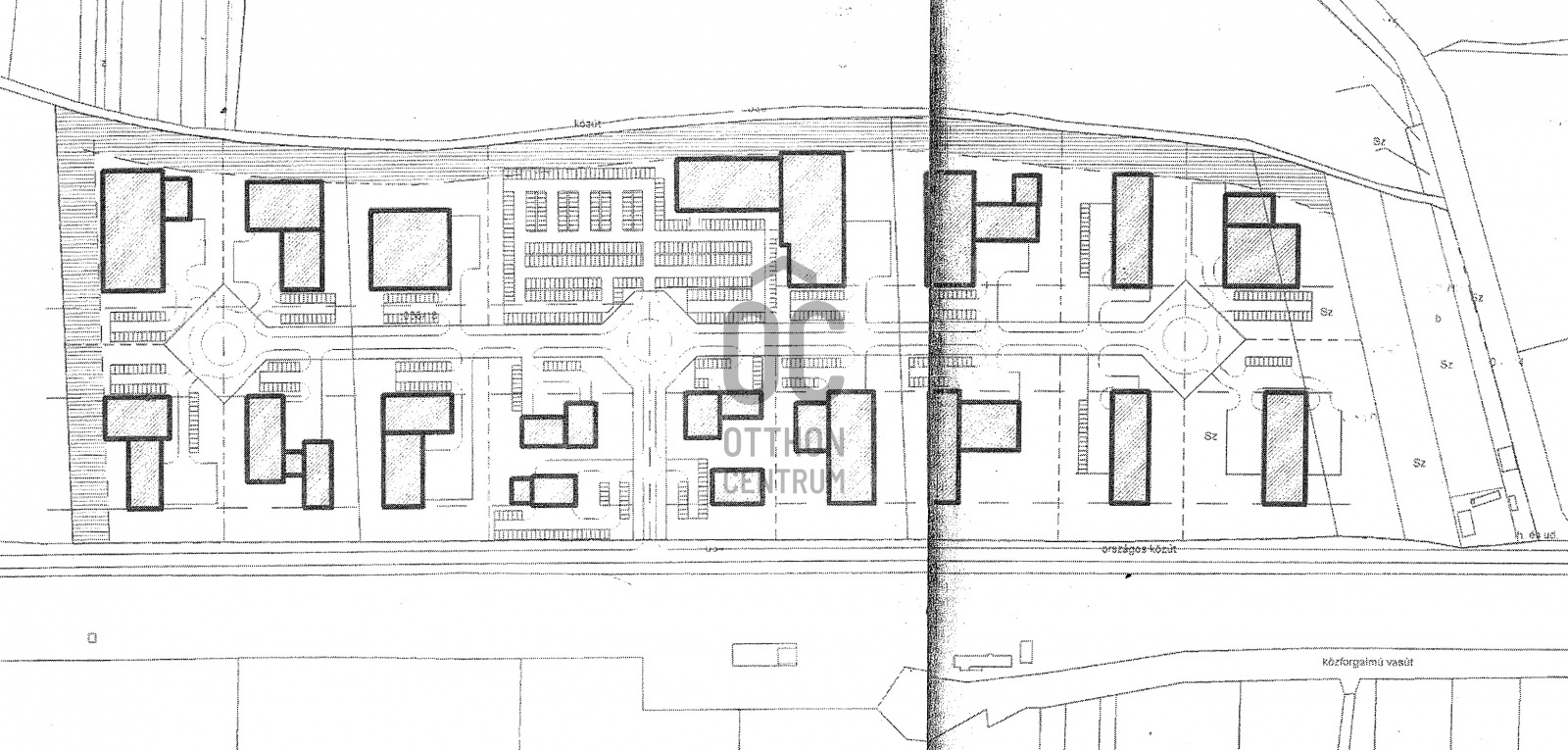
A jelenlegi szabályozás szerint belső feltáró út kialakítása szükséges amely lehetővé tenné a terület akár 25 telekre való felosztását.
Mindemellett az önkormányzat partner lenne abban is, hogy a feltáró út kikerüljön az építési szabályozásból és a terület egyben lenne hasznosítva, ily módon munkahelyteremtő beruházás valósulna meg.
Vácrátót község Pest megyében, a Váci járásban,az Alföld északi részén található Veresegyházi-medencében fekszik.
Övezeti besorolás: Gksz 1- kereskedelmi szolgáltató gazdasági terület
Beépítési mód: szabadonálló
Maximális beépíthetőség:30%
Minimális telekméret: 4000m2
Építménymagasság: 4-15 méter
AZ ÁR AZ ÉPPEN AKTUÁLISAN ZAJLÓ KÖZMŰFEJLESZTÉSEK FÜGGVÉNYÉBEN VÁLTOZHAT!
1 hektáros tömbönként szeretné eladni a tulajdonos
Új szabályozási terv elfogadása van folyamatban.
A jelenlegi szabályozás szerint belső feltáró út kialakítása szükséges amely lehetővé tenné a terület akár 25 telekre való felosztását.
Mindemellett az önkormányzat partner lenne abban is, hogy a feltáró út kikerüljön az építési szabályozásból és a terület egyben lenne hasznosítva, ily módon munkahelyteremtő beruházás valósulna meg.
Regisztrációs szám
T021267
Az ingatlan adatai
Értékesités
eladó
Jogi státusz
használt
Jelleg
telek
Típus
Fejlsztési célú telek
Övezet
ipari-gazdasági övezet
Méret
102 508 m²
Bruttó méret
102 508 m²
Telek méret
102 508 m²
Fürdőszobák száma
1
Víz
Utcán
Gáz
Utcán
Villany
Utcán
Csatorna
Utcán
Építhető ingatlan típusa
Ipari csarnok, vagy raktár