195 000 000 Ft
502 000 €
- 200m²
- 5 szoba
HATALMAS TEREKKEL RENDELKEZŐ, ÖNÁLLÓ CSALÁDI HÁZ PESTERZSÉBETEN
Az ingatlanpiacon keres befektetési lehetőséget, vagy akár egy nagy terekkel rendelkező családi otthont, amely nemcsak értéket képvisel, hanem hosszú távú, biztos jövedelmet is nyújthat? Figyelmébe ajánlom ezt a kiváló állapotú családi házat Budapest 20. kerületének csendes és rendezett részén, ahol a nyugalom és a biztonság találkozik a modern életstílussal. Az ingatlan alapterülete 200 négyzetméter, míg a telek mérete 361 négyzetméter, így bőséges teret biztosít a családi élethez vagy akár a bérbeadás lehetőségéhez. A házban öt szoba található, melyek közül a tágas nappali a középponti helyet foglalja el, ideális a családi összejövetelekhez vagy baráti találkozókhoz. A világos, napfényes helyiségek és a konyhaszigetes amerikai konyha modern életszemléletet tükröznek, míg a kandalló kellemes hangulatot varázsol a hűvösebb estéken. A két fürdőszoba praktikus megoldást kínál, így a család minden tagja kényelmesen elfér, és a mindennapi rutinok zökkenőmentesen zajlanak. A terasz elegendő méretű ahhoz, hogy kellemesen tölthesse szabadidejét, miközben a rendezett kert szépségeit élvezi.
Bővebben az ingatlanról:
- 2 éve felújításon esett át
- kétszintes ingatlan
- fűtéséről gázkazán gondoskodik
- műanyag hő-, és hangszigetelt nyílászárók redőnnyel
- a földszinten hatalmas amerikai konyhás nappali
- az emeleten nappali + 3 tágas szoba fürdővel
- 3 db inverteres klíma az emeleti szobákban
- parkolni garázsban illetve a kertben is lehet
- szigetelt homlokzat
Az ingatlan tehermentes, így azonnal birtokba vehető.
A környék kitűnő közlekedési lehetőségekkel rendelkezik, így a város többi része könnyen megközelíthető, legyen szó autós vagy tömegközlekedési módról. Az ingatlan környezetében található üzletek, iskolák és közintézmények mind hozzájárulnak a környék vonzerejéhez, így Ön és családja minden szükséges szolgáltatást könnyedén elérhet. Ez a kivételes ingatlan nemcsak egy otthon, hanem egy lehetőség is a jövőre nézve. Ha felkeltettem érdeklődését, kérem, ne habozzon kapcsolatba lépni velem. Bizalommal kereshet kérdéseivel, és szívesen segítek Önnek megtalálni a legjobb befektetési lehetőséget. Ne hagyja ki ezt a remek alkalmat, hogy egy kiváló ingatlan birtokosa legyen!
Hívjon a hét bármely napján!
Az ingatlanpiacon keres befektetési lehetőséget, vagy akár egy nagy terekkel rendelkező családi otthont, amely nemcsak értéket képvisel, hanem hosszú távú, biztos jövedelmet is nyújthat? Figyelmébe ajánlom ezt a kiváló állapotú családi házat Budapest 20. kerületének csendes és rendezett részén, ahol a nyugalom és a biztonság találkozik a modern életstílussal. Az ingatlan alapterülete 200 négyzetméter, míg a telek mérete 361 négyzetméter, így bőséges teret biztosít a családi élethez vagy akár a bérbeadás lehetőségéhez. A házban öt szoba található, melyek közül a tágas nappali a középponti helyet foglalja el, ideális a családi összejövetelekhez vagy baráti találkozókhoz. A világos, napfényes helyiségek és a konyhaszigetes amerikai konyha modern életszemléletet tükröznek, míg a kandalló kellemes hangulatot varázsol a hűvösebb estéken. A két fürdőszoba praktikus megoldást kínál, így a család minden tagja kényelmesen elfér, és a mindennapi rutinok zökkenőmentesen zajlanak. A terasz elegendő méretű ahhoz, hogy kellemesen tölthesse szabadidejét, miközben a rendezett kert szépségeit élvezi.
Bővebben az ingatlanról:
- 2 éve felújításon esett át
- kétszintes ingatlan
- fűtéséről gázkazán gondoskodik
- műanyag hő-, és hangszigetelt nyílászárók redőnnyel
- a földszinten hatalmas amerikai konyhás nappali
- az emeleten nappali + 3 tágas szoba fürdővel
- 3 db inverteres klíma az emeleti szobákban
- parkolni garázsban illetve a kertben is lehet
- szigetelt homlokzat
Az ingatlan tehermentes, így azonnal birtokba vehető.
A környék kitűnő közlekedési lehetőségekkel rendelkezik, így a város többi része könnyen megközelíthető, legyen szó autós vagy tömegközlekedési módról. Az ingatlan környezetében található üzletek, iskolák és közintézmények mind hozzájárulnak a környék vonzerejéhez, így Ön és családja minden szükséges szolgáltatást könnyedén elérhet. Ez a kivételes ingatlan nemcsak egy otthon, hanem egy lehetőség is a jövőre nézve. Ha felkeltettem érdeklődését, kérem, ne habozzon kapcsolatba lépni velem. Bizalommal kereshet kérdéseivel, és szívesen segítek Önnek megtalálni a legjobb befektetési lehetőséget. Ne hagyja ki ezt a remek alkalmat, hogy egy kiváló ingatlan birtokosa legyen!
Hívjon a hét bármely napján!
Regisztrációs szám
H515791
Az ingatlan adatai
Értékesités
eladó
Jogi státusz
használt
Jelleg
ház
Építési mód
tégla
Méret
200 m²
Bruttó méret
250 m²
Telek méret
361 m²
Terasz / erkély mérete
15 m²
Fűtés
gáz kazán
Belmagasság
285 cm
Lakáson belüli szintszám
2
Tájolás
Észak-nyugat
Állapot
Kiváló
Homlokzat állapota
Kiváló
Környék
csendes, jó közlekedés
Építés éve
1996
Fürdőszobák száma
2
Garázs
Benne van az árban
Garázs férőhely
1
Víz
Van
Gáz
Van
Villany
Van
Csatorna
Van
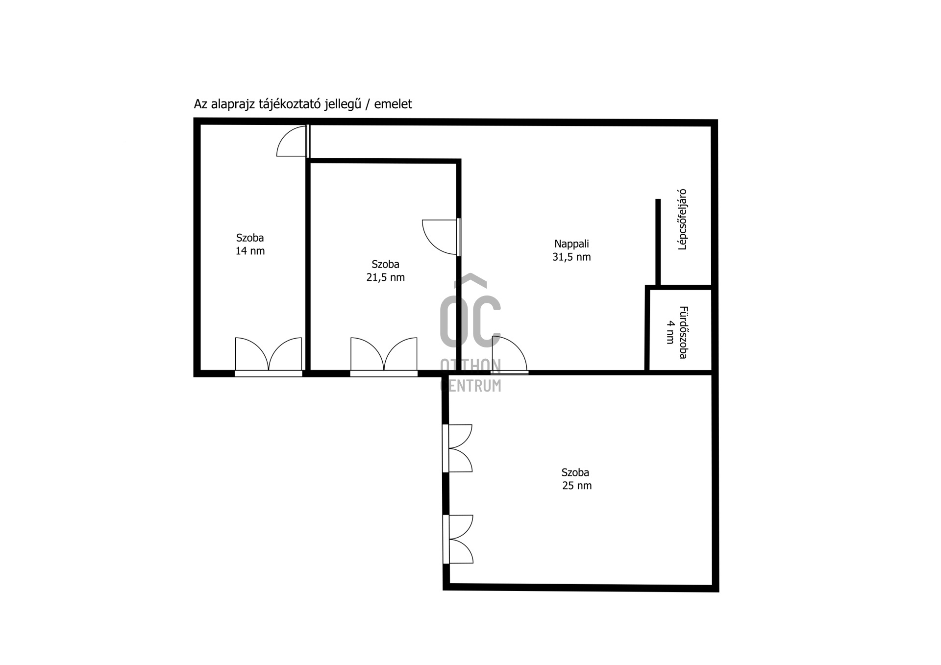
Helyiségek
nappali-konyha
70 m²
szoba
24.5 m²
szoba
14 m²
szoba
21.5 m²
nappali
31.5 m²
fürdőszoba-wc
13 m²
fürdőszoba-wc
4 m²
előszoba
6 m²
kazánház
6 m²
közlekedő
3.5 m²
lépcsőház
5 m²
Samu Györgyné
Hitelszakértő