104 000 000 Ft
276 000 €
- 40m²
- 1 szoba
- 7. emelet
Szuper kislakás a belvárosban
Képzeld el, hogy valaki jobbat tervezett mint amit kitalálnál. Minden új, minden szép és minden készen van. Csak arra vár, hogy birtokba vedd. Tévedsz ha azt gondolod, hogy eladásra készült, akkor nem költöttek volna rá ennyit. Da van olyan, hogy az élet másként alakul,és ez teremti a különleges lehetőségeket.
Lehet hogy Te leszel az, akinek 40 m2-en is van elegendő tárolóhelye? Akinek egyedi tervek alapján készült bútorai lesznek? Aki érzi hogy az egész lakását körülöleli az ergonómia,a színek harmóniája és a kényelem. Ahová jó megérkezni , de ha elmész otthonról, akkor is minden közel van. A Dunapart, a bevásárlás, a közlekedés, vagy a szórakozás.
És mindezt egy liftes, rendezett ház 7. emeletén találod, ahol a magasság csendet, fényt és egy kis plusz panorámát is jelent. A lakás így nemcsak komfortos, hanem kimondottan kellemes hangulatú .
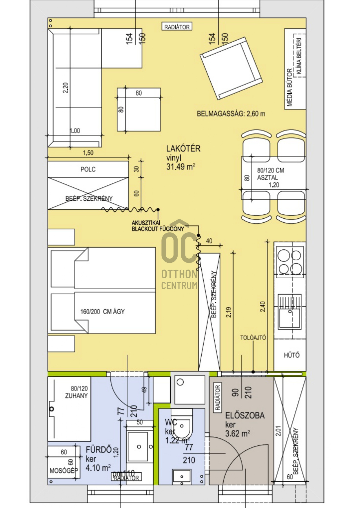
Az előszobába lépve hatalmas tükrös gardrob fogad, ami nemcsak befogad minden kabátot és cipőt, hanem tágas térérzetet ad mindjárt a megérkezéskor. Balra a mosdó aminek hangulatos design csempéje üde színeket ad a helyiségnek. Szemben tovább haladva a gépesített konyhába érkezünk , amely az egész lakás egyedileg gyártott bútoraihoz hasonlóan törtfehér és finom zöld színekben lett kialakítva. A lakás tulajdonképpen egyterű, de a belsőépítész által tervezett bútorok körbehatárolják a konyhát, illetve egy hálószobát, ahol a hatalmas, 180 cm széles kényelmes ágy kapott helyet. A hálóból nyílik a zuhanyzós és ablakos fürdőszoba , ahol mosó-szárítógép is helyet kapott, melynek segítségével nem kell a lakásban ruhaszárítót kerülgetni. Aki már lakott kis lakásban, tudja milyen fontos ez.
A nappaliban kényelmes kanapé, led világításos könyvespolc, melynek hátsó oldala a háló gardróbja , és kényelmes méretű étkezőasztal kapott helyet.
A lakás klimatizált.A közös költség mindössze 28.000 Ft, amely magában foglalja a fűtést, valamint a hideg- és melegvíz-fogyasztást is.
A vételár a teljes berendezést , és a háztartási gépeket is tartalmazza.
Ha a belvárosba költöznél, vagy csak kell egy hely a belvárosban is, amivel nincs gond, ami mindenben a kényelmedre törekszik és ahová tényleg csak a bőröndödet kell hozni,hívj és nézzük meg együtt!
Lehet hogy Te leszel az, akinek 40 m2-en is van elegendő tárolóhelye? Akinek egyedi tervek alapján készült bútorai lesznek? Aki érzi hogy az egész lakását körülöleli az ergonómia,a színek harmóniája és a kényelem. Ahová jó megérkezni , de ha elmész otthonról, akkor is minden közel van. A Dunapart, a bevásárlás, a közlekedés, vagy a szórakozás.
És mindezt egy liftes, rendezett ház 7. emeletén találod, ahol a magasság csendet, fényt és egy kis plusz panorámát is jelent. A lakás így nemcsak komfortos, hanem kimondottan kellemes hangulatú .
Az előszobába lépve hatalmas tükrös gardrob fogad, ami nemcsak befogad minden kabátot és cipőt, hanem tágas térérzetet ad mindjárt a megérkezéskor. Balra a mosdó aminek hangulatos design csempéje üde színeket ad a helyiségnek. Szemben tovább haladva a gépesített konyhába érkezünk , amely az egész lakás egyedileg gyártott bútoraihoz hasonlóan törtfehér és finom zöld színekben lett kialakítva. A lakás tulajdonképpen egyterű, de a belsőépítész által tervezett bútorok körbehatárolják a konyhát, illetve egy hálószobát, ahol a hatalmas, 180 cm széles kényelmes ágy kapott helyet. A hálóból nyílik a zuhanyzós és ablakos fürdőszoba , ahol mosó-szárítógép is helyet kapott, melynek segítségével nem kell a lakásban ruhaszárítót kerülgetni. Aki már lakott kis lakásban, tudja milyen fontos ez.
A nappaliban kényelmes kanapé, led világításos könyvespolc, melynek hátsó oldala a háló gardróbja , és kényelmes méretű étkezőasztal kapott helyet.
A lakás klimatizált.A közös költség mindössze 28.000 Ft, amely magában foglalja a fűtést, valamint a hideg- és melegvíz-fogyasztást is.
A vételár a teljes berendezést , és a háztartási gépeket is tartalmazza.
Ha a belvárosba költöznél, vagy csak kell egy hely a belvárosban is, amivel nincs gond, ami mindenben a kényelmedre törekszik és ahová tényleg csak a bőröndödet kell hozni,hívj és nézzük meg együtt!
Regisztrációs szám
H510986
Az ingatlan adatai
Értékesités
eladó
Jogi státusz
használt
Jelleg
lakás
Építési mód
tégla
Méret
40 m²
Bruttó méret
40 m²
Fűtés
mérés nélküli, központi fűtés
Belmagasság
260 cm
Lakáson belüli szintszám
1
Tájolás
Dél-nyugat
Lépcsőház típusa
körfolyosó
Állapot
Kiváló
Homlokzat állapota
Jó
Lépcsőház állapota
Jó
Környék
központi
Építés éve
1980
Fürdőszobák száma
1
Fekvés
udvari
Közös költség
28000
Víz
Van
Gáz
Van
Villany
Van
Csatorna
Van
Helyiségek
szoba
31.49 m²
fürdőszoba
4.1 m²
wc
1.22 m²
előszoba
2.62 m²
Ruczek János
Hitelszakértő