Elérhető Otthon Start hitellel
Eladó családi ház,
H510570
Piliscsaba, Szállás
150 000 000 Ft
399 000 €
- 132m²
- 7 szoba
PILISCSABA településen, felújított, korszerűsített, 1993-ban épült két szintes családi ház eladó!
TELEK:
-885 nm
- nyugati fekvésű
- különleges hangulatú, sík terület
- ápolt, kert
- nyugati fekvésű
- panorámás
- külön kialakított terasz az étkezésre, a napozásra, családi összejövetelekre
-kút
- esővíz gyűjtő ( 15 ezer liter )
- két darab magaságyás
- verem ( mobil pince)
- körbe kerített
CSALÁDI HÁZ
- 1993-ben épült
- egyedi tervezés alapján
- tégla építésű
- egész nap körbe süti a nap
- nappali keleti fekvésű
- különleges egyedi hangulat, igazi otthon
- belső két szintes
- felső tetőtérben a fürdőszoba, három hálószoba lett kialakítva.
- két kisebb szobából kis erkélyre tudunk kimenni, mely nyugati fekvésű
- fürdőszoba világos, felújított.
- a fűtés gázkazánnal megoldott
- nappaliban egy csodálatos cserépkályha, melyre rá van kötve a padlófűtés
- belmagasság a házban 260cm
- konyha-étkező tágas, itt juthatunk a nyugati fekvésű teraszra
- a konyha-étkezőben elektromos padlófűtést tettek le az elmúlt években
- tudatos tervezéssel, szinteltolással lett kialakítva a nappali-konyha-étkező
- padlófűtés konyhai részen elektromos, nappaliban a kandallóra rákötve
- 10 cm szigetelés
- napelem ( 10kwp)
- hálószoba csendes, világos kertre néz
- folyamatos felújítás , korszerűsítés 2014 óta
- víz és elektromos vezetékek a falban teljes körűen ki lettek cserélve
KÖRNYEZET:
- csendes, környék, jó lakóközösség
- tömegközlekedés, vasúti csatlakozás kb 6 percre
- Óvoda, bölcsőde néhány utcára, iskola séta távolságban
- bevásárlási lehetőség néhány utcára
- Előre láthatólag az utca 2026-os évben szilárd burkolatot kap, melyet az Önkormányzat segítségével újítanak fel a tulajdonosok. ( 354 840 Ft önrészt kell befizetni az Önkormányzatnak, melyet havi bontásban, részletre is lehet fizetni)
TELEK:
-885 nm
- nyugati fekvésű
- különleges hangulatú, sík terület
- ápolt, kert
- nyugati fekvésű
- panorámás
- külön kialakított terasz az étkezésre, a napozásra, családi összejövetelekre
-kút
- esővíz gyűjtő ( 15 ezer liter )
- két darab magaságyás
- verem ( mobil pince)
- körbe kerített
CSALÁDI HÁZ
- 1993-ben épült
- egyedi tervezés alapján
- tégla építésű
- egész nap körbe süti a nap
- nappali keleti fekvésű
- különleges egyedi hangulat, igazi otthon
- belső két szintes
- felső tetőtérben a fürdőszoba, három hálószoba lett kialakítva.
- két kisebb szobából kis erkélyre tudunk kimenni, mely nyugati fekvésű
- fürdőszoba világos, felújított.
- a fűtés gázkazánnal megoldott
- nappaliban egy csodálatos cserépkályha, melyre rá van kötve a padlófűtés
- belmagasság a házban 260cm
- konyha-étkező tágas, itt juthatunk a nyugati fekvésű teraszra
- a konyha-étkezőben elektromos padlófűtést tettek le az elmúlt években
- tudatos tervezéssel, szinteltolással lett kialakítva a nappali-konyha-étkező
- padlófűtés konyhai részen elektromos, nappaliban a kandallóra rákötve
- 10 cm szigetelés
- napelem ( 10kwp)
- hálószoba csendes, világos kertre néz
- folyamatos felújítás , korszerűsítés 2014 óta
- víz és elektromos vezetékek a falban teljes körűen ki lettek cserélve
KÖRNYEZET:
- csendes, környék, jó lakóközösség
- tömegközlekedés, vasúti csatlakozás kb 6 percre
- Óvoda, bölcsőde néhány utcára, iskola séta távolságban
- bevásárlási lehetőség néhány utcára
- Előre láthatólag az utca 2026-os évben szilárd burkolatot kap, melyet az Önkormányzat segítségével újítanak fel a tulajdonosok. ( 354 840 Ft önrészt kell befizetni az Önkormányzatnak, melyet havi bontásban, részletre is lehet fizetni)
Regisztrációs szám
H510570
Az ingatlan adatai
Értékesités
eladó
Jogi státusz
használt
Jelleg
ház
Építési mód
tégla
Méret
132 m²
Bruttó méret
144,1 m²
Telek méret
885 m²
Fűtés
Gáz cirkó
Belmagasság
270 cm
Lakáson belüli szintszám
2
Tájolás
Kelet
Állapot
Jó
Homlokzat állapota
Jó
Pince
Önálló
Környék
csendes, jó közlekedés, zöld
Építés éve
1993
Fürdőszobák száma
2
Társaház kert
igen
Garázs
Benne van az árban
Garázs férőhely
1
Víz
Van
Gáz
Van
Villany
Van
Csatorna
Van
Tároló
Önálló
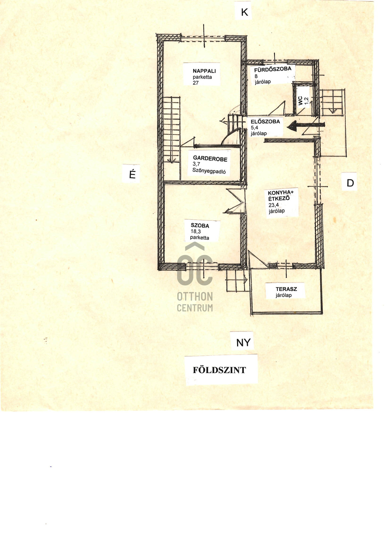
Helyiségek
előszoba
5.4 m²
wc
1.2 m²
konyha-étkező
23.23 m²
fürdőszoba
8 m²
nappali
27 m²
garázs
23.44 m²
terasz
10.08 m²
közlekedő
6 m²
lépcsőház
3.78 m²
fürdőszoba
6.4 m²
fürdőszoba-wc
7.56 m²
szoba
10.8 m²
szoba
10.93 m²
hálószoba
11.6 m²
hálószoba
18.3 m²
Korcsog Melinda
Hitelszakértő