Elérhető Otthon Start hitellel
Eladó lakás,
H507979
Kerepes
26 900 000 Ft
70 000 €
- 45m²
- 2 szoba
- földszint











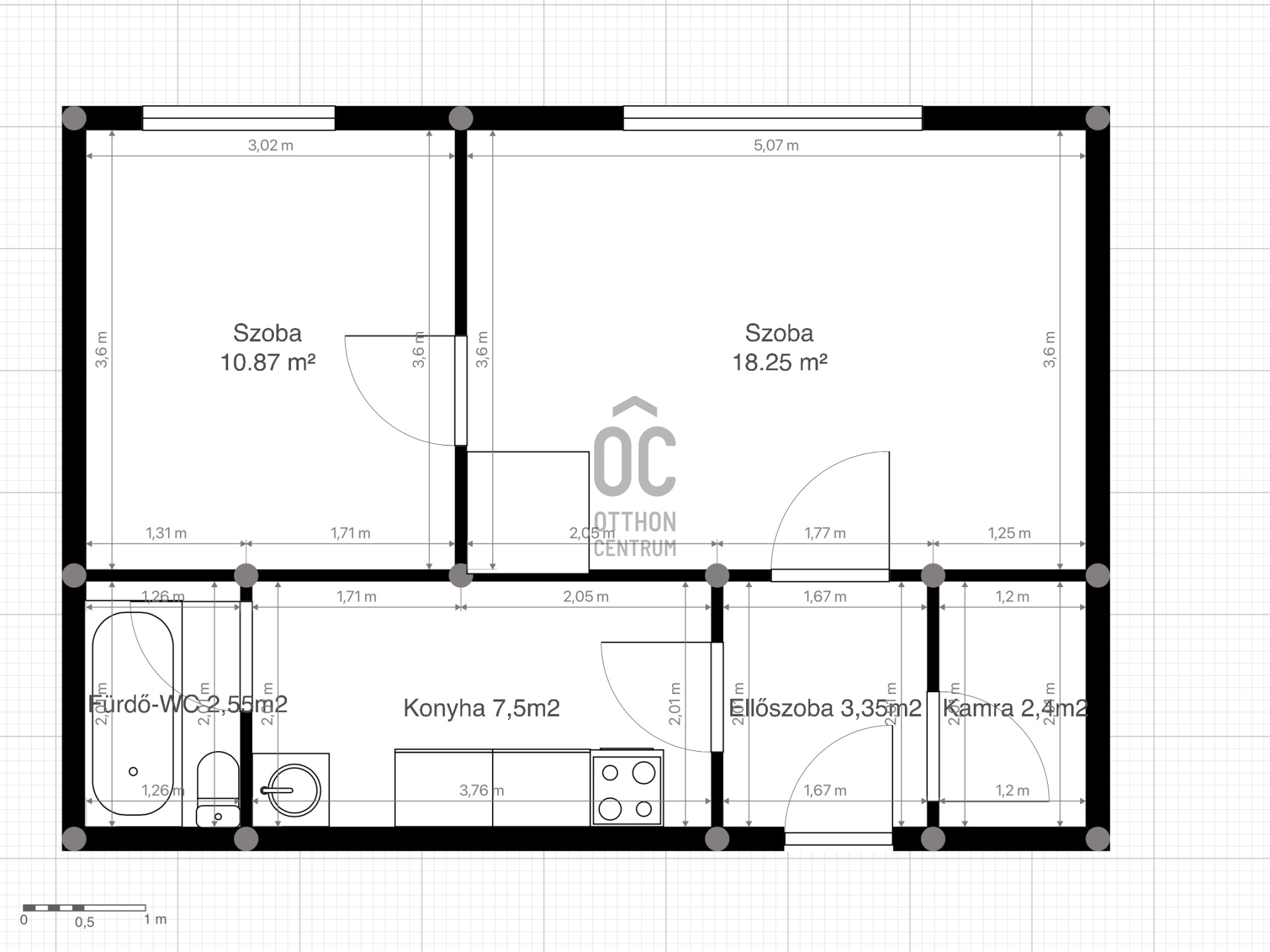
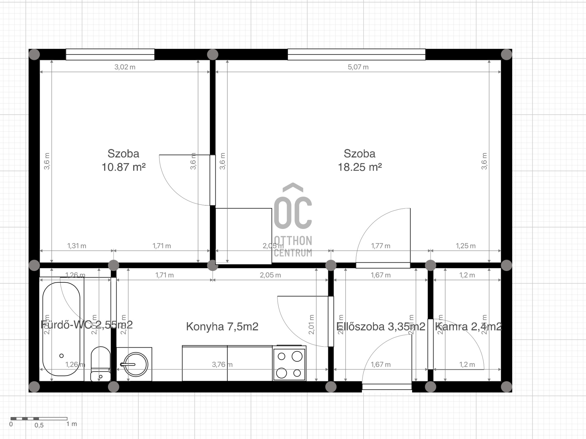
Eladó 2 szobás, 45 m²-es lakás Kerepesen, kiváló közlekedéssel
Kerepes központi részén, egy 3 lakásos társasházban eladó egy felújítandó, 45 m²-es, 2 szobás lakás.
Az ingatlan tégla falazattal, cserép héjazattal épült, fa nyílászárókkal rendelkezik. A fűtést cserépkályha biztosítja.
A lakáshoz tartozik pince és tároló.
A közelben: Aldi, dohánybolt, HÉV megálló.
Remek lehetőség azoknak, akik saját ízlésük szerint alakítanák ki új otthonukat vagy befektetési céllal keresnek ingatlant.
Az ingatlan tégla falazattal, cserép héjazattal épült, fa nyílászárókkal rendelkezik. A fűtést cserépkályha biztosítja.
A lakáshoz tartozik pince és tároló.
A közelben: Aldi, dohánybolt, HÉV megálló.
Remek lehetőség azoknak, akik saját ízlésük szerint alakítanák ki új otthonukat vagy befektetési céllal keresnek ingatlant.
Regisztrációs szám
H507979
Az ingatlan adatai
Értékesités
eladó
Jogi státusz
használt
Jelleg
lakás
Építési mód
tégla
Méret
45 m²
Bruttó méret
50 m²
Terasz / erkély mérete
6 m²
Fűtés
cserépkályha (faszén)
Belmagasság
270 cm
Tájolás
Nyugat
Lépcsőház típusa
nincs
Állapot
Átlagos
Homlokzat állapota
Átlagon aluli
Lépcsőház állapota
Átlagon aluli
Pince
Közös
Környék
jó közlekedés, zöld, központi
Építés éve
1960
Fürdőszobák száma
1
Fekvés
kertre néző
Társaház kert
igen
Víz
Van
Gáz
Van
Villany
Van
Csatorna
Van
Kertkapcsolatos
igen
Tároló
Önálló
Helyiségek
nappali
18 m²
szoba
9 m²
konyha
7.5 m²
fürdőszoba-wc
2.55 m²
előszoba
3.35 m²
kamra
2.4 m²

Pados - Burján Renáta Zita
Hitelszakértő