72 900 000 Ft
188 000 €
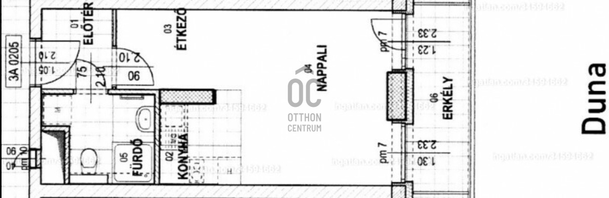
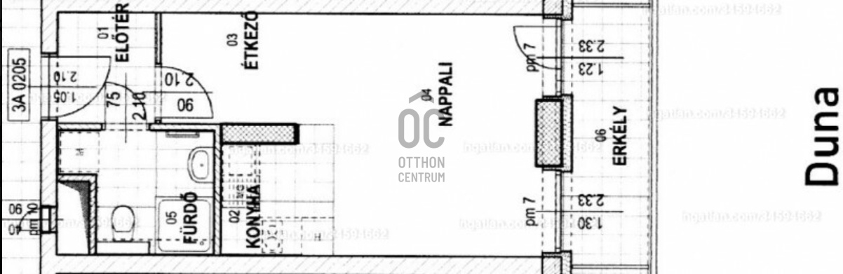
- 30m²
- 1 szoba
- 2. emelet










Fedezze fel álmai otthonát Budapest szívében – 1 szobás lakás Filatorigáton várja Önt!
Az első lakásvásárlók számára ideális választásként kínáljuk ezt a modern, 30 nm alapterületű, használt lakást Budapest 03. kerületében, Filatorigáton. Az ingatlan kiváló állapotban várja új tulajdonosát, a prémium kivitelezés és a minimalista kialakítás tökéletes harmóniát teremt a tágas nappali és a konyhaszigetes amerikai konyha között. Az ingatlanhoz tartozó 5 nm-es erkélyről lenyűgöző folyóra néző kilátás tárul elénk, amely nemcsak a mindennapi pihenést, hanem a baráti összejöveteleket is felejthetetlenné varázsolja. A lakás hőszivattyús fűtésének köszönhetően a fenntartási költségek alacsonyak, ami különösen vonzó lehet az első lakásvásárlók számára. A tehermentes ingatlan biztonsági ajtóval és videókaputelefonnal rendelkezik, így Ön és családja maximális biztonságban érezheti magát. Az okos otthon rendszer pedig lehetővé teszi, hogy a legmodernebb technológiákat kihasználva, kényelmesen irányíthassa otthonát. A környék kitűnő közlekedési lehetőségekkel rendelkezik, hiszen a közlekedési csomópont közelében található, így a város bármely pontja könnyen elérhető. Továbbá, a rendezett kert és a vízparti ingatlan közelsége ideális választássá teszi ezt a lakást azok számára, akik a természet közelségét keresik, ugyanakkor a városi élet nyújtotta lehetőségeket sem szeretnék nélkülözni. Filatorigát egy felkapott környék, ahol a csendes, biztonságos utcák és a modern lakóparkok egyedülálló élményt nyújtanak. A környéken számos szolgáltatás, bolt és étterem található, így a mindennapi élethez szükséges minden könnyen elérhető. Az ingatlan központi elhelyezkedése lehetővé teszi, hogy a város szívében élvezze a nyüzsgést, miközben otthona a pihenés és a nyugalom szigete marad. Amennyiben felkeltette érdeklődését ez az exkluzív lakás, ne habozzon, keressen bizalommal! Szívesen válaszolok kérdéseire, és segítek Önnek megtalálni álmai otthonát. Az ingatlan iránti érdeklődés nagy, így érdemes mihamarabb lépni, hogy ne maradjon le erről a kivételes lehetőségről!
Regisztrációs szám
H497711
Az ingatlan adatai
Értékesités
eladó
Jogi státusz
használt
Jelleg
lakás
Építési mód
tégla
Méret
30 m²
Bruttó méret
30 m²
Terasz / erkély mérete
5 m²
Fűtés
hőszivattyú
Belmagasság
265 cm
Tájolás
Dél-kelet
Lépcsőház típusa
zárt lépcsőház
Állapot
Kiváló
Homlokzat állapota
Kiváló
Lépcsőház állapota
Kiváló
Építés éve
2022
Fürdőszobák száma
1
Fekvés
kertre néző
Víz
Van
Gáz
Van
Villany
Van
Csatorna
Van
Lift
van
Helyiségek
nappali-konyha
20 m²
fürdőszoba-wc
6 m²

Németh István
Hitelszakértő