194 660 415 Ft
499 770 €
- 145m²
- 7 szoba
- 1. emelet
***BEFEKTETŐK FIGYELMÉBE AJÁNLOM - KÉSZ BEFEKTETÉS A BELVÁROS SZÍVÉBEN!!***
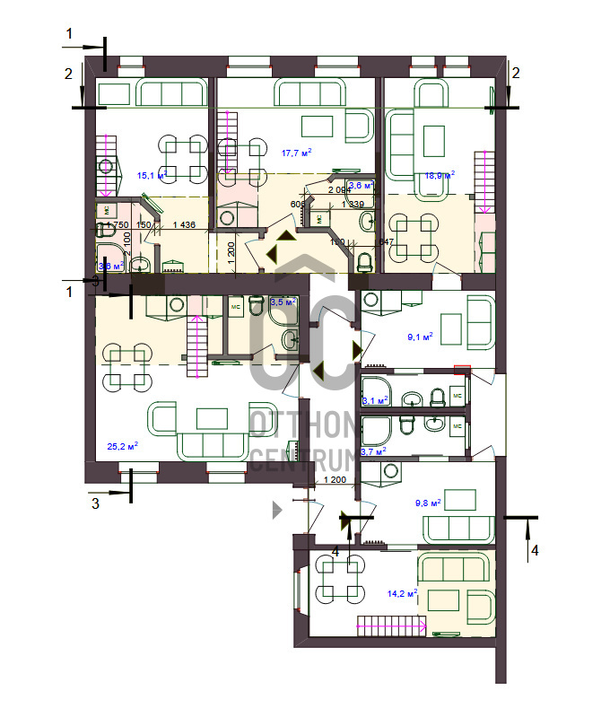
Megvételére kínálok a VII. kerület egyik központi részén egy lakást, amelyben 5 apartman lett kialakítva.
Az apartmanokban amerikai stílusú étkező, ülő-konyha nappalival, külön fürdőszoba illetve a galérián dupla francia méretű hálórészek lettek kialakítva.
Jelenleg hosszútávú bérléssel üzemel, amely biztos jövedelmet nyújt új tulajdonosának.
A VÉTELÁR EUROBAN FIZETENDŐ!
További információért és a megtekintés miatt keressen bizalommal a hét bármely napján!
Megvételére kínálok a VII. kerület egyik központi részén egy lakást, amelyben 5 apartman lett kialakítva.
Az apartmanokban amerikai stílusú étkező, ülő-konyha nappalival, külön fürdőszoba illetve a galérián dupla francia méretű hálórészek lettek kialakítva.
Jelenleg hosszútávú bérléssel üzemel, amely biztos jövedelmet nyújt új tulajdonosának.
A VÉTELÁR EUROBAN FIZETENDŐ!
További információért és a megtekintés miatt keressen bizalommal a hét bármely napján!
Regisztrációs szám
H514357
Az ingatlan adatai
Értékesités
eladó
Jogi státusz
használt
Jelleg
lakás
Építési mód
tégla
Méret
145 m²
Bruttó méret
145 m²
Fűtés
Gáz cirkó
Belmagasság
390 cm
Tájolás
Észak-kelet
Lépcsőház típusa
körfolyosó
Állapot
Átlagos
Homlokzat állapota
Átlagos
Lépcsőház állapota
Átlagos
Építés éve
1950
Fürdőszobák száma
5
Fekvés
utcai
Víz
Van
Gáz
Van
Villany
Van
Csatorna
Van
Helyiségek
nappali-konyha
15.1 m²
nappali-konyha
17.7 m²
nappali-konyha
18.9 m²
nappali-konyha
25.2 m²
nappali-konyha
14.2 m²
fürdőszoba-wc
3.6 m²
fürdőszoba-wc
3.6 m²
fürdőszoba-wc
3.7 m²
fürdőszoba-wc
3.1 m²
fürdőszoba-wc
3.5 m²
előszoba
9.8 m²
előszoba
9.1 m²
Németh István
Hitelszakértő