137 000 000 Ft
359 000 €
- 102m²
- 4 szoba
KÉT OTTHON, EZER LEHETŐSÉG Találja meg családja békéjét a biatorbágyi lakóparkban!
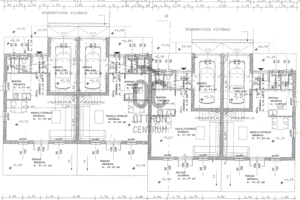
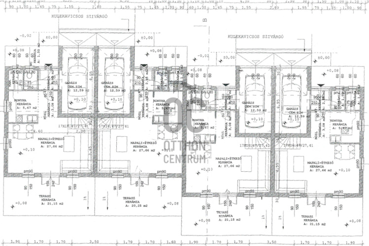
A 102 m2-es otthonhoz még 5,5 m2-es erkély és 21,15 m2-es terasz is társul.
Vannak pillanatok, amikor a kényelem és a szabadság találkozik. A Zöldsziget Lakópark belső sorházi lakása nem csupán egy ingatlan: ez egy ígéret a nyugodt, mégis tartalmas családi életre. Zöld környezet és egy olyan barátságos közösség várja itt, ahol a szomszédok még ismerik egymást.
Minden, amire egy családnak szüksége van sétatávolságra
Az óvoda mindössze 200 méter, a friss, ropogós pékárúért 300 métert kell sétálnia a helyi kézműves pékségbe.
A nagyobb gyerekek számára a Biatorbágyi Innovatív Technikum (BIT) 5 perces séta, de a városban további két gimnáziuma és általános iskola is található. A helyi buszjáratok (valamint a Volánbusz) garantálják, hogy a család minden tagja gyorsan és biztonságosan célba érjen.
Tér, amely alkalmazkodik a jövőjéhez
A lakás jelenlegi elrendezése a tágas, levegős tereket kedvelőknek kedvez az amerikai konyhás nappalival és a két hatalmas hálószobával. Azonban az ingatlan igazi különlegessége, hogy az eredeti tervek alapján bármikor visszaalakítható 3 hálószobássá, így az otthon együtt nőhet a családdal.
Extra tárolás: A tetőtérben kialakított tágas tér végre megoldást nyújt a szezonális holmik kényelmes tárolására.
Reggeli harmónia: A két fürdőszoba (lent és fent is zuhanyzóval) biztosítja, hogy a család reggeli készülődése zökkenőmentes legyen.
Zöld oázis a nappali folytatásában
A lakás ékköve a 21 nm-es, napellenzővel védett terasz, amely közvetlen kapcsolatban áll a gondozott kerttel. Az automata öntözőrendszer leveszi a gondot a válláról, Önnek csak annyi a dolga, hogy élvezze a madárcsicsergést a saját szabadtéri nappalijában.
Gazdaságos és biztonságos választás
Napelemrásegítés ami biztosítja a melegvizet, a Saunier Duval rendszer pedig a hatékony fűtést így a rezsiszámlák is barátságosak maradnak.
Maximális komfort: Elektromos redőnyök, beépített szúnyoghálók és riasztórendszer gondoskodik a család nyugalmáról.
Parkolás: A lakásból közvetlenül elérhető garázs mellett egy autónak kerítésen belül, egy további járműnek pedig az elektromos kapu előtt jut hely.
Élet a kerítésen túl: Biatorbágy legjava
Itt a kikapcsolódás házhoz jön. Legyen szó egy kézműves sörről, mentes süteményről egy hangulatos kávézóban, vagy a könyvesbolt csendjéről, minden karnyújtásnyira van. A gyerekeknek számos játszótér, és egy KRESZ park biztosít kikapcsolódást. Nyáron kertmozi, télen korcsolyapálya gondoskodik róla, hogy a gyerekek és felnőttek egyaránt megtalálják a helyüket a közösségben.
Ritka alkalom: Költözzön össze, mégis külön!
Jelenleg a sorház mindkét belső lakása eladó. Ez egyedülálló esély generációk összeköltözésére (külön, de mégis közel), baráti családoknak, vagy befektetőknek, akik értékálló ingatlant keresnek ezen a népszerű környéken.
Jelen hirdetés a 3. számú lakás.
A 2 kertrészt a jelenlegi tulajdonosok közösen használták, de bármikor leválsztható.
Jöjjön el, és érezze meg azt a különleges atmoszférát, amit csak a Zöldsziget Lakópark nyújthat!
Hívjon bizalommal, és mutatom az utat leendő otthonába!
A 102 m2-es otthonhoz még 5,5 m2-es erkély és 21,15 m2-es terasz is társul.
Vannak pillanatok, amikor a kényelem és a szabadság találkozik. A Zöldsziget Lakópark belső sorházi lakása nem csupán egy ingatlan: ez egy ígéret a nyugodt, mégis tartalmas családi életre. Zöld környezet és egy olyan barátságos közösség várja itt, ahol a szomszédok még ismerik egymást.
Minden, amire egy családnak szüksége van sétatávolságra
Az óvoda mindössze 200 méter, a friss, ropogós pékárúért 300 métert kell sétálnia a helyi kézműves pékségbe.
A nagyobb gyerekek számára a Biatorbágyi Innovatív Technikum (BIT) 5 perces séta, de a városban további két gimnáziuma és általános iskola is található. A helyi buszjáratok (valamint a Volánbusz) garantálják, hogy a család minden tagja gyorsan és biztonságosan célba érjen.
Tér, amely alkalmazkodik a jövőjéhez
A lakás jelenlegi elrendezése a tágas, levegős tereket kedvelőknek kedvez az amerikai konyhás nappalival és a két hatalmas hálószobával. Azonban az ingatlan igazi különlegessége, hogy az eredeti tervek alapján bármikor visszaalakítható 3 hálószobássá, így az otthon együtt nőhet a családdal.
Extra tárolás: A tetőtérben kialakított tágas tér végre megoldást nyújt a szezonális holmik kényelmes tárolására.
Reggeli harmónia: A két fürdőszoba (lent és fent is zuhanyzóval) biztosítja, hogy a család reggeli készülődése zökkenőmentes legyen.
Zöld oázis a nappali folytatásában
A lakás ékköve a 21 nm-es, napellenzővel védett terasz, amely közvetlen kapcsolatban áll a gondozott kerttel. Az automata öntözőrendszer leveszi a gondot a válláról, Önnek csak annyi a dolga, hogy élvezze a madárcsicsergést a saját szabadtéri nappalijában.
Gazdaságos és biztonságos választás
Napelemrásegítés ami biztosítja a melegvizet, a Saunier Duval rendszer pedig a hatékony fűtést így a rezsiszámlák is barátságosak maradnak.
Maximális komfort: Elektromos redőnyök, beépített szúnyoghálók és riasztórendszer gondoskodik a család nyugalmáról.
Parkolás: A lakásból közvetlenül elérhető garázs mellett egy autónak kerítésen belül, egy további járműnek pedig az elektromos kapu előtt jut hely.
Élet a kerítésen túl: Biatorbágy legjava
Itt a kikapcsolódás házhoz jön. Legyen szó egy kézműves sörről, mentes süteményről egy hangulatos kávézóban, vagy a könyvesbolt csendjéről, minden karnyújtásnyira van. A gyerekeknek számos játszótér, és egy KRESZ park biztosít kikapcsolódást. Nyáron kertmozi, télen korcsolyapálya gondoskodik róla, hogy a gyerekek és felnőttek egyaránt megtalálják a helyüket a közösségben.
Ritka alkalom: Költözzön össze, mégis külön!
Jelenleg a sorház mindkét belső lakása eladó. Ez egyedülálló esély generációk összeköltözésére (külön, de mégis közel), baráti családoknak, vagy befektetőknek, akik értékálló ingatlant keresnek ezen a népszerű környéken.
Jelen hirdetés a 3. számú lakás.
A 2 kertrészt a jelenlegi tulajdonosok közösen használták, de bármikor leválsztható.
Jöjjön el, és érezze meg azt a különleges atmoszférát, amit csak a Zöldsziget Lakópark nyújthat!
Hívjon bizalommal, és mutatom az utat leendő otthonába!
Regisztrációs szám
DLK012544
Az ingatlan adatai
Értékesités
eladó
Jogi státusz
használt
Jelleg
lakás
Építési mód
tégla
Méret
102 m²
Bruttó méret
102 m²
Fűtés
Gáz cirkó
Belmagasság
250 cm
Lakáson belüli szintszám
2
Tájolás
Dél-nyugat
Állapot
Kiváló
Homlokzat állapota
Kiváló
Építés éve
2007
Fürdőszobák száma
2
Fekvés
udvari
Kertkapcsolatos
igen
Helyiségek
szoba
10.04 m²
nappali-konyha
33.33 m²
fürdőszoba-wc
3.15 m²
előszoba
2.45 m²
közlekedő
3.08 m²
szoba
13.06 m²
szoba
25.21 m²
fürdőszoba-wc
10.38 m²
közlekedő
2.21 m²
terasz
21.15 m²
erkély
5.5 m²