137 000 000 Ft
363 000 €
- 102m²
- 4 szoba
KÉT TEHERMENTES, BELSŐ SORHÁZI LAKÁS EGYMÁS MELLETT ELADÓ A ZÖLDSZIGET LAKÓPARKBAN!
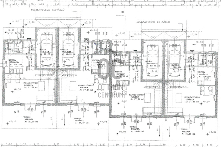
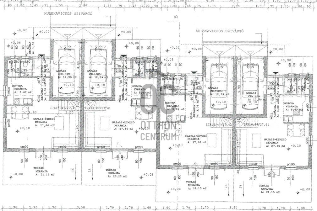
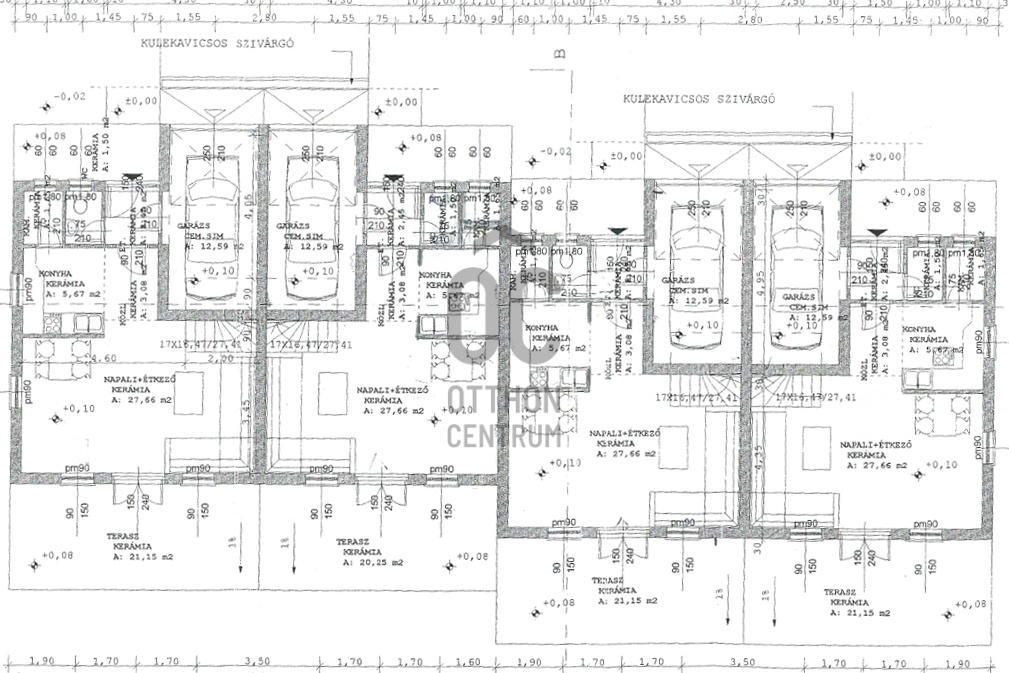
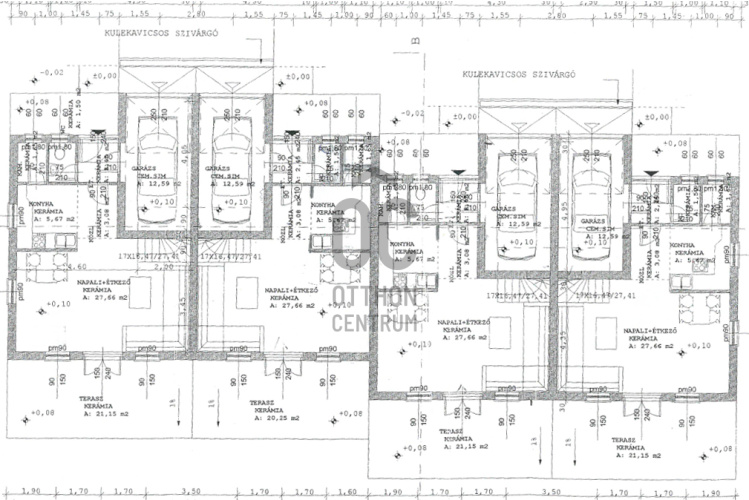
A 102 m2-es otthonhoz még 5,5 m2-es erkély és 20,25 m2-es terasz is társul.
Otthon, ahol minden értünk van!
Vannak helyek, ahol az ember már az első pillanatban azt érzi: megérkeztem. A Zöldsziget Lakópark ezen igényes, belső sorházi lakása pontosan ilyen. Itt a modern technológia találkozik a kertvárosi nyugalommal és azzal a pezsgő, mégis családias közösségi élettel, amiről eddig csak álmodott.
Reggelek, amik mosollyal indulnak
Képzelje el, hogy reggel átsétál a mindössze 300 méterre lévő kézműves pékségbe a tökéletes vadkovászos vekniért, miközben a gyerekekkel az utca végi (200 m) óvodába tartanak. Nincs stressz, nincs autóban ücsörgés. Ha pedig nagyobb gyermekei vannak, a közeli buszmegállóból Biatorbágy saját helyi járatával vagy Volánbusszal is bárhova könnyedén eljuthat. A Biatorbágyi Innovatív Technikum és Gimnázium is csak egy kényelmes, 5 perces séta, de a város ezen kívűl még másik 2 gimnáziummal is rendelkezik, illetve 4 általános iskolával.
Ahol a nappali a kerttel összeér
A lakás szíve a tágas, fényárban úszó amerikai konyhás nappali, amely közvetlen kapcsolatban áll a 20 nm-es terasszal, mely felett teljes szélességben kihúzható napellenző garantálja a nyári délutánok komfortját. A gondozott, automata öntözőrendszerrel táplált kert valódi szabadtéri nappalivá varázsolja a tavaszi és nyári estéket.
Kényelem minden részletben
Fenntarthatóság: A melegvízről napelem gondoskodik, a meleget pedig egy rendszeresen karbantartott, megbízható Saunier Duval rendszer biztosítja figyelve a környezetre és a pénztárcájára. A padlásfödém és padló is hőszigetelt.
Gondtalanság Elektromos redőnyök, beépített szúnyoghálók és egy, a lakásból közvetlenül elérhető garázs teszi kényelmessé a mindennapokat. A lakás riasztórendszerrel szerelt.
Tér az egész családnak: 3 tágas hálószoba, lent zuhanyzó a gyors felfrissüléshez, fent pedig egy hatalmas fürdőszoba sarokkáddal az esti relaxáláshoz. A tetőtérben tágas tér biztosít helyet az éppen nem használt dolgok tárolására, melyet az első emeletről könnyedén elérhet.
Élet a lakáson túl: Egy vibráló közösség
Itt sosem fog unatkozni! A közelben minden karnyújtásnyira van:
Gasztro-élmények: mentes pékség, kézműves sörház, hangulatos kávézók és cukrászdák várják.
Kultúra és sport: Művelődési központ színes programokkal, télen pedig a közeli korcsolyapálya hozza össze a szomszédokat.
Mindent helyben: Posta, gyógyszertár, könyvesbolt és üzletek sora könnyíti meg a hétköznapi ügyintézést.
Parkolás? Nem kérdés!
A lakáshoz tartozó garázson kívül egy autó számára kerítésen belüli felszíni beálló, egy további autónak pedig az elektromos kapu előtt biztosított a helye.
Ez nem csupán egy ingatlan. Ez egy lehetőség, hogy egy összetartó, barátságos közösség tagja legyen.
A sorház mindkét belső lakása eladó, mely lehetővé teszi, hogy akár több generáció élhessen egymés közelében, ahogyan az eddig is történt, vagy akár barátok szomszéddá válására is alkalmas ez a lehetőség. Mindezek mellett pedig befektetésnek is kiváló. Ilyen lehetőség nagyon ritkán adódik! Jelen hirdetés a 2. számú lakás.A 2 kertrészt a jelenlegi tulajdonosok közösen használták, de bármikor leválsztható.
Szeretné saját szemével is látni, hol fogja inni a reggeli kávéját? Hívjon bizalommal, és nézzük meg együtt leendő otthonát!
A 102 m2-es otthonhoz még 5,5 m2-es erkély és 20,25 m2-es terasz is társul.
Otthon, ahol minden értünk van!
Vannak helyek, ahol az ember már az első pillanatban azt érzi: megérkeztem. A Zöldsziget Lakópark ezen igényes, belső sorházi lakása pontosan ilyen. Itt a modern technológia találkozik a kertvárosi nyugalommal és azzal a pezsgő, mégis családias közösségi élettel, amiről eddig csak álmodott.
Reggelek, amik mosollyal indulnak
Képzelje el, hogy reggel átsétál a mindössze 300 méterre lévő kézműves pékségbe a tökéletes vadkovászos vekniért, miközben a gyerekekkel az utca végi (200 m) óvodába tartanak. Nincs stressz, nincs autóban ücsörgés. Ha pedig nagyobb gyermekei vannak, a közeli buszmegállóból Biatorbágy saját helyi járatával vagy Volánbusszal is bárhova könnyedén eljuthat. A Biatorbágyi Innovatív Technikum és Gimnázium is csak egy kényelmes, 5 perces séta, de a város ezen kívűl még másik 2 gimnáziummal is rendelkezik, illetve 4 általános iskolával.
Ahol a nappali a kerttel összeér
A lakás szíve a tágas, fényárban úszó amerikai konyhás nappali, amely közvetlen kapcsolatban áll a 20 nm-es terasszal, mely felett teljes szélességben kihúzható napellenző garantálja a nyári délutánok komfortját. A gondozott, automata öntözőrendszerrel táplált kert valódi szabadtéri nappalivá varázsolja a tavaszi és nyári estéket.
Kényelem minden részletben
Fenntarthatóság: A melegvízről napelem gondoskodik, a meleget pedig egy rendszeresen karbantartott, megbízható Saunier Duval rendszer biztosítja figyelve a környezetre és a pénztárcájára. A padlásfödém és padló is hőszigetelt.
Gondtalanság Elektromos redőnyök, beépített szúnyoghálók és egy, a lakásból közvetlenül elérhető garázs teszi kényelmessé a mindennapokat. A lakás riasztórendszerrel szerelt.
Tér az egész családnak: 3 tágas hálószoba, lent zuhanyzó a gyors felfrissüléshez, fent pedig egy hatalmas fürdőszoba sarokkáddal az esti relaxáláshoz. A tetőtérben tágas tér biztosít helyet az éppen nem használt dolgok tárolására, melyet az első emeletről könnyedén elérhet.
Élet a lakáson túl: Egy vibráló közösség
Itt sosem fog unatkozni! A közelben minden karnyújtásnyira van:
Gasztro-élmények: mentes pékség, kézműves sörház, hangulatos kávézók és cukrászdák várják.
Kultúra és sport: Művelődési központ színes programokkal, télen pedig a közeli korcsolyapálya hozza össze a szomszédokat.
Mindent helyben: Posta, gyógyszertár, könyvesbolt és üzletek sora könnyíti meg a hétköznapi ügyintézést.
Parkolás? Nem kérdés!
A lakáshoz tartozó garázson kívül egy autó számára kerítésen belüli felszíni beálló, egy további autónak pedig az elektromos kapu előtt biztosított a helye.
Ez nem csupán egy ingatlan. Ez egy lehetőség, hogy egy összetartó, barátságos közösség tagja legyen.
A sorház mindkét belső lakása eladó, mely lehetővé teszi, hogy akár több generáció élhessen egymés közelében, ahogyan az eddig is történt, vagy akár barátok szomszéddá válására is alkalmas ez a lehetőség. Mindezek mellett pedig befektetésnek is kiváló. Ilyen lehetőség nagyon ritkán adódik! Jelen hirdetés a 2. számú lakás.A 2 kertrészt a jelenlegi tulajdonosok közösen használták, de bármikor leválsztható.
Szeretné saját szemével is látni, hol fogja inni a reggeli kávéját? Hívjon bizalommal, és nézzük meg együtt leendő otthonát!
Regisztrációs szám
DLK038998
Az ingatlan adatai
Értékesités
eladó
Jogi státusz
használt
Jelleg
lakás
Építési mód
tégla
Méret
102 m²
Bruttó méret
102 m²
Fűtés
Gáz cirkó
Belmagasság
250 cm
Lakáson belüli szintszám
2
Tájolás
Dél-nyugat
Állapot
Kiváló
Homlokzat állapota
Kiváló
Építés éve
2007
Fürdőszobák száma
2
Fekvés
udvari
Kertkapcsolatos
igen
Helyiségek
erkély
5.5 m²
nappali-konyha
33.33 m²
fürdőszoba-wc
3.15 m²
előszoba
2.45 m²
közlekedő
3.08 m²
szoba
15.21 m²
szoba
13.06 m²
szoba
10.04 m²
fürdőszoba-wc
10.38 m²
közlekedő
2.21 m²
terasz
20.25 m²
Nagy Petra
Hitelszakértő