119,000,000 Ft
310,000 €
- 84.2m²
- 4 Rooms
- ground floor
Budafok Belvárosában, 5 lakásos, új építésű projekt!
A belváros csendes, aszfaltozott utcájában, zöld környezetében kezd épülni a társasház, amiből már csak 4 lakás eladó.
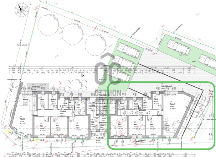
A kétszintes épületben két emeleti és két földszinti lakás érhető el, a földszintiek saját kertkapcsolattal rendelkeznek.
Mindegyik lakáshoz egy felszíni gépkocsi beálló tartozik telken belül.
Földszinti, jobb oldali lakás 84.29 m2:
- tágas amerikai konyhás nappali 29.8 m2-en
- 3 különnyíló hálószoba
- gardrób 4.64 m2
- kádas fürdőszoba wc-vel 4.08 m2
- zuhanyzó wc-vel 3.06 m2
- tároló/ kamra 5.04 m2
- előszoba 3.06 m2
- közlekedő: 8.85 m2
A projekt kiemelkedő műszaki tartalommal rendelkezik:
- 30 cm-es Porotherm tégla, 10 cm-es Porotherm válaszfalak
- 15 cm-es grafitos homlokzati hőszigetelés
- 12 cm lépésálló szigetelés, 25 cm kőzetgyapot szigetelés a födémen
- Háromrétegű nyílászárók, kívül barna, belül fehér színűek
- Mindenhol padlófűtés lesz, a melegvízről a fűtésről hőszivattyús rendszer gondoskodik
- Redőnytokok, beltéri ajtók, hideg- meleg burkolatok már a vételárban
Abszolút Friss megbízás a piacon!
Az építkezés februárban kezdődik várható befejezése 2026. év vége.
A kétszintes épületben két emeleti és két földszinti lakás érhető el, a földszintiek saját kertkapcsolattal rendelkeznek.
Mindegyik lakáshoz egy felszíni gépkocsi beálló tartozik telken belül.
Földszinti, jobb oldali lakás 84.29 m2:
- tágas amerikai konyhás nappali 29.8 m2-en
- 3 különnyíló hálószoba
- gardrób 4.64 m2
- kádas fürdőszoba wc-vel 4.08 m2
- zuhanyzó wc-vel 3.06 m2
- tároló/ kamra 5.04 m2
- előszoba 3.06 m2
- közlekedő: 8.85 m2
A projekt kiemelkedő műszaki tartalommal rendelkezik:
- 30 cm-es Porotherm tégla, 10 cm-es Porotherm válaszfalak
- 15 cm-es grafitos homlokzati hőszigetelés
- 12 cm lépésálló szigetelés, 25 cm kőzetgyapot szigetelés a födémen
- Háromrétegű nyílászárók, kívül barna, belül fehér színűek
- Mindenhol padlófűtés lesz, a melegvízről a fűtésről hőszivattyús rendszer gondoskodik
- Redőnytokok, beltéri ajtók, hideg- meleg burkolatok már a vételárban
Abszolút Friss megbízás a piacon!
Az építkezés februárban kezdődik várható befejezése 2026. év vége.
Registration Number
U0049205
Property Details
Sales
for sale
Legal Status
new
Character
apartment
Construction Method
brick
Net Size
84.2 m²
Gross Size
90.2 m²
Heating
heat pump
Ceiling Height
265 cm
Orientation
South-West
Staircase Type
enclosed staircase
Condition
Excellent
Condition of Facade
Excellent
Condition of Staircase
Excellent
Neighborhood
good transport, green, central
Year of Construction
2026
Number of Bathrooms
2
Position
courtyard-facing
Water
Available
Electricity
Available
Sewer
Available
Rooms
living room
19.94 m²
kitchen
9.86 m²
room
11.25 m²
room
10.62 m²
room
10.62 m²
corridor
8.85 m²
bathroom-toilet
4.08 m²
storage
3.06 m²
entryway
3.06 m²
Pongó Miklós
Credit Expert