484,000,000 Ft
1,258,000 €
- 901m²
PLOT FOR SALE IN JÓZSEFVÁROS WITH BUILDING PERMIT FOR AN APARTMENT HOUSE!
Due to its dynamic development, Józsefváros has become one of the key target areas for investors. The Corvin Promenade — Central Europe’s largest inner-city urban renewal project spanning 22 hectares — has had a transformative impact on the entire district, reflected in the strong demand for housing and the significant rise in real estate prices.
The district is home to the campuses of Semmelweis University (SOTE) and the National University of Public Service, and SOTE has also received approval for its next campus development on nearby Kálvária Street. As a result, a substantial portion of people seeking housing in Józsefváros are students, especially those relocating to Budapest from other parts of the country. The area is also an attractive destination for real estate investors: thanks to its central location and excellent accessibility, newly built apartments achieve strong performance in both short-term rentals and long-term leases—particularly among SOTE’s more than 8,000 international students. The district’s largest green area, the renovated Orczy Garden, is just a 15-minute walk from the property, offering residents a perfect balance of urban vibrancy and access to nature.
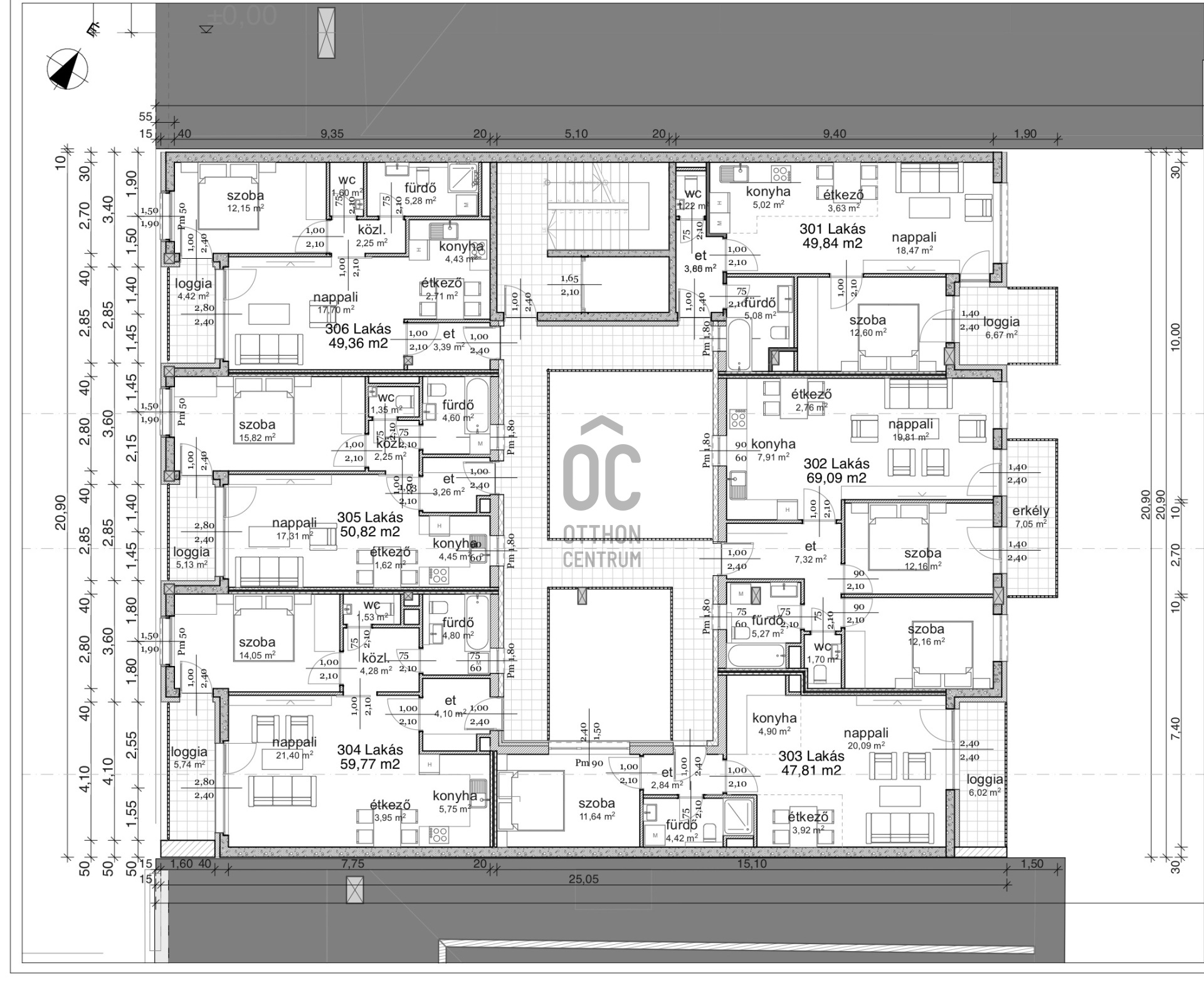
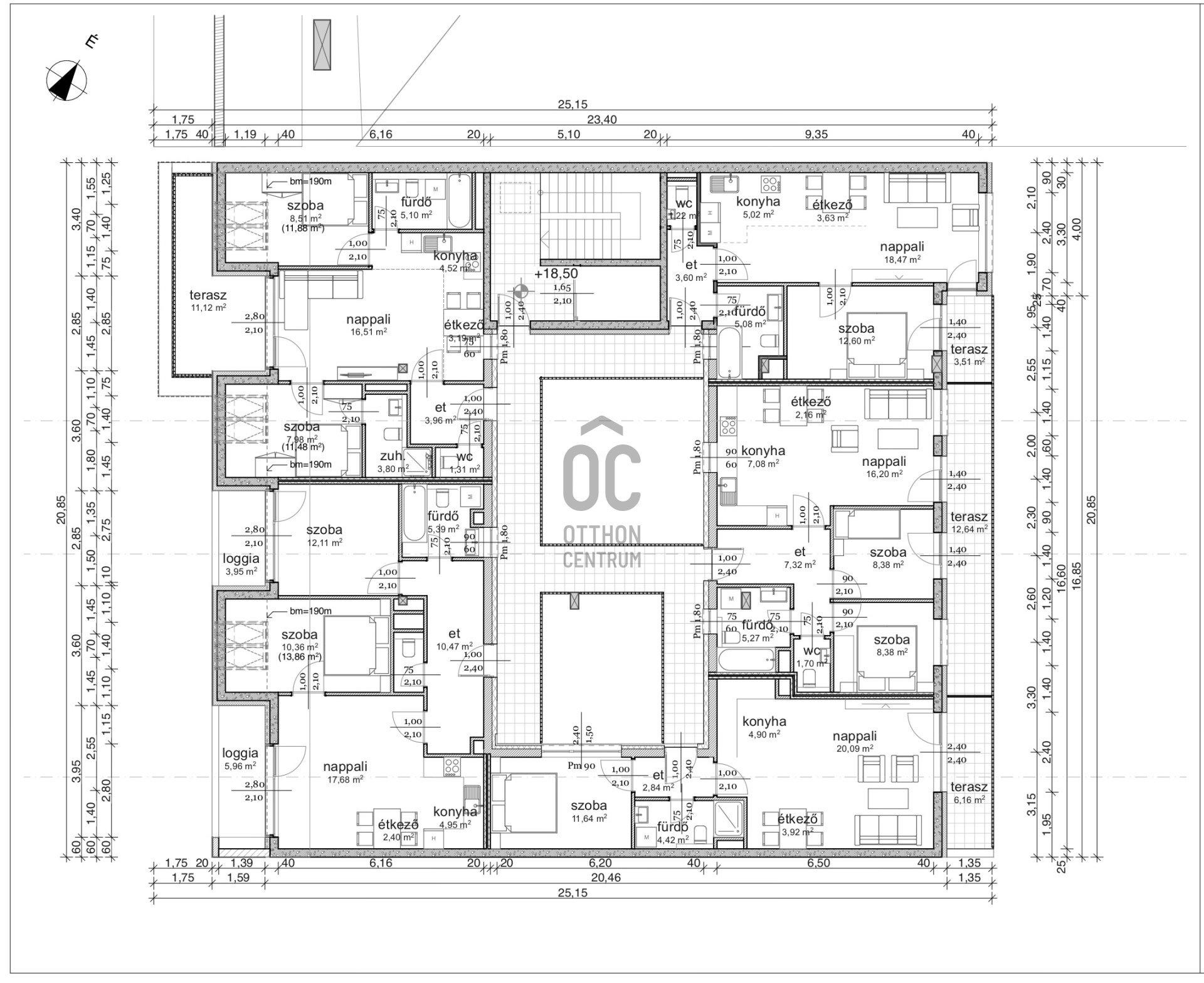
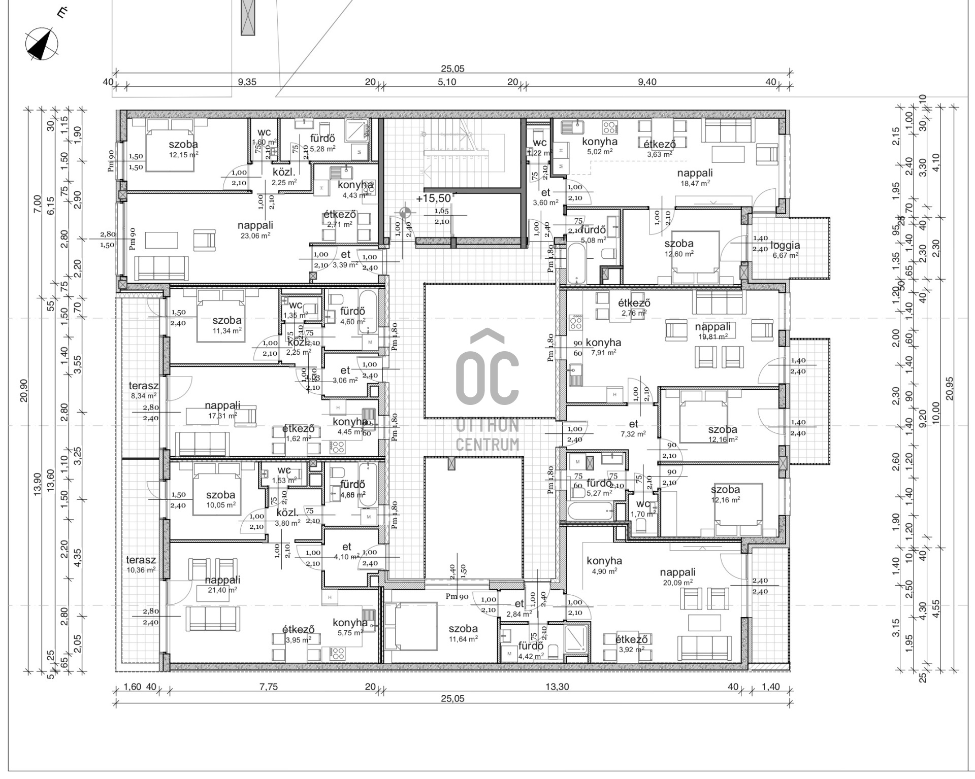
The property for sale is a vacant 901 m² plot with a building permit for a 35-unit apartment building, providing 2,100 m² of saleable area. The permit is included in the price. There are no structures to be demolished on the site.
Project Breakdown
Total residential area: 1,788.80 m²
Retail area: 36.73 m²
Loggias + terraces + balconies: 149.03 m²
Total building size: 3,215.84 m²
Plot Details
Zone: Ln-1/M-3
Buildability: 50%
Underground buildability: 70%
Floor area ratio (FAR): 3.5 m²/m²
Parking floor area ratio: 0.7 m²/m²
Maximum cornice height: 17 m
We look forward to your inquiry!
The district is home to the campuses of Semmelweis University (SOTE) and the National University of Public Service, and SOTE has also received approval for its next campus development on nearby Kálvária Street. As a result, a substantial portion of people seeking housing in Józsefváros are students, especially those relocating to Budapest from other parts of the country. The area is also an attractive destination for real estate investors: thanks to its central location and excellent accessibility, newly built apartments achieve strong performance in both short-term rentals and long-term leases—particularly among SOTE’s more than 8,000 international students. The district’s largest green area, the renovated Orczy Garden, is just a 15-minute walk from the property, offering residents a perfect balance of urban vibrancy and access to nature.
The property for sale is a vacant 901 m² plot with a building permit for a 35-unit apartment building, providing 2,100 m² of saleable area. The permit is included in the price. There are no structures to be demolished on the site.
Project Breakdown
Total residential area: 1,788.80 m²
Retail area: 36.73 m²
Loggias + terraces + balconies: 149.03 m²
Total building size: 3,215.84 m²
Plot Details
Zone: Ln-1/M-3
Buildability: 50%
Underground buildability: 70%
Floor area ratio (FAR): 3.5 m²/m²
Parking floor area ratio: 0.7 m²/m²
Maximum cornice height: 17 m
We look forward to your inquiry!
Registration Number
T039920
Property Details
Sales
for sale
Character
plot
Type of Land
Building plot
Zone
residential zone
Plot Size
901 m²
Orientation
West
Neighborhood
central
Water
On the street
Gas
On the street
Electricity
On the street
Sewer
On the street
Distance to Waterfront
more than 500 meters
Slope of Land
flat
Buildability
50%
Facade Height
1700
Type of Buildable Property
Condominium between 10-50 apartments
Gross Floor Area Ratio
3