For sale new construction apartment, P4648-1-0A-FZ-003
Budapest VII. kerület, Középső Erzsébetváros

98,769,300 Ft

254,000 €

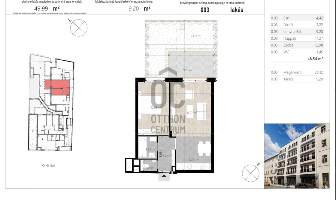
  • 48.5m²
  • 2 Rooms
  • ground floor

Kiváló lokáció, értékálló befektetés!

Az ingatlan a földszinten található. Kertre néző. Különlegessége a lakáshoz tartozó 23 m2-es magánkert.

Registration Number

P4648-1-0A-FZ-003

Property Details

Sales
for sale
Legal Status
new
Character
apartment
Construction Method
brick
Net Size
48.5 m²
Gross Size
56.4 m²
Size of Terrace / Balcony
9.2 m²
Heating
heat pump
Ceiling Height
260 cm
Orientation
North-West
Staircase Type
enclosed staircase
Condition
Excellent
Condition of Facade
Excellent
Condition of Staircase
Excellent
Year of Construction
2026
Number of Bathrooms
1
Position
garden-facing
Garage
Separately purchasable
Water
Available
Electricity
Available
Sewer
Available
Elevator
available
Connected to Garden
yes

Rooms

living room
0 m²
open-plan kitchen and dining room
0 m²
entryway
0 m²
bedroom
0 m²
bathroom
0 m²
toilet-washbasin
0 m²
terrace
0 m²
Ruczek Krisztina
Ruczek Krisztina

Credit Expert

From Our Office Listings - V. kerület - Hild tér

eladó újépítésű családi ház

Index image
22

eladó lakás

Index image
25

eladó panel lakás

Index image
Elérhető Otthon Start hitellel
11

eladó lakás

Index image
18

eladó lakás

Index image
23

for sale family house

Index image
12