data_sheet.details.realestate.section.main.otthonstart_flag.label
For sale apartment, H514121
Budapest VI. kerület, Külső VI., Király utca

99,000,000 Ft

262,000 €

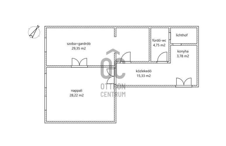
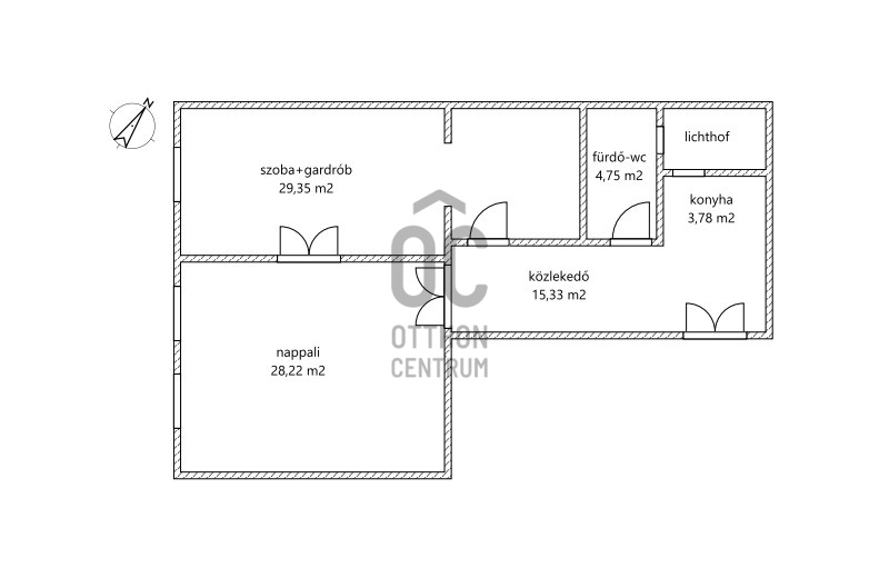
  • 81m²
  • 2 Rooms
  • 3rd floor
Exclusive Contract

Elegáns 2 szobás lakás a Király utcában.

Egyedi ajánlat!
Budapest VI. kerületében, a Király utcában eladó ez az elegáns 81 nm-es, 2 szoba + gardróbos , 3. emeleti lakás. Kb 10 éve teljes felújításon esett át (vezetékcsere, klíma beszerelés, parketta felújítás, festés), megtartva a nagypolgári stílust! Délnyugati fekvése ragyogó világosságot ad, ráadásul a szemközti ház tetőire nézünk, ami biztosítja az intimitást! Tágas terek, egyedi és ízléses kialakítás. A fűtése elektromos cserépkályhával megoldott, mely igen kedvező rezsit eredményez! Rendezett lépcsőház, jó lakóközösség! Lift egyelőre nincs, de tervben van a kialakítása!

Kíváló közlekedés: közelében 70/73/76/78-as trolik, 400m–re 1-es metró (Andrássy út) , 600m-re 4-6-os villamos és a körút érhető el.

Registration Number

H514121

Property Details

Sales
for sale
Legal Status
used
Character
apartment
Construction Method
brick
Net Size
81 m²
Gross Size
81 m²
Heating
electric fan-coil
Ceiling Height
390 cm
Number of Levels Within the Property
1
Orientation
South-West
View
city view
Staircase Type
circular corridor
Condition
Average
Condition of Facade
Average
Condition of Staircase
Average
Neighborhood
good transport, central
Year of Construction
1889
Number of Bathrooms
1
Position
street-facing
Common Costs
15390
Water
Available
Gas
Available
Electricity
Available
Sewer
Available

Rooms

room
29.35 m²
living room
28.22 m²
corridor
15.33 m²
bathroom-toilet
4.75 m²
kitchen
3.78 m²
Hazay Melinda
Hazay Melinda

Credit Expert

From Our Office Listings - XIV. kerület - István Park - 2

for sale panel apartment

Index image
data_sheet.details.realestate.section.main.otthonstart_flag.label
21

for sale row house

Index image
data_sheet.details.realestate.section.main.otthonstart_flag.label
25

for sale panel apartment

Index image
data_sheet.details.realestate.section.main.otthonstart_flag.label
15

for sale panel apartment

Index image
data_sheet.details.realestate.section.main.otthonstart_flag.label
16

for sale apartment

Index image
data_sheet.details.realestate.section.main.otthonstart_flag.label
11

for sale apartment

Index image
data_sheet.details.realestate.section.main.otthonstart_flag.label
18

for sale commercial property

Index image
7

for sale apartment

Index image
18

for sale apartment

Index image
data_sheet.details.realestate.section.main.otthonstart_flag.label
15